|
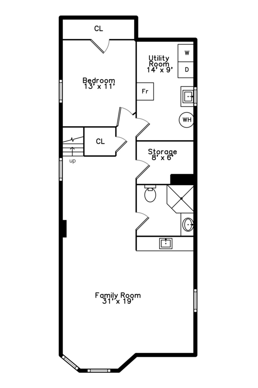
Discover this stunning, fully renovated brick Workers Cottage in Avondale, ranked one of the coolest neighborhoods in the world! (by Timeout magazine) Seamlessly blending historic Chicago charm with modern luxury, this 5 bedroom 3 bath home is sited on a 140 ft deep lot and has been completely transformed, offering over 2700 sq ft of flexible living space for families and guests. The home features beautiful grey solid oak flooring on the 1st and 2nd floors, solid wood doors throughout, built-in closet organizers, custom built mudroom, 1st floor bedrooms/office space, lower-level family room w/ wet bar, interior drain tile, and a large rear backyard w/ concrete patio. Entertain friends and family by the first floor living room fireplace, or lower-level family room wet bar. Cook up a dream meal in the chef's kitchen complete with Bosch appliances, white/iron black mini-shakers, quartz counters and open pantry. Enter work mode in the convenient first floor bedroom/office. Enjoy the outdoors in the large rear backyard with a patio and new 6ft privacy fences. Find respite in the master ensuite with operable skylights, a walk-in closet, rain head shower and double vanity. Smart features including Nest Learning Thermostat/Hello Doorbell and low voltage wiring ensure connectivity for the modern family while providing peace of mind. Located within minutes from 90/94, top restaurants, parks, grocery stores, shopping and more! Schedule your showing today!
| DAYS ON MARKET | 41 | LAST UPDATED | 10/31/2025 |
|---|---|---|---|
| YEAR BUILT | 1908 | COMMUNITY | CHI - Avondale |
| GARAGE SPACES | 2.0 | COUNTY | Cook |
| STATUS | Conditional | PROPERTY TYPE(S) | Single Family |
| ADDITIONAL DETAILS | |
| AIR | Central Air |
|---|---|
| AIR CONDITIONING | Yes |
| APPLIANCES | Dishwasher, Disposal, Dryer, Microwave, Range, Stainless Steel Appliance(s), Washer, Wine Refrigerator |
| AREA | CHI - Avondale |
| BASEMENT | Daylight, Finished, Full, Yes |
| CONSTRUCTION | Brick |
| FIREPLACE | Yes |
| GARAGE | Yes |
| HEAT | Forced Air, Natural Gas |
| INTERIOR | Granite Counters, Walk-In Closet(s), Wet Bar |
| LOT | 0 |
| LOT DIMENSIONS | 25 x 141 |
| PARKING | Garage Door Opener, On Site, Detached, Garage |
| SEWER | Public Sewer |
| TAXES | 9323.61 |
| WATER | Public |
MORTGAGE CALCULATOR
TOTAL MONTHLY PAYMENT
0
P
I
*Estimate only
| SATELLITE VIEW |
| / | |
We respect your online privacy and will never spam you. By submitting this form with your telephone number
you are consenting for Humderto
Garcia to contact you even if your name is on a Federal or State
"Do not call List".
Listed with Vision Realty Group, Inc.
The data relating to real estate for sale on this web site comes in part from the Broker ReciprocitySM Program of MRED. All real estate listings are marked with the Broker ReciprocitySM logo or the MRED Broker ReciprocitySM thumbnail logo (a little black house) and detailed information about them includes the name of the listing brokers.
The broker providing these data believes them to be correct, but advises interested parties to confirm them before relying on them in a purchase decision.
Copyright 2025 MRED. All rights reserved.

The broker providing these data believes them to be correct, but advises interested parties to confirm them before relying on them in a purchase decision.
Copyright 2025 MRED. All rights reserved.
This IDX solution is (c) Diverse Solutions 2025.