|
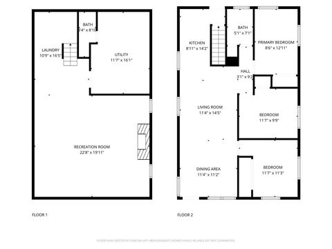
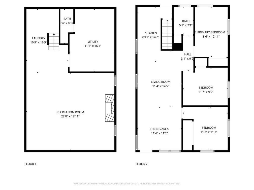
Welcome to this inviting well-maintained *PRE-INSPECTED* 3-bedroom, 2-bath mid-century modern ranch, filled with natural light and surrounded by mature trees. The main level offers a bright, comfortable layout that makes you feel right at home, while the fenced backyard and spacious patio are perfect for relaxing or entertaining outdoors. The full basement adds even more living space, featuring a cozy family room with a wood stove, plenty of storage, and room for additional sleeping areas or a home office. With newer appliances, durable vinyl siding, and timeless mid-century charm, this home combines comfort, character, and convenience in one welcoming package. Several new windows, new siding, new gutters, bathroom remodel - 2021 New front porch, new dishwasher, new refrigerator, new sink & plumbing in 2nd bathroom - 2025
| DAYS ON MARKET | 0 | LAST UPDATED | 2/3/2026 |
|---|---|---|---|
| YEAR BUILT | 1958 | COMMUNITY | Urbana |
| COUNTY | Champaign | STATUS | Conditional |
| PROPERTY TYPE(S) | Single Family |
| School District | Urbana High School |
|---|---|
| Elementary School | Urbana Elementary School |
| Jr. High School | Urbana Middle School |
| High School | Urbana High School |
| PRICE HISTORY | |
| Prior to Nov 8, '25 | $170,000 |
|---|---|
| Nov 8, '25 - Today | $159,900 |
| ADDITIONAL DETAILS | |
| AIR | Central Air |
|---|---|
| AIR CONDITIONING | Yes |
| AREA | Urbana |
| BASEMENT | Finished, Full, Yes |
| CONSTRUCTION | Vinyl Siding |
| HEAT | Natural Gas |
| LOT | 0 |
| LOT DIMENSIONS | 63x100 |
| PARKING | Concrete, Off Street |
| SEWER | Public Sewer |
| TAXES | 4365 |
| WATER | Private |
MORTGAGE CALCULATOR
TOTAL MONTHLY PAYMENT
0
P
I
*Estimate only
| SATELLITE VIEW |
| / | |
We respect your online privacy and will never spam you. By submitting this form with your telephone number
you are consenting for Humderto
Garcia to contact you even if your name is on a Federal or State
"Do not call List".
Listed with Trautman Real Estate Agency & Appraisal LLC
The data relating to real estate for sale on this web site comes in part from the Broker ReciprocitySM Program of MRED. All real estate listings are marked with the Broker ReciprocitySM logo or the MRED Broker ReciprocitySM thumbnail logo (a little black house) and detailed information about them includes the name of the listing brokers.
The broker providing these data believes them to be correct, but advises interested parties to confirm them before relying on them in a purchase decision.
Copyright 2026 MRED. All rights reserved.

The broker providing these data believes them to be correct, but advises interested parties to confirm them before relying on them in a purchase decision.
Copyright 2026 MRED. All rights reserved.
This IDX solution is (c) Diverse Solutions 2026.