|
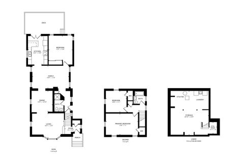
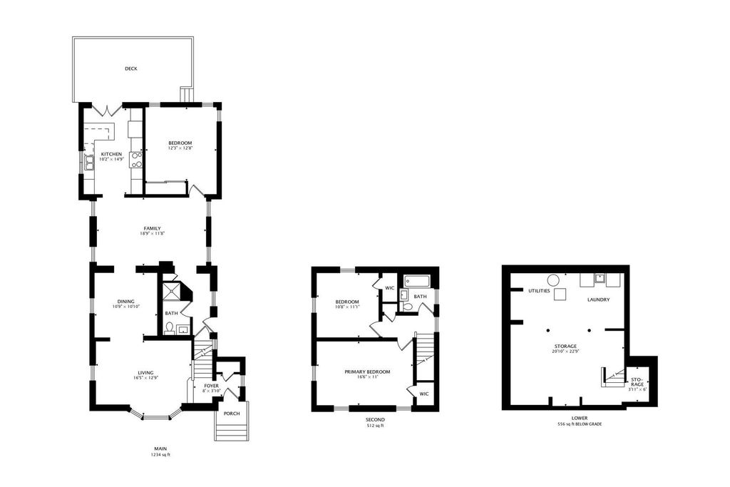
Welcome to 7744 W Thorndale! This all-brick 3-bedroom, 2-bath home is nestled in one of the most desirable pockets of Norwood Park, right on the edge of Edison Park. Featuring a recently renovated kitchen and bathrooms along with thoughtful updates throughout, this home is truly move-in ready. Step inside to find a fantastic floor plan with spacious rooms and excellent flow. The full basement offers great ceiling height and endless possibilities for additional living space. Outside, you'll love the gorgeous curb appeal, custom landscaping, and pristine backyard-perfect for entertaining or relaxing. Additional highlights include an oversized lot, a large 2-car garage, and a location that can't be beat. Restaurants, shopping, schools, and transportation are all nearby-everything you need is right here. Don't miss this opportunity to call Norwood Park home!
| DAYS ON MARKET | 7 | LAST UPDATED | 10/22/2025 |
|---|---|---|---|
| YEAR BUILT | 1938 | COMMUNITY | CHI - Norwood Park |
| GARAGE SPACES | 2.0 | COUNTY | Cook |
| STATUS | Active | PROPERTY TYPE(S) | Single Family |
| School District | Taft High School |
|---|---|
| Elementary School | Edison Park Elementary School |
| Jr. High School | Edison Park Elementary School |
| High School | Taft High School |
| ADDITIONAL DETAILS | |
| AIR | Central Air |
|---|---|
| AIR CONDITIONING | Yes |
| APPLIANCES | Dishwasher, Double Oven, Gas Cooktop, Microwave, Refrigerator, Stainless Steel Appliance(s) |
| AREA | CHI - Norwood Park |
| BASEMENT | Full, Unfinished, Yes |
| CONSTRUCTION | Brick |
| GARAGE | Yes |
| HEAT | Forced Air, Natural Gas |
| INTERIOR | Cathedral Ceiling(s) |
| LOT | 0 |
| LOT DIMENSIONS | 37 X 121 |
| PARKING | On Site, Detached, Garage |
| SEWER | Public Sewer |
| TAXES | 8162.12 |
| WATER | Public |
MORTGAGE CALCULATOR
TOTAL MONTHLY PAYMENT
0
P
I
*Estimate only
| SATELLITE VIEW |
| / | |
We respect your online privacy and will never spam you. By submitting this form with your telephone number
you are consenting for Humderto
Garcia to contact you even if your name is on a Federal or State
"Do not call List".
Listed with Baird & Warner
The data relating to real estate for sale on this web site comes in part from the Broker ReciprocitySM Program of MRED. All real estate listings are marked with the Broker ReciprocitySM logo or the MRED Broker ReciprocitySM thumbnail logo (a little black house) and detailed information about them includes the name of the listing brokers.
The broker providing these data believes them to be correct, but advises interested parties to confirm them before relying on them in a purchase decision.
Copyright 2025 MRED. All rights reserved.

The broker providing these data believes them to be correct, but advises interested parties to confirm them before relying on them in a purchase decision.
Copyright 2025 MRED. All rights reserved.
This IDX solution is (c) Diverse Solutions 2025.