|
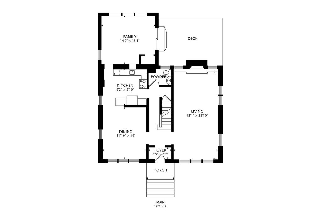
Proudly perched on a corner lot in the heart of Park Ridge's Golden Triangle, this inviting home features hardwood floors throughout and a charming layout that's perfect for everyday living. The main floor offers a large living room with vintage built-ins flanking a classic brick fireplace, bright dining room, kitchen with newer appliances, and sweet half bath. The spacious family room opens to a perfectly sized deck- great for gatherings or summer evenings outside. Upstairs, find three nicely sized bedrooms and two full baths, including the lovely primary bedroom with generous closet space and an en-suite bath. The finished lower level adds even more room to spread out, featuring a family room, fourth bedroom, updated full bath, laundry room, and ample storage. Outside, enjoy the fully cedar-fenced backyard with beautiful mature trees and landscaping. A detached two-car garage off the alley rounds out this peaceful property. Its prime location near all three local schools, Centennial Activity Center, and Uptown Park Ridge makes this home a wonderful place to settle in and create new memories. Welcome home! Sold "As Is". Multiple offers received. Highest & best offers are due by noon on Monday November 3rd. No escalation clauses or love letters will be accepted.
| DAYS ON MARKET | 34 | LAST UPDATED | 11/4/2025 |
|---|---|---|---|
| YEAR BUILT | 1924 | COMMUNITY | Park Ridge |
| GARAGE SPACES | 2.0 | COUNTY | Cook |
| STATUS | Conditional | PROPERTY TYPE(S) | Single Family |
| School District | Maine South High School |
|---|---|
| Elementary School | George Washington Elementary Sch |
| Jr. High School | Lincoln Middle School |
| High School | Maine South High School |
| ADDITIONAL DETAILS | |
| AIR | Ceiling Fan(s) |
|---|---|
| AIR CONDITIONING | Yes |
| APPLIANCES | Dishwasher, Microwave, Range, Refrigerator, Stainless Steel Appliance(s) |
| AREA | Park Ridge |
| BASEMENT | Finished, Full, Sump Pump, Yes |
| CONSTRUCTION | Brick |
| FIREPLACE | Yes |
| GARAGE | Yes |
| HEAT | Baseboard, Natural Gas |
| INTERIOR | Built-in Features |
| LOT | 6360 sq ft |
| LOT DESCRIPTION | Corner Lot |
| LOT DIMENSIONS | 51X124 |
| PARKING | Detached, Garage |
| SEWER | Public Sewer |
| STYLE | Colonial |
| TAXES | 10764.22 |
| WATER | Public |
MORTGAGE CALCULATOR
TOTAL MONTHLY PAYMENT
0
P
I
*Estimate only
| SATELLITE VIEW |
| / | |
We respect your online privacy and will never spam you. By submitting this form with your telephone number
you are consenting for Humderto
Garcia to contact you even if your name is on a Federal or State
"Do not call List".
Listed with @properties Christie�s International Real Estate
The data relating to real estate for sale on this web site comes in part from the Broker ReciprocitySM Program of MRED. All real estate listings are marked with the Broker ReciprocitySM logo or the MRED Broker ReciprocitySM thumbnail logo (a little black house) and detailed information about them includes the name of the listing brokers.
The broker providing these data believes them to be correct, but advises interested parties to confirm them before relying on them in a purchase decision.
Copyright 2025 MRED. All rights reserved.

The broker providing these data believes them to be correct, but advises interested parties to confirm them before relying on them in a purchase decision.
Copyright 2025 MRED. All rights reserved.
This IDX solution is (c) Diverse Solutions 2025.