|
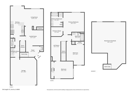
Welcome to this wonderful townhome in the highly sought-after Woodland Lakes community, perfectly located within the award-winning Naperville District 204 schools-Steck Elementary, Granger Middle, and Metea Valley High School! This beautifully maintained east-facing home offers a bright, open layout with a peaceful wooded backdrop providing exceptional privacy. The first floor features a spacious dining area, inviting family room with a cozy fireplace and large windows overlooking the woods, and an eat-in kitchen that opens to a generous deck-perfect for relaxing or entertaining outdoors. The kitchen is equipped with ample counter space, pantry, abundant cabinetry, and brand-new stainless steel appliances including refrigerator, stove/oven, microwave, and dishwasher . A powder room and laundry room add convenience. Upstairs, the large master suite faces the woods for serene views and includes a luxury master bath with soaking tub, separate shower, dual sinks, and a huge walk-in closet. Two oversized bedrooms with ceiling fans (one with a vaulted ceiling), a hall bath, and a spacious loft ideal for a home office or reading nook complete the second floor. The bright English basement offers plenty of sunlight and is ready for your finishing touches with rough-in plumbing for a bathroom-perfect for future recreation, workout, or guest space. Recent updates include a stainless Kitchen appliance package including Refrigerator, Stove, Microwave and Dishwasher (2025), washer and dryer (2020), Roof and Guters (2021), Driveway (2024) and water heater (2023). The home's setting and thoughtful updates make it move-in ready! Enjoy the scenic deck views, mature landscaping, and quiet surroundings. Conveniently close to schools, parks, library, shopping, restaurants, Fox Valley Mall, and Route 59 Metra station-with school bus service to all three schools. No rental restrictions add extra flexibility for homeowners or investors. A perfect combination of space, location, and lifestyle!
| DAYS ON MARKET | 12 | LAST UPDATED | 10/22/2025 |
|---|---|---|---|
| YEAR BUILT | 2002 | COMMUNITY | Aurora / Eola |
| GARAGE SPACES | 2.0 | COUNTY | DuPage |
| STATUS | Active | PROPERTY TYPE(S) | Condo/Townhouse/Co-Op |
| School District | Metea Valley High School |
|---|---|
| Elementary School | Steck Elementary School |
| Jr. High School | Granger Middle School |
| High School | Metea Valley High School |
| ADDITIONAL DETAILS | |
| AIR | Central Air |
|---|---|
| AIR CONDITIONING | Yes |
| AMENITIES | Snow Removal |
| APPLIANCES | Dishwasher, Disposal, Dryer, Microwave, Range, Refrigerator, Washer |
| AREA | Aurora / Eola |
| BASEMENT | Daylight, Full, Unfinished, Yes |
| CONSTRUCTION | Stone, Vinyl Siding |
| FIREPLACE | Yes |
| GARAGE | Attached Garage, Yes |
| HEAT | Forced Air, Natural Gas |
| HOA DUES | 205 |
| INTERIOR | Cathedral Ceiling(s), Entrance Foyer, Walk-In Closet(s) |
| LOT | 0 |
| LOT DESCRIPTION | Wooded |
| LOT DIMENSIONS | 24 X 60 |
| PARKING | Asphalt, Garage Door Opener, On Site, Attached, Garage |
| SEWER | Public Sewer |
| STORIES | 2 |
| TAXES | 7598 |
| WATER | Public |
MORTGAGE CALCULATOR
TOTAL MONTHLY PAYMENT
0
P
I
*Estimate only
| SATELLITE VIEW |
| / | |
We respect your online privacy and will never spam you. By submitting this form with your telephone number
you are consenting for Humderto
Garcia to contact you even if your name is on a Federal or State
"Do not call List".
Listed with Charles Rutenberg Realty of IL
The data relating to real estate for sale on this web site comes in part from the Broker ReciprocitySM Program of MRED. All real estate listings are marked with the Broker ReciprocitySM logo or the MRED Broker ReciprocitySM thumbnail logo (a little black house) and detailed information about them includes the name of the listing brokers.
The broker providing these data believes them to be correct, but advises interested parties to confirm them before relying on them in a purchase decision.
Copyright 2025 MRED. All rights reserved.

The broker providing these data believes them to be correct, but advises interested parties to confirm them before relying on them in a purchase decision.
Copyright 2025 MRED. All rights reserved.
This IDX solution is (c) Diverse Solutions 2025.