|
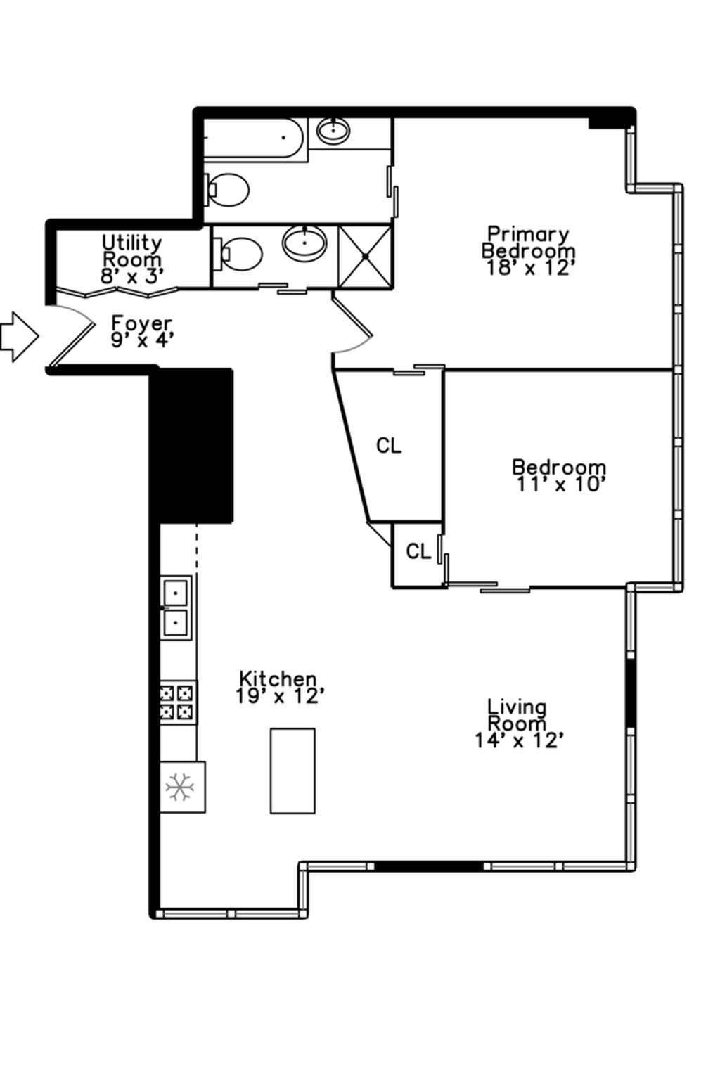
Don't miss this appealing 2 bed and 2 full baths in a terrific River North full amenity building. The open kitchen/living/dining design makes for easy daily life as well as entertaining. The home boasts brand new carpeting in each bedroom, a coveted in unit washer dryer, as well as a garage parking spot included in the price. This well-maintained building includes 24-hour door staff, an outdoor pool with fully renovated sundeck and grilling area, fully-equipped fitness center, private movie theater, party room, business center, and on-site management. Investor friendly, just steps from great shopping, restaurants, and public transportation.
| DAYS ON MARKET | 7 | LAST UPDATED | 10/27/2025 |
|---|---|---|---|
| YEAR BUILT | 1980 | COMMUNITY | CHI - Near North Side |
| GARAGE SPACES | 1.0 | COUNTY | Cook |
| STATUS | Active | PROPERTY TYPE(S) | Condo/Townhouse/Co-Op |
| ADDITIONAL DETAILS | |
| AIR | Wall Unit(s) |
|---|---|
| AIR CONDITIONING | Yes |
| AMENITIES | Insurance, Snow Removal, Water |
| AREA | CHI - Near North Side |
| BASEMENT | None |
| CONSTRUCTION | Glass, Steel Siding |
| GARAGE | Attached Garage, Yes |
| HEAT | Electric |
| HOA DUES | 786 |
| INTERIOR | Elevator |
| LOT | 0 |
| LOT DIMENSIONS | COMMON |
| PARKING | On Site, Attached, Garage |
| SEWER | Public Sewer |
| STORIES | 56 |
| TAXES | 6650.85 |
MORTGAGE CALCULATOR
TOTAL MONTHLY PAYMENT
0
P
I
*Estimate only
| SATELLITE VIEW |
| / | |
We respect your online privacy and will never spam you. By submitting this form with your telephone number
you are consenting for Humderto
Garcia to contact you even if your name is on a Federal or State
"Do not call List".
Listed with Berkshire Hathaway HomeServices Chicago
The data relating to real estate for sale on this web site comes in part from the Broker ReciprocitySM Program of MRED. All real estate listings are marked with the Broker ReciprocitySM logo or the MRED Broker ReciprocitySM thumbnail logo (a little black house) and detailed information about them includes the name of the listing brokers.
The broker providing these data believes them to be correct, but advises interested parties to confirm them before relying on them in a purchase decision.
Copyright 2025 MRED. All rights reserved.

The broker providing these data believes them to be correct, but advises interested parties to confirm them before relying on them in a purchase decision.
Copyright 2025 MRED. All rights reserved.
This IDX solution is (c) Diverse Solutions 2025.