|
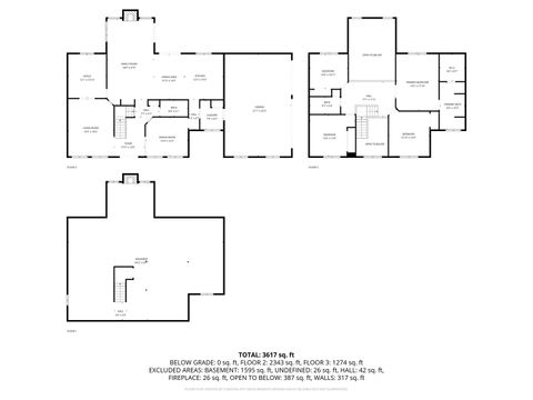
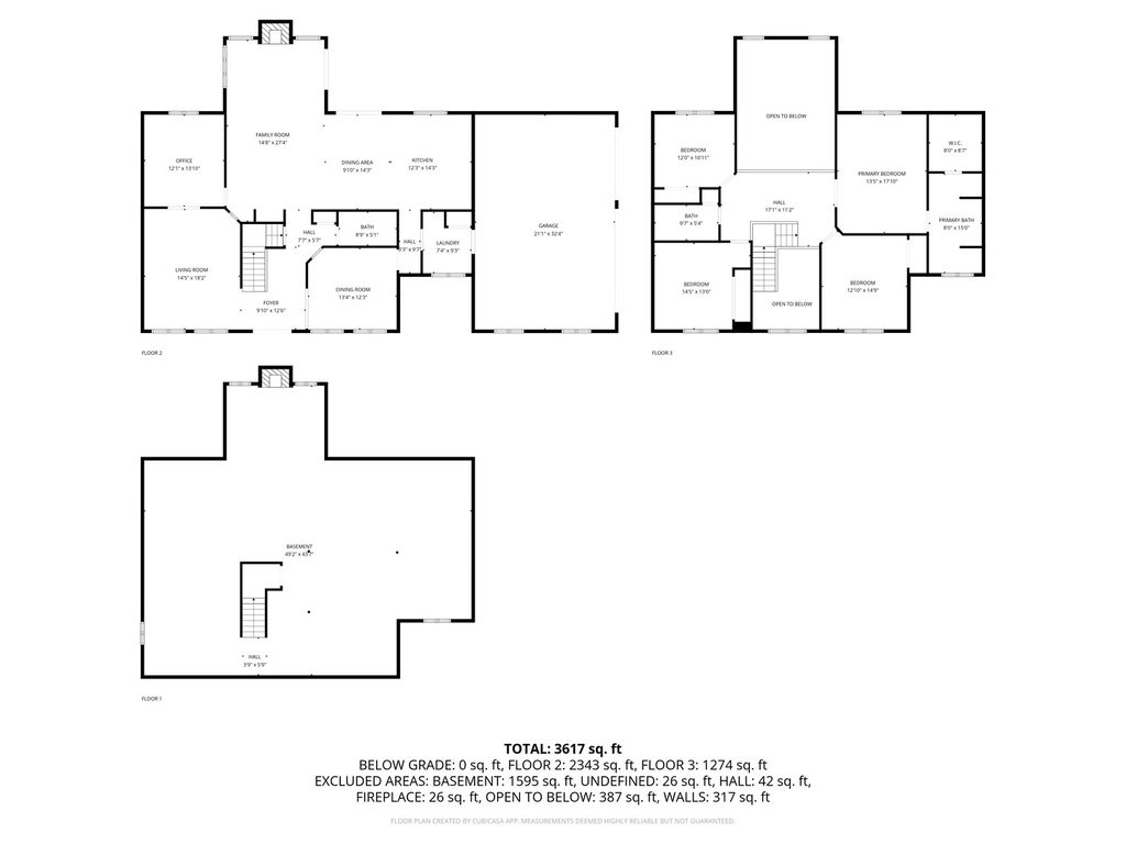
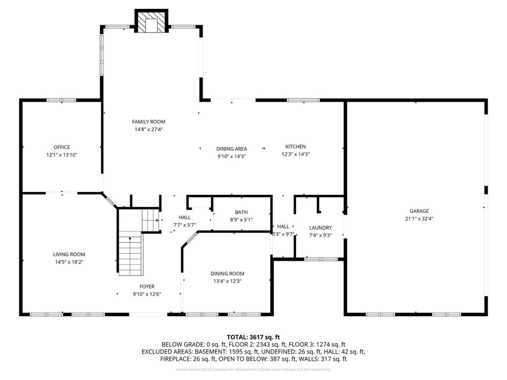
Custom built, bright, 2-storey brick home on 1.5+ acres, in coveted Stonehaven subdivision of Long Grove. Front yard has mature trees and house backs up to beautiful views of conservancy land with a mixture of trees, prairie, wetlands. 4 good sized bedrooms, 3 updated FULL bathrooms (one on main level), 9 ft ceilings thru out, valuted ceiling in Living room and tray ceilings in 3 bedrooms, 3-car side load garage. New hardwood floors for entire second level and refinished hardwood floors in kitchen, family room, dining room in Sept. 2025. Impressive double story foyer with oversized arched window. Living room and formal dining room on either side of the foyer have tray ceilings with crown molding. French doors from living room lead to the office / study, which overlooks the conservancy. House has large, beautiful, arch top windows on the first floor. Kitchen has 42" cabinetry, island, granite counter tops and stainless steel appliances. Breakfast / eat-in dining has sliding doors that open to the deck. Double story Family room is bright and cheerful. Has multiple windows overlooking the backyard/conservancy and a second set of sliding doors to the deck. Features a floor-to-ceiling brick fire place, 2-brand new picture windows (Oct 2025) flanking the fireplace and two new (Sept. 2025) skylights; wet bar with shelving and cabinets. Main floor office / study adjoins the family room and overlooks the conservancy area. Main-level laundry room has a cedar coat closet, cabinets, counter space, utility tub and a large window to the treed front yard. Upstairs primary bedroom overlooks the conservancy, has new hardwood floor, tiled bathroom with a jetted tub, separate shower (April 2025), 2 separate new vanity countertops with sinks, a walk-in closet, new skylight and a window overlooking the treed front yard and a pond across the street. Three additional, generous sized bedrooms share an updated hall bath. Unfinished full basement has a lot of potential for additional living space with no property tax increase - 9 ft ceiling, brick fireplace, roughed-in plumbing. Deck offers total privacy to enjoy mature trees and a connection to nature. New Brava roof (Sept. 2025) with 50 year transferable warranty. Exterior recently painted. Subdivision is on 80+ acres, with 29 homes single entry/exit (no thru traffic), 2 nature trails, 2 lakes and a creek. Coveniently located off of Rt. 22 & Rt. 83, less than 10 minutes to Metra station, Stevenson high school, Vernon Library, I-94 exit and Rt 53. Close to Sunset foods and Deer Park shopping center. Award winning school districts - 96 (Country Meadows Elem., Woodlawn Middle) and 125 (Adlai E Stevenson High School)
| DAYS ON MARKET | 103 | LAST UPDATED | 12/18/2025 |
|---|---|---|---|
| TRACT | Stonehaven | YEAR BUILT | 1994 |
| COMMUNITY | Hawthorn Woods / Lake Zurich / Kildeer / Long Gro | GARAGE SPACES | 3.0 |
| COUNTY | Lake | STATUS | Conditional |
| PROPERTY TYPE(S) | Single Family |
| School District | Adlai E Stevenson High School |
|---|---|
| Elementary School | Country Meadows Elementary Schoo |
| Jr. High School | Woodlawn Middle School |
| High School | Adlai E Stevenson High School |
| PRICE HISTORY | |
| Prior to Nov 12, '25 | $925,000 |
|---|---|
| Nov 12, '25 - Today | $899,900 |
| ADDITIONAL DETAILS | |
| AIR | Ceiling Fan(s), Central Air |
|---|---|
| AIR CONDITIONING | Yes |
| APPLIANCES | Dishwasher, Dryer, Humidifier, Range, Range Hood, Refrigerator, Stainless Steel Appliance(s), Washer, Water Softener |
| AREA | Hawthorn Woods / Lake Zurich / Kildeer / Long Gro |
| BASEMENT | Bath/Stubbed, Full, Sump Pump, Unfinished, Yes |
| CONSTRUCTION | Brick, Cedar |
| FIREPLACE | Yes |
| GARAGE | Attached Garage, Yes |
| HEAT | Forced Air, Natural Gas |
| HOA DUES | 150 |
| INTERIOR | Vaulted Ceiling(s), Wet Bar |
| LOT | 1.5 acre(s) |
| LOT DIMENSIONS | 1.5 |
| PARKING | Concrete, Garage Door Opener, Garage, Attached |
| SEWER | Septic Tank |
| STYLE | Traditional |
| SUBDIVISION | Stonehaven |
| TAXES | 17312 |
| UTILITIES | Cable Available |
| WATER | Well |
MORTGAGE CALCULATOR
TOTAL MONTHLY PAYMENT
0
P
I
*Estimate only
| SATELLITE VIEW |
| / | |
We respect your online privacy and will never spam you. By submitting this form with your telephone number
you are consenting for Humderto
Garcia to contact you even if your name is on a Federal or State
"Do not call List".
Listed with Circle One Realty
The data relating to real estate for sale on this web site comes in part from the Broker ReciprocitySM Program of MRED. All real estate listings are marked with the Broker ReciprocitySM logo or the MRED Broker ReciprocitySM thumbnail logo (a little black house) and detailed information about them includes the name of the listing brokers.
The broker providing these data believes them to be correct, but advises interested parties to confirm them before relying on them in a purchase decision.
Copyright 2026 MRED. All rights reserved.

The broker providing these data believes them to be correct, but advises interested parties to confirm them before relying on them in a purchase decision.
Copyright 2026 MRED. All rights reserved.
This IDX solution is (c) Diverse Solutions 2026.