|
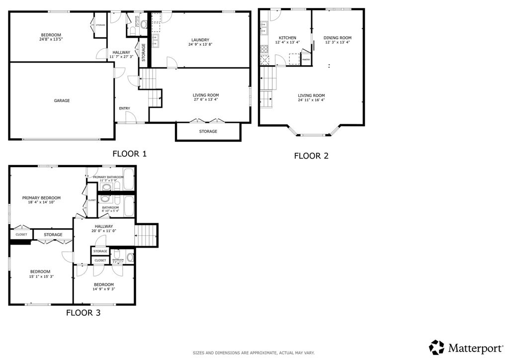
Welcome to this custom quad-level home in the heart of South Holland, offering peaceful river views! Step into the inviting foyer with access to a half bath and a versatile flex room ideal for a home office or study. The spacious living room features hardwood flooring and a large bay window that fills the space with natural light. Host gatherings in the formal dining room or enjoy everyday meals in the sunny kitchen with stainless steel appliances, a pantry closet, ample cabinetry, table space, and direct access to the backyard. Upstairs, the elegant primary suite includes dual closets and a full ensuite bath. The second level also offers a spacious bedroom with a half ensuite bath, another generously sized bedroom, and an additional full bath. The finished lower level provides even more living space with a family room and a laundry area. The outdoor space is truly special with a private, fully fenced yard overlooking the Little Calumet River. Enjoy the beautiful side garden or entertain under the patio gazebo. A park and walking paths are less than half a mile away, making this a wonderful location for both relaxation and recreation. Recent updates include a new roof in 2019, a new water heater in 2021, and laminate wood floors installed in 2021. This home is also close to Veterans Memorial Park, Sand Ridge Nature Center, shopping, dining, schools, and major roadways for easy commuting. The current owner has lovingly maintained this home, just move in and enjoy! Come see this one-of-a-kind South Holland gem and make it yours today!
| DAYS ON MARKET | 9 | LAST UPDATED | 10/23/2025 |
|---|---|---|---|
| YEAR BUILT | 1961 | COMMUNITY | South Holland |
| GARAGE SPACES | 2.5 | COUNTY | Cook |
| STATUS | Active | PROPERTY TYPE(S) | Single Family |
| School District | Thornridge High School |
|---|---|
| Elementary School | New Beginnings Learning Academy |
| High School | Thornridge High School |
| ADDITIONAL DETAILS | |
| AIR | Ceiling Fan(s), Central Air |
|---|---|
| AIR CONDITIONING | Yes |
| APPLIANCES | Cooktop, Double Oven, Dryer, Humidifier, Microwave, Range, Range Hood, Refrigerator, Washer |
| AREA | South Holland |
| BASEMENT | Finished, Partial, Sump Pump, Yes |
| CONSTRUCTION | Brick |
| GARAGE | Attached Garage, Yes |
| HEAT | Natural Gas |
| INTERIOR | Walk-In Closet(s) |
| LOT | 0.35 acre(s) |
| LOT DIMENSIONS | 15208 |
| PARKING | Concrete, Garage Door Opener, Garage, On Site, Attached |
| SEWER | Public Sewer |
| TAXES | 8958 |
| UTILITIES | Cable Available |
| WATER | Public |
MORTGAGE CALCULATOR
TOTAL MONTHLY PAYMENT
0
P
I
*Estimate only
| SATELLITE VIEW |
| / | |
We respect your online privacy and will never spam you. By submitting this form with your telephone number
you are consenting for Humderto
Garcia to contact you even if your name is on a Federal or State
"Do not call List".
Listed with Redfin Corporation
The data relating to real estate for sale on this web site comes in part from the Broker ReciprocitySM Program of MRED. All real estate listings are marked with the Broker ReciprocitySM logo or the MRED Broker ReciprocitySM thumbnail logo (a little black house) and detailed information about them includes the name of the listing brokers.
The broker providing these data believes them to be correct, but advises interested parties to confirm them before relying on them in a purchase decision.
Copyright 2025 MRED. All rights reserved.

The broker providing these data believes them to be correct, but advises interested parties to confirm them before relying on them in a purchase decision.
Copyright 2025 MRED. All rights reserved.
This IDX solution is (c) Diverse Solutions 2025.