|
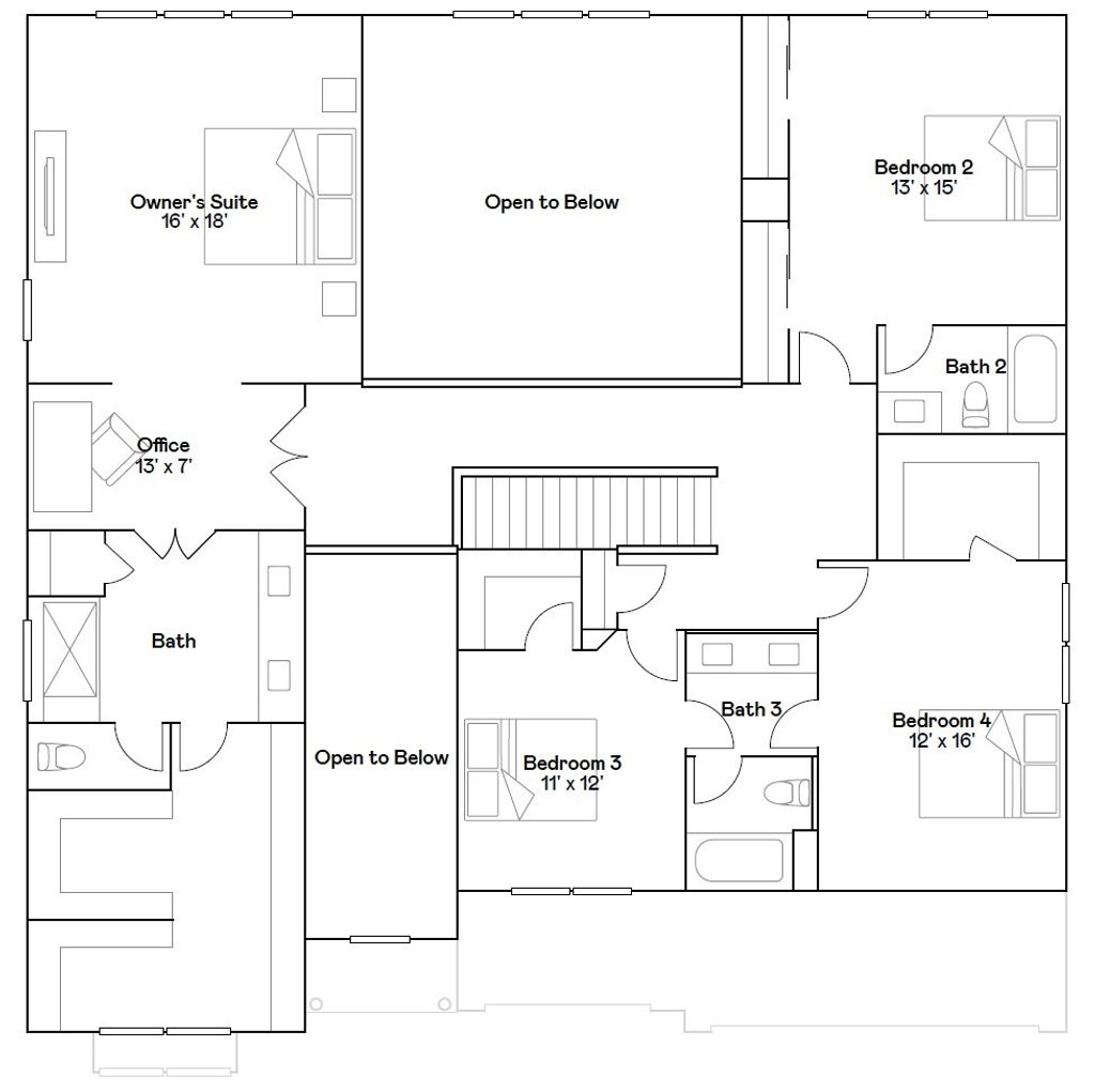
READY FOR MAY DELIVERY!! Homesite #0239 This new two-story home is the community's largest floorplan. The first floor features a living and dining room at the front of the home, an open design among the family room, designer-select options, gourmet kitchen with GE Profile Double Oven, 36" cooktop, subway tile backsplash, soft-close cabinetry and drawers throughout and 36" vent hood, breakfast room, and a secluded study. Upstairs, three secondary bedrooms and an owner's suite with a home office and a giant walk-in closet provide tranquil havens for family members. Exterior will be James Hardie Night Gray color siding with Old Lafayette exterior color brick. (pic for reference ONLY) *Photos are not this actual home* Ponds of Stony Creek is a welcoming community of new single-family homes in Elgin, IL, offering the perfect blend of comfort, convenience, and outdoor fun. Designed with families in mind, this community boasts fantastic onsite amenities, including a splash park, tot lot, picnic area, and scenic multi-use trails that wind through natural surroundings. Just a short drive away, downtown Elgin offers even more to explore. Situated along the Fox River, it features charming historic architecture, diverse shops and restaurants, and the popular Elgin Riverwalk-a local favorite for leisurely strolls and riverside views. Enjoy year-round entertainment with festivals, events, and exciting attractions like the Grand Victoria Casino. At Ponds of Stony Creek, every day brings new opportunities for recreation, relaxation, and connection in a community you'll love to call home.
| DAYS ON MARKET | 147 | LAST UPDATED | 3/10/2026 |
|---|---|---|---|
| TRACT | Ponds of Stony Creek | YEAR BUILT | 2025 |
| COMMUNITY | Elgin | GARAGE SPACES | 3.0 |
| COUNTY | Kane | STATUS | Active |
| PROPERTY TYPE(S) | Single Family |
| School District | St Charles North High School |
|---|---|
| Elementary School | Ferson Creek Elementary School |
| Jr. High School | Thompson Middle School |
| High School | St Charles North High School |
| PRICE HISTORY | |
| Prior to Jan 2, '26 | $788,590 |
|---|---|
| Jan 2, '26 - Feb 5, '26 | $793,590 |
| Feb 5, '26 - Mar 10, '26 | $774,900 |
| Mar 10, '26 - Today | $778,900 |
| ADDITIONAL DETAILS | |
| AIR | Central Air |
|---|---|
| AIR CONDITIONING | Yes |
| AMENITIES | Insurance |
| APPLIANCES | Cooktop, Dishwasher, Disposal, Microwave, Oven, Range Hood, Stainless Steel Appliance(s) |
| AREA | Elgin |
| BASEMENT | Full, Unfinished, Yes |
| CONSTRUCTION | Brick, Other |
| GARAGE | Attached Garage, Yes |
| HEAT | Forced Air, Natural Gas |
| HOA DUES | 500 |
| LOT | 0 |
| LOT DIMENSIONS | 10640 |
| PARKING | Asphalt, Garage Door Opener, Attached, Garage |
| SEWER | Public Sewer |
| SUBDIVISION | Ponds of Stony Creek |
| WATER | Public |
MORTGAGE CALCULATOR
TOTAL MONTHLY PAYMENT
0
P
I
*Estimate only
| SATELLITE VIEW |
| / | |
We respect your online privacy and will never spam you. By submitting this form with your telephone number
you are consenting for Humderto
Garcia to contact you even if your name is on a Federal or State
"Do not call List".
Listed with HomeSmart Connect LLC
The data relating to real estate for sale on this web site comes in part from the Broker ReciprocitySM Program of MRED. All real estate listings are marked with the Broker ReciprocitySM logo or the MRED Broker ReciprocitySM thumbnail logo (a little black house) and detailed information about them includes the name of the listing brokers.
The broker providing these data believes them to be correct, but advises interested parties to confirm them before relying on them in a purchase decision.
Copyright 2026 MRED. All rights reserved.

The broker providing these data believes them to be correct, but advises interested parties to confirm them before relying on them in a purchase decision.
Copyright 2026 MRED. All rights reserved.
This IDX solution is (c) Diverse Solutions 2026.