|
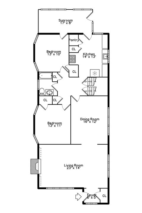
INCREDIBLE PRICE! INCREDIBLE SOUTH EDGEBROOK - IN THE JEFFERSON PARK NEIGHBORHOOD ON THE NORTHWEST SIDE OF CHICAGO! Classic English Tudor-Style Home Features 3 Large Bedrooms, 2 Full Baths, plus a Full Basement! Large Living Room with Woodburning Fireplace. Separate Dining Room, Eat-In Kitchen, plus adjoining heated Sunroom! Beautiful Leaded Glass Windows, Romantic Front Porch. Bedrooms are LARGE. Lots of Room to Expand Upstairs, and in Full Basement. Big Back Yard, Storage Shed or Room to Build Your 2 1/2 Car Garage (No Garage Currently). Incredible, Secluded Block! Near CTA Milwaukee Avenue Bus and Blue Line L, METRA, Kennedy and Edens Expressways, Tri-State and Northwest Tollways! Neighborhood Park, Forest Preserves, Public Golf Course, and Top-Rated Hitch Elementary and Taft High School. Update with your Finishing Touches and Make This Your Dream Home!
| DAYS ON MARKET | 61 | LAST UPDATED | 12/11/2025 |
|---|---|---|---|
| TRACT | South Edgebrook | YEAR BUILT | 1930 |
| COMMUNITY | CHI - Jefferson Park | COUNTY | Cook |
| STATUS | Conditional | PROPERTY TYPE(S) | Single Family |
| School District | Taft High School |
|---|---|
| Elementary School | Hitch Elementary School |
| Jr. High School | Hitch Elementary School |
| High School | Taft High School |
| PRICE HISTORY | |
| Prior to Oct 31, '25 | $467,400 |
|---|---|
| Oct 31, '25 - Nov 15, '25 | $447,400 |
| Nov 15, '25 - Today | $429,700 |
| ADDITIONAL DETAILS | |
| AIR | Window Unit(s) |
|---|---|
| AIR CONDITIONING | Yes |
| APPLIANCES | Dryer, Portable Dishwasher, Range, Refrigerator, Washer |
| AREA | CHI - Jefferson Park |
| BASEMENT | Full, Partially Finished, Yes |
| CONSTRUCTION | Brick |
| EXTERIOR | Lighting |
| FIREPLACE | Yes |
| HEAT | Baseboard, Natural Gas, Steam |
| INTERIOR | Pantry |
| LOT | 0 |
| LOT DIMENSIONS | 30 x 125 |
| SEWER | Public Sewer |
| STYLE | English, Tudor |
| SUBDIVISION | South Edgebrook |
| TAXES | 8254.43 |
MORTGAGE CALCULATOR
TOTAL MONTHLY PAYMENT
0
P
I
*Estimate only
| SATELLITE VIEW |
| / | |
We respect your online privacy and will never spam you. By submitting this form with your telephone number
you are consenting for Humderto
Garcia to contact you even if your name is on a Federal or State
"Do not call List".
Listed with Keller Williams ONEChicago
The data relating to real estate for sale on this web site comes in part from the Broker ReciprocitySM Program of MRED. All real estate listings are marked with the Broker ReciprocitySM logo or the MRED Broker ReciprocitySM thumbnail logo (a little black house) and detailed information about them includes the name of the listing brokers.
The broker providing these data believes them to be correct, but advises interested parties to confirm them before relying on them in a purchase decision.
Copyright 2025 MRED. All rights reserved.

The broker providing these data believes them to be correct, but advises interested parties to confirm them before relying on them in a purchase decision.
Copyright 2025 MRED. All rights reserved.
This IDX solution is (c) Diverse Solutions 2025.