|
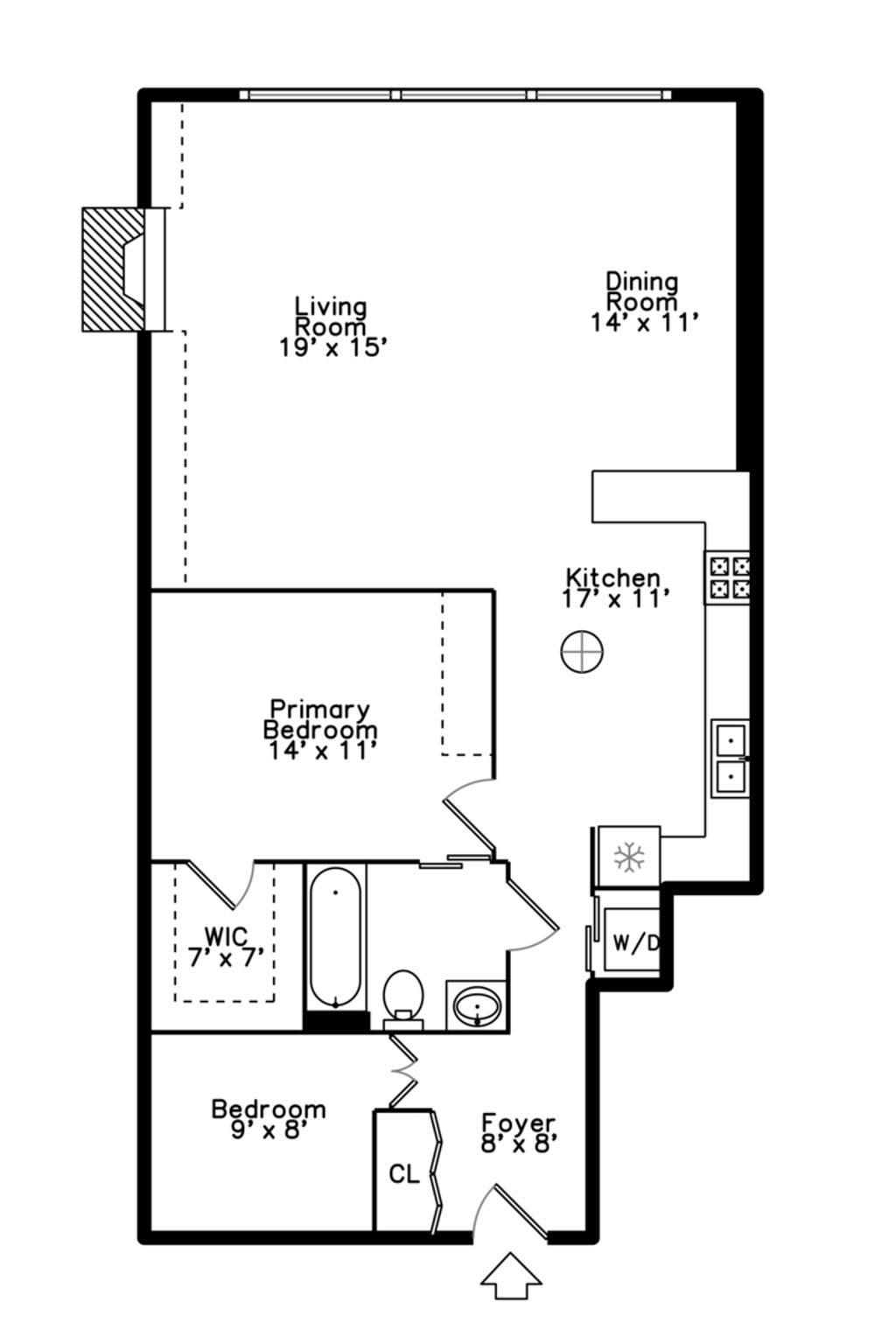
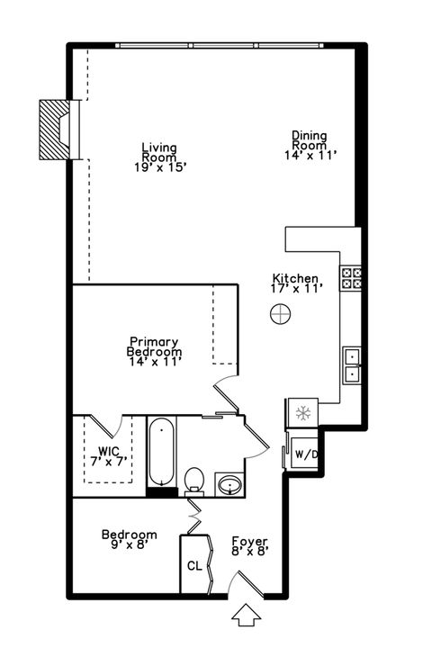
HOT, RARELY AVAILABLE MOTOR ROW LOFTS! Live in style at this standout loft in the original Cadillac building in the South Loop! This two bedroom combines historic charm with smart modern upgrades-featuring soaring 16' timber ceilings and a flexible, open layout. A spacious foyer with generous closet space welcomes you into the unit. The kitchen is equipped with granite countertops, high-end stainless steel appliances (including a premium microwave), bar seating, dark modern cabinetry, and crisp white subway tile. Track lighting was updated in 2020, and the kitchen and den received a fresh refresh in July 2025. The open-concept living/dining area is bathed in natural light from floor-to-ceiling windows, complete with custom battery-powered blinds (installed in 2022). The living room features a cozy fireplace, custom built-ins with bar area, and three 14' functional windows-no screens, for a clean, uninterrupted view. The spacious primary bedroom includes a large walk-in closet and a full wall of built-ins. The bathroom offers glass shower doors and a tub/shower combo. The second bedroom is perfect for a home office or guest space. Additional upgrades include: Brand new In-Unit front-loading washer & dryer (2025), tucked behind a charming sliding farmhouse door for style and space-saving. HVAC replaced in December 2023, with a 5-year transferrable warranty. Entire unit painted in 2023 for a fresh, modern look. Enjoy city views from the rooftop deck. Premium first-floor deeded parking space (additional $25,000) in the attached heated garage. You'll also have tall cage storage, access to a bike room, and extra building storage. Investor-friendly and pet-friendly, with no rental restrictions. HOA includes: water, garbage, internet, cable, garage and elevator maintenance. Located just two blocks from the Green Line and minutes from downtown, lakefront paths, coffee shops, breweries, and expressways-this is a rare gem you don't want to miss!
| DAYS ON MARKET | 5 | LAST UPDATED | 10/24/2025 |
|---|---|---|---|
| YEAR BUILT | 1910 | COMMUNITY | CHI - Near South Side |
| GARAGE SPACES | 1.0 | COUNTY | Cook |
| STATUS | Active | PROPERTY TYPE(S) | Condo/Townhouse/Co-Op |
| ADDITIONAL DETAILS | |
| AIR | Central Air |
|---|---|
| AIR CONDITIONING | Yes |
| AMENITIES | Insurance, Internet, Security, Water |
| APPLIANCES | Dishwasher, Disposal, Dryer, Freezer, Gas Cooktop, Microwave, Range, Refrigerator, Stainless Steel Appliance(s), Washer |
| AREA | CHI - Near South Side |
| BASEMENT | None |
| CONSTRUCTION | Brick, Stone |
| GARAGE | Attached Garage, Yes |
| HEAT | Forced Air, Natural Gas |
| HOA DUES | 570 |
| INTERIOR | Beamed Ceilings, Bookcases, Built-in Features, Elevator, Open Floorplan, Storage, Walk-In Closet(s) |
| LOT | 0 |
| LOT DIMENSIONS | COMMON |
| PARKING | Garage Door Opener, On Site, Deeded, Attached, Garage |
| SEWER | Public Sewer |
| STORIES | 5 |
| TAXES | 4015.35 |
| WATER | Public |
MORTGAGE CALCULATOR
TOTAL MONTHLY PAYMENT
0
P
I
*Estimate only
| SATELLITE VIEW |
| / | |
We respect your online privacy and will never spam you. By submitting this form with your telephone number
you are consenting for Humderto
Garcia to contact you even if your name is on a Federal or State
"Do not call List".
Listed with Baird & Warner
The data relating to real estate for sale on this web site comes in part from the Broker ReciprocitySM Program of MRED. All real estate listings are marked with the Broker ReciprocitySM logo or the MRED Broker ReciprocitySM thumbnail logo (a little black house) and detailed information about them includes the name of the listing brokers.
The broker providing these data believes them to be correct, but advises interested parties to confirm them before relying on them in a purchase decision.
Copyright 2025 MRED. All rights reserved.

The broker providing these data believes them to be correct, but advises interested parties to confirm them before relying on them in a purchase decision.
Copyright 2025 MRED. All rights reserved.
This IDX solution is (c) Diverse Solutions 2025.