|
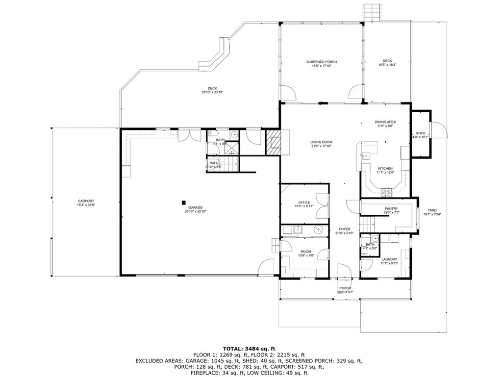
Experience lakeside living at its finest in this meticulously crafted home, where timeless Amish woodwork meets cutting-edge smart-home technology. Every inch of this residence reflects exceptional attention to detail through customized Amish cabinetry, built-in shelving that reflects true artisan craftsmanship with each piece thoughtfully designed, and every corner finished with precision. The beauty unfolds through rich wood tones, elegant trim work and gorgeous finishes that speak to the care and skill poured into its creation, surrounded by breathtaking waterfront views. The thoughtful design of the home also has the ability to transform into a multi-family living space, featuring a separate suite with sleeping quarters and a second kitchen (prep) that can be closed off from the main living area-providing flexibility for guests, extended family or an in-law suite. Enter through the welcoming foyer that connects to a mudroom with custom cubbies, benches and a slop sink, conveniently located off the 3.5 car garage. The nearby laundry room includes additional storage and a high-efficiency washer and dryer. The office can easily convert to a 5th bedroom on the first floor for convenience or expand into more living space. The open kitchen, dining, and living areas create the perfect space for entertaining, seamlessly extending to a screened-in porch and composite decks overlooking the lake. Enjoy 90 feet of private waterfront, including a Floe V 4600 aluminum boat lift with canopy and aluminum dock. After a day on the water, a climate-controlled walk-in storage room off the back deck keeps your lake gear in organized, pristine condition. Designed for easy clean-up before entering the home, take advantage of the full bathroom also accessible from the back deck or garage. Head up to the second floor and retreat to your own private sanctuary in the primary suite, where every detail is to be admired. Wake up to the gorgeous panoramic lake views that fill the room with natural light and serenity. A dedicated office space, seamlessly integrated into the suite, adds an inspiring setting for productivity and reflection. The fireplace wrapped in Ipe Brazilian Walnut is a stunning focal point that radiates warmth and sophistication, along with the beautiful woodwork lining the vaulted ceiling, accent wall and crown molding with built-in lighting. The expansive walk-in closet features custom storage and vanity area while the spa-like ensuite has a whirlpool tub, walk-in shower with seating and a multi-function shower panel tower system. An added highlight- your own private balcony! There are three additional bedrooms on the second floor along with another full bathroom. Beyond its charm and craftsmanship, this property also presents a unique opportunity for investors and homeowners alike. With its careful design, this home has the potential to accommodate two fully functional living spaces- the possibility of living in one half while renting out the other or operating as a luxury short-term rental, offering exceptional income potential through Airbnb/Vrbo in a desirable lakefront location. Wonder Lake spans nearly 840 acres with seven miles of shoreline, showcases award-winning water ski shows every week and Wonder Lake Yacht Club hosts sailboat races on Sundays. Major dredging in 2015 enhanced depth and water quality adding 100 acres of cleaner water. Additional property highlights include: new roof (2017), asphalt driveway (2019), septic system (2016), carport for boat storage, 2 HVAC systems, security cameras with local NVR, complete data/WiFi network wiring infrastructure, automated underground watering system pumped from lake, and smart-home technology able to control the lawn irrigation system, kitchen sink, garage doors, TVs, speakers, thermostats, and lights. Whether you're envisioning a family compound, a dual-income retreat or a lakeside investment property that pays for itself, this home offers unmatched versatility and value!
| DAYS ON MARKET | 2 | LAST UPDATED | 10/31/2025 |
|---|---|---|---|
| TRACT | White Oaks Bay | YEAR BUILT | 2005 |
| COMMUNITY | Wonder Lake | GARAGE SPACES | 3.5 |
| COUNTY | McHenry | STATUS | Active |
| PROPERTY TYPE(S) | Single Family |
| ADDITIONAL DETAILS | |
| AIR | Ceiling Fan(s), Central Air |
|---|---|
| AIR CONDITIONING | Yes |
| APPLIANCES | Stainless Steel Appliance(s), Water Softener, Water Softener Owned |
| AREA | Wonder Lake |
| BASEMENT | Crawl Space |
| CONSTRUCTION | Cedar, Vinyl Siding |
| EXTERIOR | Balcony |
| FIREPLACE | Yes |
| GARAGE | Yes |
| HEAT | Forced Air, Natural Gas |
| INTERIOR | Built-in Features, In-Law Floorplan, Open Floorplan, Pantry, Vaulted Ceiling(s), Walk-In Closet(s) |
| LOT | 0.32 acre(s) |
| LOT DIMENSIONS | 90 X 144 |
| PARKING | Garage Door Opener, Carport, Heated Garage, On Site, Attached, Garage |
| SEWER | Septic Tank |
| SUBDIVISION | White Oaks Bay |
| TAXES | 17561.72 |
| VIEW | Yes |
| VIEW DESCRIPTION | Water |
| WATER | Well |
| WATERFRONT | Yes |
| WATERFRONT DESCRIPTION | Lake Front, Lake Privileges, Waterfront |
MORTGAGE CALCULATOR
TOTAL MONTHLY PAYMENT
0
P
I
*Estimate only
| SATELLITE VIEW |
| / | |
We respect your online privacy and will never spam you. By submitting this form with your telephone number
you are consenting for Humderto
Garcia to contact you even if your name is on a Federal or State
"Do not call List".
Listed with Century 21 Integra
The data relating to real estate for sale on this web site comes in part from the Broker ReciprocitySM Program of MRED. All real estate listings are marked with the Broker ReciprocitySM logo or the MRED Broker ReciprocitySM thumbnail logo (a little black house) and detailed information about them includes the name of the listing brokers.
The broker providing these data believes them to be correct, but advises interested parties to confirm them before relying on them in a purchase decision.
Copyright 2025 MRED. All rights reserved.

The broker providing these data believes them to be correct, but advises interested parties to confirm them before relying on them in a purchase decision.
Copyright 2025 MRED. All rights reserved.
This IDX solution is (c) Diverse Solutions 2025.