| 
 | 
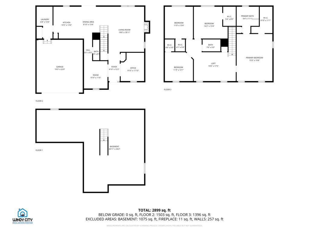
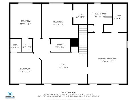
Welcome Home to Timber Trails! Every home has a story-and this one is ready for its next beautiful chapter. Thoughtfully updated and meticulously cared for, this 4-bedroom, 2.5-bath home offers the perfect blend of comfort, function, and style in the heart of the beloved Timber Trails community. Step inside to find an inviting open layout that feels both warm and refined. The updated kitchen is truly the heart of the home-featuring a large island, 42" cabinets, granite countertops, and stainless steel appliances that make cooking and gathering effortless. The living room fireplace adds cozy charm, creating the perfect space for quiet evenings or entertaining with friends. Upstairs, the primary suite is a true retreat with a walk-in closet and luxury bath showcasing a soaking tub, separate shower, and double vanity. A versatile loft offers flexible space-ideal for a movie room, home office, reading nook, or play area. The basement provides even more room to relax, create, or play-while outside, you'll find a backyard oasis made for year-round enjoyment. Professionally landscaped and beautifully designed, it includes a fire pit, vegetable garden with sprinkler setup, and even a hot water spigot for convenience. Whether you're hosting summer cookouts or sitting by the fire, this space is perfect for relaxing, entertaining, or enjoying quiet evenings under the stars. Recent updates ensure peace of mind and modern comfort, including new carpet, paint, water heater, and vertical blinds (2025); a new roof, furnace, refrigerator, and Wi-Fi enabled garage door opener (2024); A/C (2022); and vinyl flooring, granite countertops, and a stainless steel microwave and fridge (2020). Smart features like the Ring doorbell complete the package. Located near parks, ponds, and community walking paths, this home offers the perfect balance of connection and calm-a place where every detail has been thoughtfully designed for living well. You won't want to miss this one!
| DAYS ON MARKET | 1 | LAST UPDATED | 10/30/2025 | 
|---|---|---|---|
| TRACT | Timber Trails | YEAR BUILT | 2004 | 
| COMMUNITY | Gilberts | GARAGE SPACES | 2.0 | 
| COUNTY | Kane | STATUS | Active | 
| PROPERTY TYPE(S) | Single Family | 
| School District | Hampshire High School | 
|---|---|
| Elementary School | Gilberts Elementary School | 
| Jr. High School | Hampshire Middle School | 
| High School | Hampshire High School | 
| ADDITIONAL DETAILS | |
| AIR | Central Air | 
|---|---|
| AIR CONDITIONING | Yes | 
| APPLIANCES | Dishwasher, Disposal, Microwave, Range, Refrigerator, Stainless Steel Appliance(s) | 
| AREA | Gilberts | 
| BASEMENT | Full, Unfinished, Yes | 
| CONSTRUCTION | Brick, Vinyl Siding | 
| EXTERIOR | Fire Pit | 
| FIREPLACE | Yes | 
| GARAGE | Attached Garage, Yes | 
| HEAT | Forced Air, Natural Gas | 
| HOA DUES | 390 | 
| INTERIOR | Entrance Foyer, Granite Counters, High Ceilings, Open Floorplan, Pantry, Walk-In Closet(s) | 
| LOT | 0 | 
| LOT DESCRIPTION | Landscaped, Wetlands | 
| LOT DIMENSIONS | 70X130 | 
| PARKING | Asphalt, Garage Door Opener, On Site, Attached, Garage | 
| SEWER | Public Sewer | 
| STYLE | Traditional | 
| SUBDIVISION | Timber Trails | 
| TAXES | 10013 | 
| WATER | Public | 
            MORTGAGE CALCULATOR
        
        TOTAL MONTHLY PAYMENT
0
                    P
                        I 
                    
            *Estimate only
        
    | SATELLITE VIEW | 
| / | |
	We respect your online privacy and will never spam you. By submitting this form with your telephone number
	you are consenting for Humderto
	Garcia to contact you even if your name is on a Federal or State
	"Do not call List".
	
    Listed with Baird & Warner Real Estate - Algonquin
	The data relating to real estate for sale on this web site comes in part from the Broker ReciprocitySM Program of MRED. All real estate listings are marked with the Broker ReciprocitySM logo or the MRED Broker ReciprocitySM thumbnail logo (a little black house) and detailed information about them includes the name of the listing brokers.
The broker providing these data believes them to be correct, but advises interested parties to confirm them before relying on them in a purchase decision.
Copyright 2025 MRED. All rights reserved.

	
	
	
    
The broker providing these data believes them to be correct, but advises interested parties to confirm them before relying on them in a purchase decision.
Copyright 2025 MRED. All rights reserved.

This IDX solution is (c) Diverse Solutions 2025.
 
				 Twitter
									        Twitter Facebook
									        Facebook Email
									        Email 
									 
									 
									 
									 
									 
									 
									 
									 
									 
									 
									 
									 
									 
									 
									 
									 
									 
									 
									 
									 
									 
									 
									 
									 
									 
									 
									 
									 
									 
									 
									 
									 
									 
									 
									 
									 
									 
									 
									 
									 
									 
									 
									 
									