|
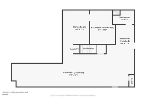
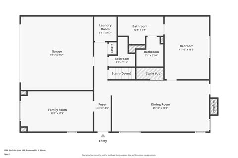
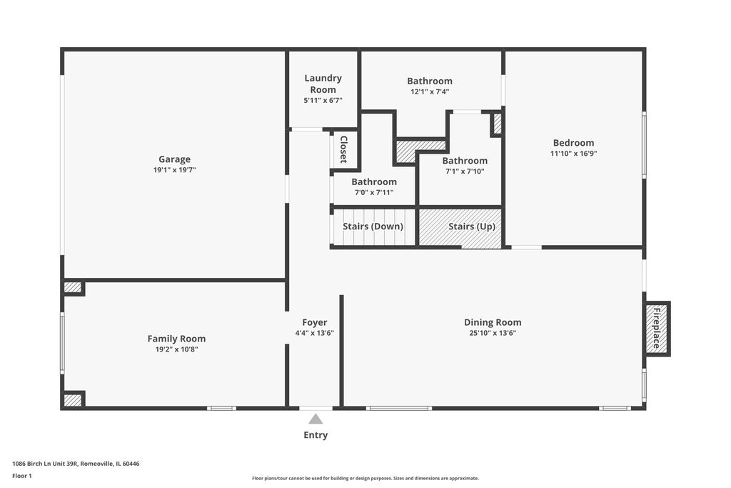
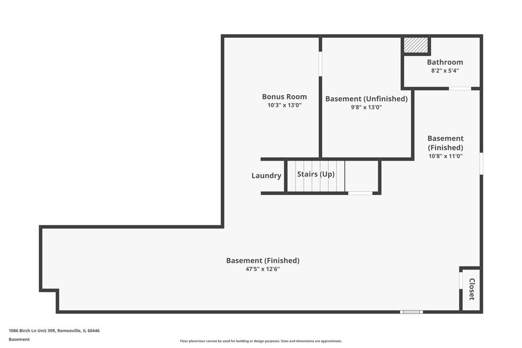
Step into this cherished 1/2 duplex-lovingly owned by the same family since it was built-and make it your forever home! With 3 bedrooms upstairs (plus a 4th in the basement) and 3.5 baths, this home offers space, privacy, and versatility. The first-floor bedroom with its own full bath is perfect for guests or multi-generational living, while the second-floor master suite with shared bathroom provides a peaceful retreat. The fully finished basement is a standout feature: a spacious rec room, full bathroom, and additional bedroom with private exterior access-ideal for a home office, in-law suite, or teen hangout without ever stepping through the main house! The large eat-in kitchen flows seamlessly into a bright living room with room for a formal dining setup, and the cozy wood-burning fireplace sets the scene for chilly Chicago nights. First-floor laundry adds everyday convenience, and because this is a duplex (not a condo or townhome), you own the land-including a rare, expansive pie-shaped yard, a fantastic patio, and a beautiful open view! Don't miss this unique opportunity-explore the immersive 3D tour with floor plan and schedule your private showing TODAY!
| DAYS ON MARKET | 1 | LAST UPDATED | 10/31/2025 |
|---|---|---|---|
| YEAR BUILT | 2005 | COMMUNITY | Romeoville |
| GARAGE SPACES | 2.0 | COUNTY | Will |
| STATUS | Active | PROPERTY TYPE(S) | Condo/Townhouse/Co-Op |
| School District | Romeoville High School |
|---|---|
| Elementary School | Beverly Skoff Elementary School |
| Jr. High School | John J Lukancic Middle School |
| High School | Romeoville High School |
| ADDITIONAL DETAILS | |
| AIR | Central Air |
|---|---|
| AIR CONDITIONING | Yes |
| AMENITIES | Insurance, Snow Removal |
| APPLIANCES | Dishwasher, Disposal, Dryer, Range, Range Hood, Refrigerator, Washer |
| AREA | Romeoville |
| BASEMENT | Exterior Entry, Finished, Full, Yes |
| CONSTRUCTION | Brick |
| FIREPLACE | Yes |
| GARAGE | Attached Garage, Yes |
| HEAT | Forced Air, Natural Gas |
| HOA DUES | 245 |
| INTERIOR | In-Law Floorplan |
| LOT | 0 |
| LOT DIMENSIONS | 10295 |
| PARKING | Garage Door Opener, On Site, Attached, Garage |
| SEWER | Public Sewer |
| STORIES | 2 |
| TAXES | 8495 |
| WATER | Public |
MORTGAGE CALCULATOR
TOTAL MONTHLY PAYMENT
0
P
I
*Estimate only
| SATELLITE VIEW |
| / | |
We respect your online privacy and will never spam you. By submitting this form with your telephone number
you are consenting for Humderto
Garcia to contact you even if your name is on a Federal or State
"Do not call List".
Listed with Chase Real Estate LLC
The data relating to real estate for sale on this web site comes in part from the Broker ReciprocitySM Program of MRED. All real estate listings are marked with the Broker ReciprocitySM logo or the MRED Broker ReciprocitySM thumbnail logo (a little black house) and detailed information about them includes the name of the listing brokers.
The broker providing these data believes them to be correct, but advises interested parties to confirm them before relying on them in a purchase decision.
Copyright 2025 MRED. All rights reserved.

The broker providing these data believes them to be correct, but advises interested parties to confirm them before relying on them in a purchase decision.
Copyright 2025 MRED. All rights reserved.
This IDX solution is (c) Diverse Solutions 2025.