|
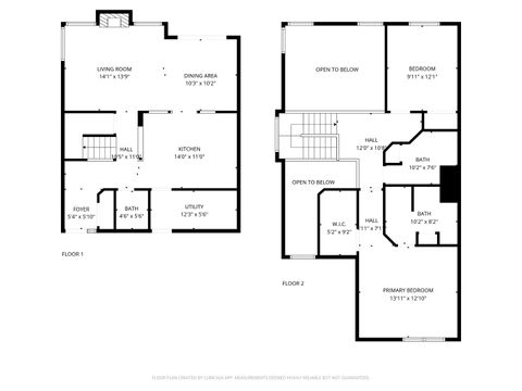
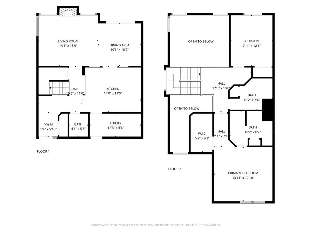
This beautifully updated townhome in the sought-after Windstone Crossing neighborhood offers a turnkey opportunity for its new owners. This 2-bedroom, 2.5-bath end unit offers the perfect blend of comfort, style, and convenience. Step inside to find high ceilings, newer flooring on the main level, and a bright, open layout ideal for entertaining or relaxing. The family room features soaring ceilings and a cozy gas fireplace, creating a spacious and comfortable place to unwind or gather with guests. The kitchen is equipped with premium Jenn-Air appliances and flows effortlessly into the dining area and private patio. Upstairs, the primary suite features a luxuriously upgraded bath with high-end finishes and a custom walk-in closet with built-ins. Additional highlights include a Climate Guard sliding door, furnace (2015), and humidifier (2018). Ample storage throughout, including built-in shelving in the garage. Located just 1.5 miles from vibrant downtown Algonquin, you'll enjoy quick access to restaurants, shopping, and the scenic Fox River trails. A truly move-in-ready home that's been lovingly cared for. The sellers have an assumable mortgage with an interest rate of 2.5.
| DAYS ON MARKET | 34 | LAST UPDATED | 11/5/2025 |
|---|---|---|---|
| TRACT | Windstone Crossing | YEAR BUILT | 1996 |
| COMMUNITY | Lake in the Hills | GARAGE SPACES | 2.0 |
| COUNTY | McHenry | STATUS | Conditional |
| PROPERTY TYPE(S) | Condo/Townhouse/Co-Op |
| School District | H D Jacobs High School |
|---|---|
| Elementary School | Lake In The Hills Elementary Sch |
| Jr. High School | Westfield Community School |
| High School | H D Jacobs High School |
| ADDITIONAL DETAILS | |
| AIR | Central Air |
|---|---|
| AIR CONDITIONING | Yes |
| AMENITIES | Insurance, Snow Removal |
| APPLIANCES | Cooktop, Dishwasher, Microwave, Range, Refrigerator, Stainless Steel Appliance(s), Washer |
| AREA | Lake in the Hills |
| BASEMENT | None |
| CONSTRUCTION | Vinyl Siding |
| FIREPLACE | Yes |
| GARAGE | Attached Garage, Yes |
| HEAT | Forced Air, Natural Gas |
| HOA DUES | 115 |
| INTERIOR | Cathedral Ceiling(s) |
| LOT | 0 |
| LOT DESCRIPTION | Corner Lot |
| LOT DIMENSIONS | 33x70 |
| PARKING | Asphalt, Garage Door Opener, Attached, Garage |
| SEWER | Public Sewer |
| STORIES | 2 |
| SUBDIVISION | Windstone Crossing |
| TAXES | 5725 |
| WATER | Public |
MORTGAGE CALCULATOR
TOTAL MONTHLY PAYMENT
0
P
I
*Estimate only
| SATELLITE VIEW |
| / | |
We respect your online privacy and will never spam you. By submitting this form with your telephone number
you are consenting for Humderto
Garcia to contact you even if your name is on a Federal or State
"Do not call List".
Listed with Baird & Warner
The data relating to real estate for sale on this web site comes in part from the Broker ReciprocitySM Program of MRED. All real estate listings are marked with the Broker ReciprocitySM logo or the MRED Broker ReciprocitySM thumbnail logo (a little black house) and detailed information about them includes the name of the listing brokers.
The broker providing these data believes them to be correct, but advises interested parties to confirm them before relying on them in a purchase decision.
Copyright 2025 MRED. All rights reserved.

The broker providing these data believes them to be correct, but advises interested parties to confirm them before relying on them in a purchase decision.
Copyright 2025 MRED. All rights reserved.
This IDX solution is (c) Diverse Solutions 2025.