|
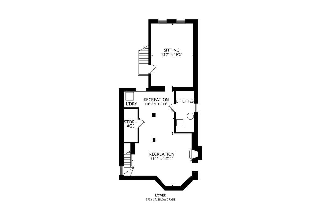
Multiple offers received Highest and best due by 2pm 11/1!! Beautifully updated 3-bedroom, 1.5-bath Georgian in Park View School District 70. This move-in-ready home features updated kitchen with a large window overlooking the yard, formal dining room as well as a formal living room with a beautiful fireplace and an extra-large family room. Convenient 1st floor powder room. The full bath has been updated and includes a large linen closet. The fully finished basement offers additional living space and direct access to the expansive backyard. New washer and dryer! Exterior highlights include a fully fenced yard, large 2-car garage, side drive, and additional parking. Other features: hardwood floors, crown molding, weather shield windows, energy efficient furnace, overhead sewer Convenient location near expressways, library, parks, and forest preserves.
| DAYS ON MARKET | 32 | LAST UPDATED | 11/1/2025 |
|---|---|---|---|
| YEAR BUILT | 1949 | COMMUNITY | Morton Grove |
| GARAGE SPACES | 2.0 | COUNTY | Cook |
| STATUS | Conditional | PROPERTY TYPE(S) | Single Family |
| School District | Niles West High School |
|---|---|
| Elementary School | Park View Elementary School |
| Jr. High School | Park View Elementary School |
| High School | Niles West High School |
| ADDITIONAL DETAILS | |
| AIR | Central Air |
|---|---|
| AIR CONDITIONING | Yes |
| AREA | Morton Grove |
| BASEMENT | Daylight, Finished, Yes |
| CONSTRUCTION | Brick |
| FIREPLACE | Yes |
| GARAGE | Yes |
| HEAT | Natural Gas |
| INTERIOR | Entrance Foyer |
| LOT | 0 |
| LOT DIMENSIONS | 45 X 124.68 |
| PARKING | On Site, Detached, Garage |
| SEWER | Public Sewer |
| TAXES | 10596 |
MORTGAGE CALCULATOR
TOTAL MONTHLY PAYMENT
0
P
I
*Estimate only
| SATELLITE VIEW |
| / | |
We respect your online privacy and will never spam you. By submitting this form with your telephone number
you are consenting for Humderto
Garcia to contact you even if your name is on a Federal or State
"Do not call List".
Listed with @properties Christies International Real Estate
The data relating to real estate for sale on this web site comes in part from the Broker ReciprocitySM Program of MRED. All real estate listings are marked with the Broker ReciprocitySM logo or the MRED Broker ReciprocitySM thumbnail logo (a little black house) and detailed information about them includes the name of the listing brokers.
The broker providing these data believes them to be correct, but advises interested parties to confirm them before relying on them in a purchase decision.
Copyright 2025 MRED. All rights reserved.

The broker providing these data believes them to be correct, but advises interested parties to confirm them before relying on them in a purchase decision.
Copyright 2025 MRED. All rights reserved.
This IDX solution is (c) Diverse Solutions 2025.