|
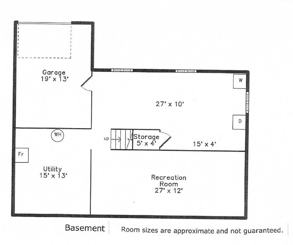
Classic all brick north Evanston home in move-in condition! Large elegant foyer with gorgeous staircase, hardwood flooring throughout, fireplace in living room, charming sunroom, separate library. Gracious custom arches between rooms, face brick on all 4 sides of the exterior. Beautifully updated eat-in kitchen with honed granite countertops and stainless steel appliances. Inviting deck off kitchen, perfect for outdoor dining. Four bedrooms and two full baths are all located on the second floor. Large third floor offers additional flexible space for TV/Media room, office, or 5th bedroom. The basement has a finished recreation room and plenty of storage. Attached garage with direct access to the house is especially convenient during inclement weather. Excellent location near Lighthouse Beach, Central Street shops and trains, Evanston Hospital, Northwestern University, Gillson Park. 5 minute drive to downtown Evanston and downtown Wilmette shops and restaurants as well. Click on 'additional information' for floor plan.
| DAYS ON MARKET | 4 | LAST UPDATED | 10/28/2025 |
|---|---|---|---|
| YEAR BUILT | 1930 | COMMUNITY | Evanston |
| GARAGE SPACES | 1.0 | COUNTY | Cook |
| STATUS | Active | PROPERTY TYPE(S) | Single Family |
| School District | Evanston Twp High School |
|---|---|
| Elementary School | Orrington Elementary School |
| Jr. High School | Haven Middle School |
| High School | Evanston Twp High School |
| ADDITIONAL DETAILS | |
| AIR | Central Air, Wall Unit(s) |
|---|---|
| AIR CONDITIONING | Yes |
| APPLIANCES | Dishwasher, Disposal, Double Oven, Dryer, Freezer, Range, Refrigerator, Stainless Steel Appliance(s), Washer |
| AREA | Evanston |
| BASEMENT | Full, Partially Finished, Yes |
| CONSTRUCTION | Brick |
| FIREPLACE | Yes |
| GARAGE | Attached Garage, Yes |
| HEAT | Forced Air, Natural Gas, Steam, Zoned |
| INTERIOR | Entrance Foyer |
| LOT | 0 |
| LOT DIMENSIONS | 50 x 120 |
| PARKING | Concrete, Garage Door Opener, On Site, Attached, Garage |
| SEWER | Public Sewer |
| STYLE | Colonial |
| TAXES | 21765.16 |
| WATER | Public |
MORTGAGE CALCULATOR
TOTAL MONTHLY PAYMENT
0
P
I
*Estimate only
| SATELLITE VIEW |
| / | |
We respect your online privacy and will never spam you. By submitting this form with your telephone number
you are consenting for Humderto
Garcia to contact you even if your name is on a Federal or State
"Do not call List".
Listed with Jameson Sotheby's International Realty
The data relating to real estate for sale on this web site comes in part from the Broker ReciprocitySM Program of MRED. All real estate listings are marked with the Broker ReciprocitySM logo or the MRED Broker ReciprocitySM thumbnail logo (a little black house) and detailed information about them includes the name of the listing brokers.
The broker providing these data believes them to be correct, but advises interested parties to confirm them before relying on them in a purchase decision.
Copyright 2025 MRED. All rights reserved.

The broker providing these data believes them to be correct, but advises interested parties to confirm them before relying on them in a purchase decision.
Copyright 2025 MRED. All rights reserved.
This IDX solution is (c) Diverse Solutions 2025.