|
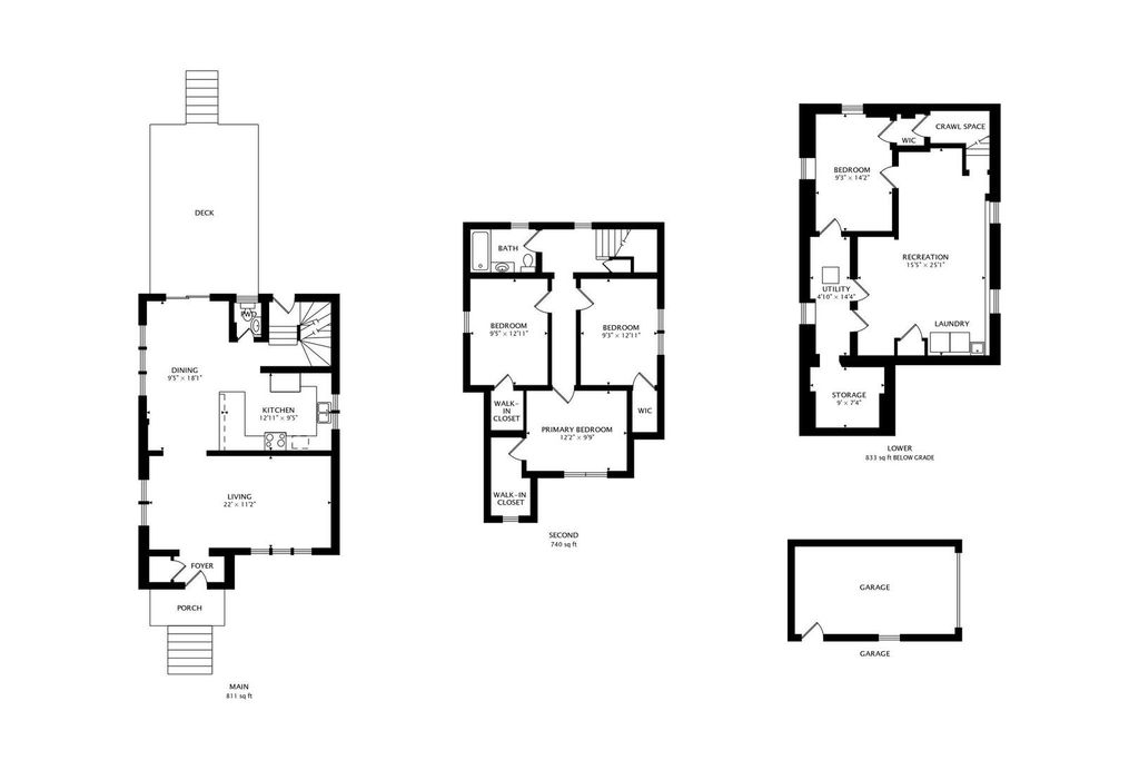
1,551 sq. ft. 3 BD/1.1 BA SFH (+ a detached 1 car garage) located in Blissful Berwyn! Hardwood flooring runs throughout the main and upper levels of this historical Tudor style home - complementing the original unpainted recessed panel doors and coved archways. The open-concept kitchen features granite countertops, a tiled backsplash, and stainless steel appliances. There is a powder room on the main floor as well as a sliding glass door that leads to a spacious rear deck. The exterior includes a charming front porch, a large fully-fenced backyard with tons of space for herbs/vegetables, and a front brick paver walkway. Travel upstairs and you'll find wainscoting in the center hallway, a full bathroom with a soaking tub, and 3 bedrooms (all with walk-in closets and ceiling fans). Bask in the natural sunlight upstairs which features all 4 sun exposures! The fully finished basement adds versatility with a spacious recreation room as well as a den space for an at-home office, a movie/gaming room, or a 4th bedroom option. Ideally located just steps from Starbucks, Mraz Park, Tony's Fresh Market, Walgreens, Marshalls, I-55, and I-290. 1.2 miles from Berwyn METRA Station. 150-amp electrical service. American Standard A/C condenser (2015). American Standard Gas Furnace (2014). Whirlpool 5-burner Gas Range (2014). Whirlpool Exterior Venting Range Hood (2014). Whirlpool Dishwasher (2015). Frigidaire Side-by-Side Refrigerator (2014) with water dispenser & cubed/crushed ice. Samsung Front Loading Washer + Gas Dryer (2013). Rheem 40-Gallon Water Heater (2014). 150-amp electrical service. Piper Elementary School (K-5), Heritage Middle School (6-8), & J Sterling Morton West High School (9-12). This property qualifies for the $5,000 Chase Homebuyer Grant.
| DAYS ON MARKET | 3 | LAST UPDATED | 10/29/2025 |
|---|---|---|---|
| YEAR BUILT | 1937 | COMMUNITY | Berwyn |
| GARAGE SPACES | 1.0 | COUNTY | Cook |
| STATUS | Active | PROPERTY TYPE(S) | Single Family |
| School District | J Sterling Morton West High Scho |
|---|---|
| Elementary School | Piper School |
| Jr. High School | Heritage Middle School |
| High School | J Sterling Morton West High Scho |
| ADDITIONAL DETAILS | |
| AIR | Ceiling Fan(s), Central Air |
|---|---|
| AIR CONDITIONING | Yes |
| APPLIANCES | Dishwasher, Dryer, Gas Oven, Microwave, Range, Range Hood, Refrigerator, Stainless Steel Appliance(s), Washer |
| AREA | Berwyn |
| BASEMENT | Crawl Space, Daylight, Finished, Full, Storage Space, Yes |
| CONSTRUCTION | Aluminum Siding, Brick, Brick Veneer, Stone |
| EXTERIOR | Lighting |
| GARAGE | Yes |
| HEAT | Forced Air, Natural Gas |
| INTERIOR | Granite Counters, Walk-In Closet(s) |
| LOT | 3794 sq ft |
| LOT DESCRIPTION | Corner Lot |
| LOT DIMENSIONS | 3795 |
| PARKING | Garage Door Opener, On Site, Detached, Garage |
| SEWER | Public Sewer |
| STYLE | Tudor |
| TAXES | 8824.17 |
| WATER | Public |
MORTGAGE CALCULATOR
TOTAL MONTHLY PAYMENT
0
P
I
*Estimate only
| SATELLITE VIEW |
| / | |
We respect your online privacy and will never spam you. By submitting this form with your telephone number
you are consenting for Humderto
Garcia to contact you even if your name is on a Federal or State
"Do not call List".
Listed with @properties Christie's International Real Estate
The data relating to real estate for sale on this web site comes in part from the Broker ReciprocitySM Program of MRED. All real estate listings are marked with the Broker ReciprocitySM logo or the MRED Broker ReciprocitySM thumbnail logo (a little black house) and detailed information about them includes the name of the listing brokers.
The broker providing these data believes them to be correct, but advises interested parties to confirm them before relying on them in a purchase decision.
Copyright 2025 MRED. All rights reserved.

The broker providing these data believes them to be correct, but advises interested parties to confirm them before relying on them in a purchase decision.
Copyright 2025 MRED. All rights reserved.
This IDX solution is (c) Diverse Solutions 2025.