| 
 | 
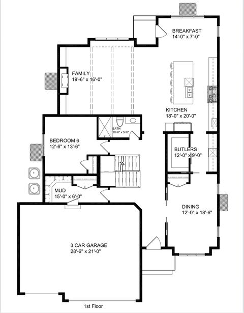
Drywall is installed & flooring installation has started! Walk-throughs are available & now is the time to secure your new home before the Spring Rush- March '26 estimated completion. Luxury New Construction Home CURRENTLY being built and delivered by Seasoned Downers Grove Custom Builder. Exceptional High Quality Built Home in the Heart of Downers Grove. PREPARE TO BE IMPRESSED! 4,067 SQ ABOVE GRADE (1st & 2nd Floors) with 6 Bedrooms, 4 Full Bathrooms, and 3 Car Attached Garage situated on an ideal 60 FT wide lot. Meticulously designed High End Home will feature a RARE layout; 5 Bedrooms on the Second Floor, First Floor Bedroom (#6) & First Floor Full Bath Room with Shower with in-law arrangement option, Grand Dining Room off the Kitchen with pocket doors, Gourmet Chef's Kitchen with Wolf/Sub Zero Appliances, custom cabinetry trimmed to the ceiling with oversized island and Vaulted breakfast eating area, 10FT ceilings on the first floor, Tall 8Ft Solid Core Doors on first floor, upgraded millwork with custom stained beams in the family room, upgraded windows, zoned HVAC with 2 furnaces & 2 ac units, stunning white oak hardwood floors, and deep pour basement roughed for a future full bathroom. Amazing LOCATION! Blocks to Downers Grove Fairview Train Station, 3 Blocks to Lester Elementary School, Hummer Park, Washington Park, within 1 mile to Downers Grove North High School, 1.4 mile to Herrick Middle School & Downtown Downers Grove! Builder financed luxury home with included upgrades and buyer allowances to make selections-timeline sensitive. First floor features solid white oak hardwood floors, custom staircase, First Floor Full Bathroom with custom tile Walk-In Shower, Bedroom with closet, Dining Room with pocket doors walkthrough to the overButler Pantry Dry Bar with beverage fridge, custom cabinetry and walk-in pantry with custom solid shelving. Stunning kitchen features LARGE SCALE island with seating, custom cabinetry with 3rd level cabinets stacked & trimmed to the ceiling, Wolf Double Oven & Sub Zero Refrigerator, quartz countertops & quartz extension backsplash, kitchen under cabinet lighting, and custom wood front panels on refrigerator and dishwasher. Everything about this layout is impressive and thoughtfully designed with custom details throughout. Clean lines with rich details highlighted throughout. Family room showcases dramatic ceiling with 2 beams, built-ins flanking the fireplace with custom shelving, and a truly grand living & entertaining area. Enjoy backyard living with walkout paver patio (400 SF) off the kitchen eating area. First floor includes entryway closet and mud room with custom built-ins off the 3-car garage. Second floor features a luxurious Primary Bedroom Suite with white oak hardwood flooring, ensuite heated tile bathroom with double sink vanity, soaking tub, walk-in shower, & TWO walk-in closets with hardwood floors and solid white shelving closet system. Second floor includes 4 additional bedrooms all with spacious closets and soaring vaulted ceilings. Bedroom #2 & #3 include Jack & Jill ensuite bathroom access with private bathtub shower & water closet room, and bedrooms #4 & #5 utilize the hallway bathroom adjacent with double sink vanity and private shower/water closet room with soaking tub. Second floor includes the laundry room with sink, cabinetry, & linen closet, 2nd furnace mechanical closet, and ample storage. Deep pour basement will include rough-in for a future full bathroom and four windows (unfinished basement). Additional features: low voltage package, roughed for EV outlet in garage, lighting allowance, Kohler Water Fixtures, exterior patio gas line, & more! Award Winning Lester Elementary School, Herrick Middle, & Downers Grove North High School. Photos are of a very similar recent build and DO REFLECT similar materials and high quality.
| DAYS ON MARKET | 1 | LAST UPDATED | 10/30/2025 | 
|---|---|---|---|
| YEAR BUILT | 2026 | COMMUNITY | Downers Grove | 
| GARAGE SPACES | 3.0 | COUNTY | DuPage | 
| STATUS | Active | PROPERTY TYPE(S) | Single Family | 
| School District | North High School | 
|---|---|
| Elementary School | Lester Elementary School | 
| Jr. High School | Herrick Middle School | 
| High School | North High School | 
| ADDITIONAL DETAILS | |
| AIR | Central Air, Zoned | 
|---|---|
| AIR CONDITIONING | Yes | 
| APPLIANCES | Bar Fridge, Dishwasher, Disposal, Double Oven, Gas Oven, Humidifier, Microwave, Range Hood, Wine Refrigerator | 
| AREA | Downers Grove | 
| BASEMENT | Bath/Stubbed, Full, Sump Pump, Unfinished, Yes | 
| CONSTRUCTION | Fiber Cement | 
| FIREPLACE | Yes | 
| GARAGE | Attached Garage, Yes | 
| HEAT | Forced Air, Natural Gas, Radiant Floor, Zoned | 
| INTERIOR | Beamed Ceilings, Built-in Features, Dry Bar, High Ceilings, In-Law Floorplan, Open Floorplan, Pantry, Vaulted Ceiling(s), Walk-In Closet(s) | 
| LOT | 7928 sq ft | 
| LOT DIMENSIONS | 60X132 | 
| PARKING | Concrete, Garage Door Opener, Garage, On Site, Attached | 
| SEWER | Public Sewer | 
| TAXES | 5655 | 
| WATER | Public | 
            MORTGAGE CALCULATOR
        
        TOTAL MONTHLY PAYMENT
0
                    P
                        I 
                    
            *Estimate only
        
    | SATELLITE VIEW | 
| / | |
	We respect your online privacy and will never spam you. By submitting this form with your telephone number
	you are consenting for Humderto
	Garcia to contact you even if your name is on a Federal or State
	"Do not call List".
	
    Listed with Keller Williams Experience
	The data relating to real estate for sale on this web site comes in part from the Broker ReciprocitySM Program of MRED. All real estate listings are marked with the Broker ReciprocitySM logo or the MRED Broker ReciprocitySM thumbnail logo (a little black house) and detailed information about them includes the name of the listing brokers.
The broker providing these data believes them to be correct, but advises interested parties to confirm them before relying on them in a purchase decision.
Copyright 2025 MRED. All rights reserved.

	
	
	
    
The broker providing these data believes them to be correct, but advises interested parties to confirm them before relying on them in a purchase decision.
Copyright 2025 MRED. All rights reserved.

This IDX solution is (c) Diverse Solutions 2025.
 
				 Twitter
									        Twitter Facebook
									        Facebook Email
									        Email 
									 
									 
									 
									 
									 
									 
									 
									 
									 
									 
									 
									 
									 
									 
									 
									 
									 
									 
									 
									 
									 
									 
									 
									 
									