|
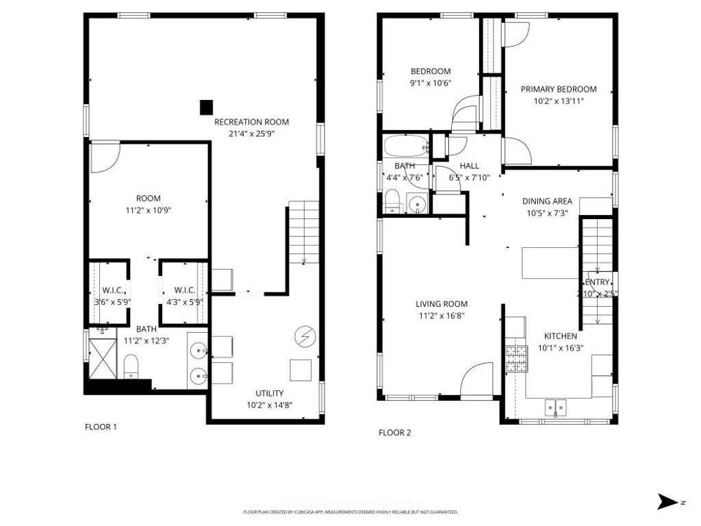
Welcome home to this charming brick ranch in the heart of Dunning! Thoughtfully updated in all the right places, this home offers comfort, convenience, and room to make it your own. The main level features two bright bedrooms, a full bath, and a spacious living and dining area with hardwood floors. The kitchen has been refreshed with brand-new white shaker cabinets and plenty of counter space. Downstairs, the finished basement (2024) adds a private primary suite with a modern full bath, double vanity, and beautiful glass shower - plus plenty of space for a family room or home office. You'll appreciate peace of mind with new siding, gutters, and a tear-off roof (2024), along with updated plumbing featuring above ground lines and a sump pump system. Outside, enjoy a fenced backyard with a brick paver patio - perfect for grilling or relaxing. Many updates are already complete, and with just a few finishing touches and your personal style, this home will truly shine. A great opportunity in a welcoming neighborhood close to Harlem & Irving Plaza, parks, shops, and dining!
| DAYS ON MARKET | 2 | LAST UPDATED | 10/31/2025 |
|---|---|---|---|
| YEAR BUILT | 1953 | COMMUNITY | CHI - Dunning |
| GARAGE SPACES | 2.0 | COUNTY | Cook |
| STATUS | Active | PROPERTY TYPE(S) | Single Family |
| Elementary School | Canty Elementary School |
|---|
| ADDITIONAL DETAILS | |
| AIR | Central Air |
|---|---|
| AIR CONDITIONING | Yes |
| APPLIANCES | Microwave, Range, Refrigerator |
| AREA | CHI - Dunning |
| BASEMENT | Finished, Full, Yes |
| CONSTRUCTION | Brick |
| GARAGE | Yes |
| HEAT | Forced Air, Natural Gas |
| INTERIOR | Open Floorplan, Walk-In Closet(s) |
| LOT | 0 |
| LOT DIMENSIONS | 30 x 124 |
| PARKING | Garage Door Opener, On Site, Detached, Garage |
| SEWER | Public Sewer |
| STYLE | Ranch |
| TAXES | 4078 |
| WATER | Public |
MORTGAGE CALCULATOR
TOTAL MONTHLY PAYMENT
0
P
I
*Estimate only
| SATELLITE VIEW |
| / | |
We respect your online privacy and will never spam you. By submitting this form with your telephone number
you are consenting for Humderto
Garcia to contact you even if your name is on a Federal or State
"Do not call List".
Listed with Domain Realty
The data relating to real estate for sale on this web site comes in part from the Broker ReciprocitySM Program of MRED. All real estate listings are marked with the Broker ReciprocitySM logo or the MRED Broker ReciprocitySM thumbnail logo (a little black house) and detailed information about them includes the name of the listing brokers.
The broker providing these data believes them to be correct, but advises interested parties to confirm them before relying on them in a purchase decision.
Copyright 2025 MRED. All rights reserved.

The broker providing these data believes them to be correct, but advises interested parties to confirm them before relying on them in a purchase decision.
Copyright 2025 MRED. All rights reserved.
This IDX solution is (c) Diverse Solutions 2025.