|
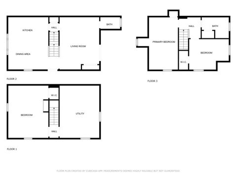
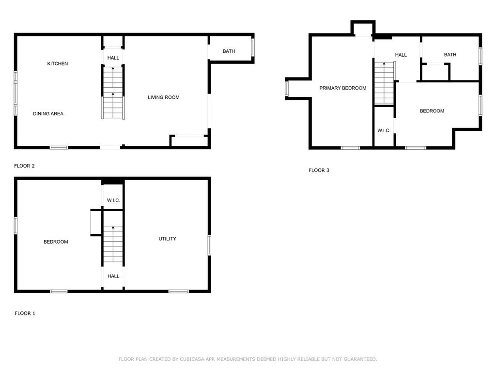
This 1/2 duplex is "READY TO MOVE INTO" and there's nothing you have to do but bring your suitcase! This 2 bedroom, 1.5 bath 1/2 duplex is located in the sought after Stevenson High School Dist, near the train and convenient to all shopping. All upgrades to the property were completed in 2022. Exterior wise... The property boasts a new tear off roof & gutters, front & rear decks, low-e windows, sidewalks and many other upgrades. Interior has all new plumbing, electric, HVAC, appliances, new kitchen with island & Quartz counters, new bath fixtures & tile throughout and the list goes on and on! The finished basement comes complete with a possible 3rd bedroom/office/family room space and a laundry/storage area. This home comes with a detached garage with one space allocated to this property. Neutral decor throughout. You will be proud to call it your own! 16637 W Brockman is also available for purchase. (The other 1/2 duplex) Why not purchase them both?! Investors welcome. 1/2 duplex) Why not purchase them both?! Investors welcome. A 2 CAR ASPHALT PAD FOR ADDITIONAL PARKING CAN BE ADDED FOR APPROX 2500 PER UNIT ON THE RIGHT SIDE OF THE DUPLEX DETACHED GARAGE FOR ADDITIONAL PARKING. OWNER IS WILLING TO HAVE IT COMPLETED IF BUILT INTO OFFER PRICE FROM EACH SIDE PURCHASE.
| DAYS ON MARKET | 2 | LAST UPDATED | 10/31/2025 |
|---|---|---|---|
| YEAR BUILT | 1940 | COMMUNITY | Lincolnshire |
| GARAGE SPACES | 1.0 | COUNTY | Lake |
| STATUS | Active | PROPERTY TYPE(S) | Condo/Townhouse/Co-Op |
| School District | Adlai E Stevenson High School |
|---|---|
| Elementary School | Laura B Sprague School |
| Jr. High School | Daniel Wright Junior High School |
| High School | Adlai E Stevenson High School |
| ADDITIONAL DETAILS | |
| AIR | Ceiling Fan(s), Central Air |
|---|---|
| AIR CONDITIONING | Yes |
| AMENITIES | Insurance, Water |
| APPLIANCES | Dishwasher, Dryer, Microwave, Range, Refrigerator, Stainless Steel Appliance(s), Washer, Water Softener |
| AREA | Lincolnshire |
| BASEMENT | Full, Partially Finished, Sump Pump, Yes |
| CONSTRUCTION | Vinyl Siding |
| GARAGE | Yes |
| HEAT | Forced Air, Natural Gas |
| HOA DUES | 150 |
| LOT | 0 |
| LOT DIMENSIONS | PER SURVEY |
| PARKING | Asphalt, Garage Door Opener, On Site, Detached, Garage |
| SEWER | Septic Tank |
| STORIES | 2 |
| TAXES | 7180 |
| WATER | Shared Well |
MORTGAGE CALCULATOR
TOTAL MONTHLY PAYMENT
0
P
I
*Estimate only
| SATELLITE VIEW |
| / | |
We respect your online privacy and will never spam you. By submitting this form with your telephone number
you are consenting for Humderto
Garcia to contact you even if your name is on a Federal or State
"Do not call List".
Listed with Coldwell Banker Realty
The data relating to real estate for sale on this web site comes in part from the Broker ReciprocitySM Program of MRED. All real estate listings are marked with the Broker ReciprocitySM logo or the MRED Broker ReciprocitySM thumbnail logo (a little black house) and detailed information about them includes the name of the listing brokers.
The broker providing these data believes them to be correct, but advises interested parties to confirm them before relying on them in a purchase decision.
Copyright 2025 MRED. All rights reserved.

The broker providing these data believes them to be correct, but advises interested parties to confirm them before relying on them in a purchase decision.
Copyright 2025 MRED. All rights reserved.
This IDX solution is (c) Diverse Solutions 2025.