|
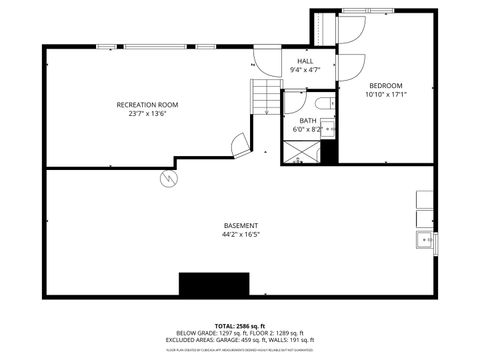
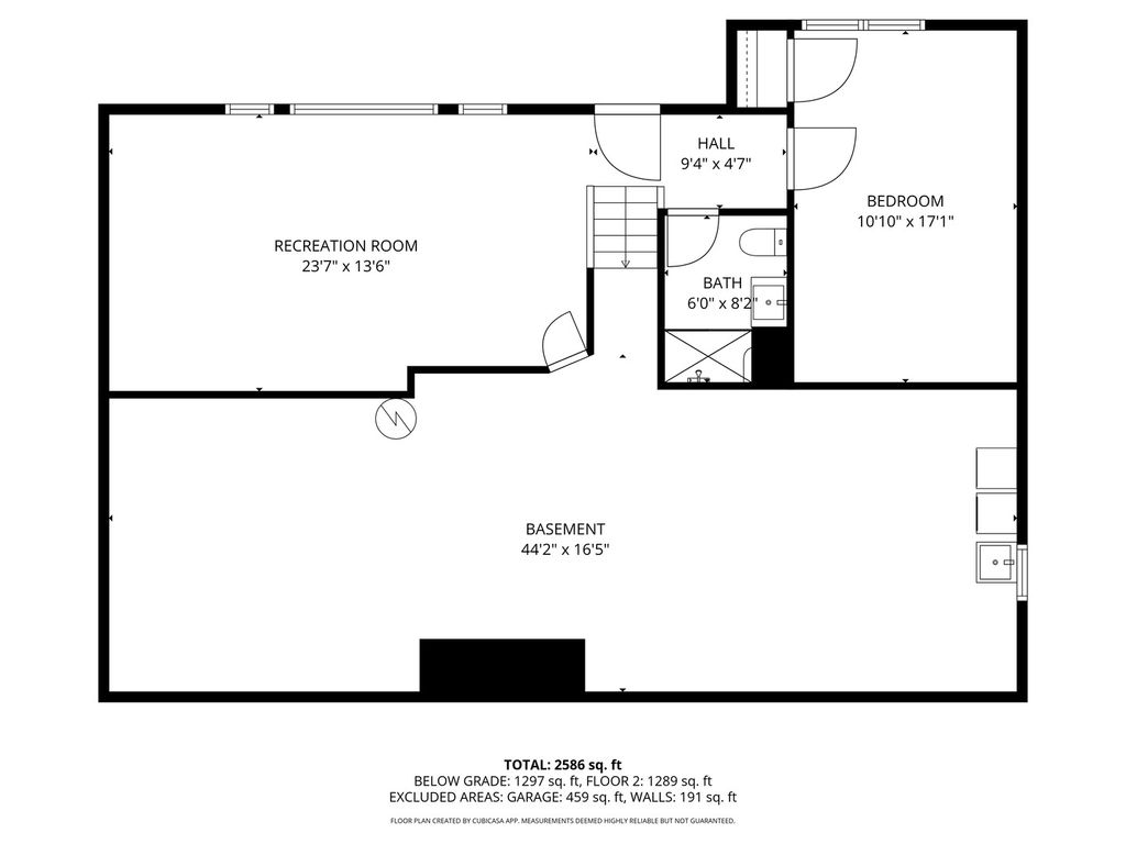
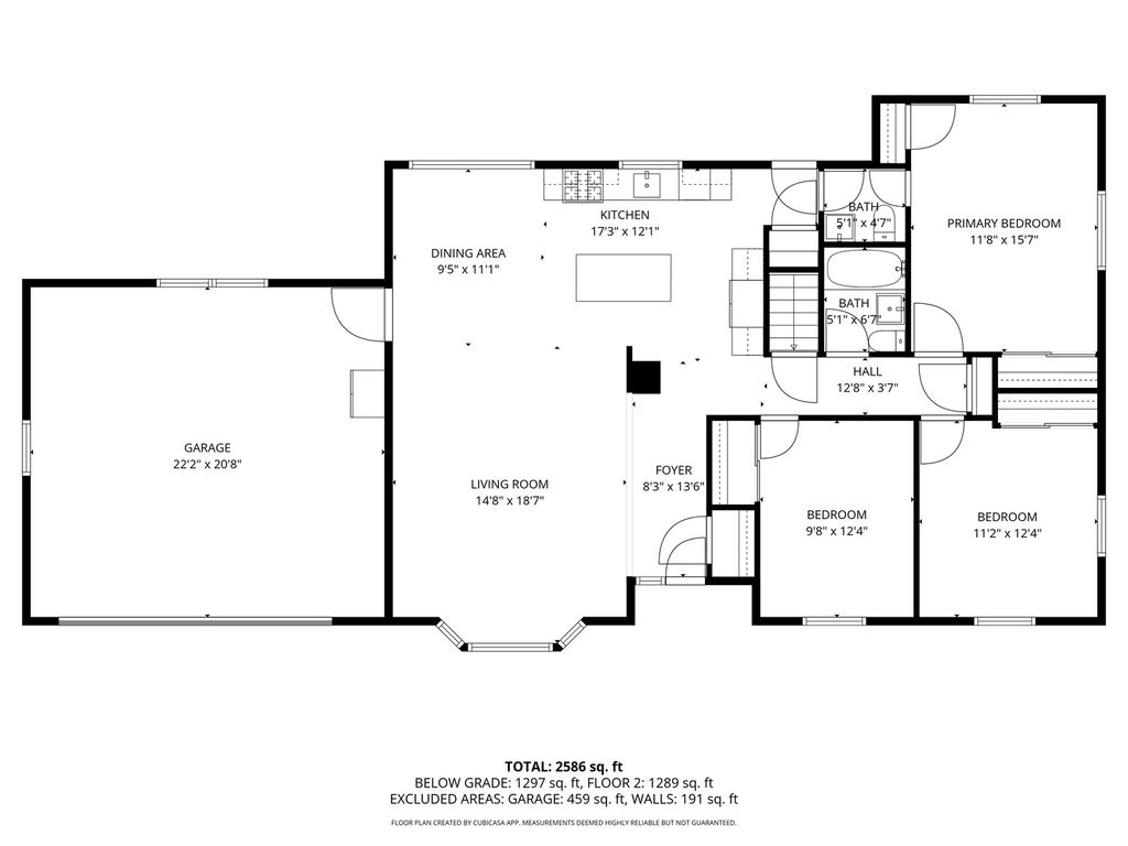
2516 Highcrest Road: a mid-century ranch nestled in a neighborhood that embodies architectural elegance. From the moment you enter, you will be greeted by an open and bright floor plan with a slate tile entryway, original refinished hardwood floors, floor to ceiling bay window, and recessed lighting. The elevated kitchen was designed with function and storage. Custom solid wood soft-close cabinets, quartz countertops, and a deep under-mount sink. You'll find plenty of storage with the roomy kitchen island drawers and a pantry. Open floor plan is perfect for entertaining or being with family while cooking. The primary bedroom has double closets and an attached powder room. Brand new toilets & vanities in BOTH main level bathrooms. Downstairs, a walk-out fully finished basement. Massive rec room with picture window, modern full bath with glass shower, (renovated and completed in 2022), and an enormous 4th bedroom (that you just may decide to make your owners-suite)! Outside there is a deck from the upper level and an extended patio underneath, large private yard with mature trees, and a garden shed. Extremely convenient location by HWY 251 entrance, Spring Creek Rd, & world-renowned Anderson Japanese gardens. Updates: kitchen 2021, electrical 2021, recessed lighting 2021, refinished floors 2021, basement bathroom 2022, main lvl bathroom fixtures 2025, utility room flooring 2025, ceiling fans 2025. Inspections welcome but house is being sold "AS-IS"
| DAYS ON MARKET | 1 | LAST UPDATED | 10/31/2025 |
|---|---|---|---|
| YEAR BUILT | 1964 | COMMUNITY | Rockford |
| GARAGE SPACES | 2.0 | COUNTY | Winnebago |
| STATUS | Active | PROPERTY TYPE(S) | Single Family |
| ADDITIONAL DETAILS | |
| AIR | Central Air |
|---|---|
| AIR CONDITIONING | Yes |
| APPLIANCES | Dishwasher, Dryer, Microwave, Range, Refrigerator, Washer |
| AREA | Rockford |
| BASEMENT | Exterior Entry, Finished, Full, Storage Space, Walk-Out Access, Yes |
| CONSTRUCTION | Brick, Wood Siding |
| GARAGE | Attached Garage, Yes |
| HEAT | Electric, Natural Gas |
| INTERIOR | Open Floorplan |
| LOT | 0.3 acre(s) |
| LOT DIMENSIONS | 89 X 141 X 98 X 149 |
| PARKING | Concrete, Garage Door Opener, On Site, Attached, Garage |
| SEWER | Public Sewer |
| STYLE | Ranch |
| TAXES | 4967 |
| WATER | Public |
MORTGAGE CALCULATOR
TOTAL MONTHLY PAYMENT
0
P
I
*Estimate only
| SATELLITE VIEW |
| / | |
We respect your online privacy and will never spam you. By submitting this form with your telephone number
you are consenting for Humderto
Garcia to contact you even if your name is on a Federal or State
"Do not call List".
Listed with RE/MAX Property Source
The data relating to real estate for sale on this web site comes in part from the Broker ReciprocitySM Program of MRED. All real estate listings are marked with the Broker ReciprocitySM logo or the MRED Broker ReciprocitySM thumbnail logo (a little black house) and detailed information about them includes the name of the listing brokers.
The broker providing these data believes them to be correct, but advises interested parties to confirm them before relying on them in a purchase decision.
Copyright 2025 MRED. All rights reserved.

The broker providing these data believes them to be correct, but advises interested parties to confirm them before relying on them in a purchase decision.
Copyright 2025 MRED. All rights reserved.
This IDX solution is (c) Diverse Solutions 2025.