|
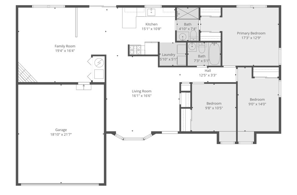
Inviting Ranch Home on a Prime corner Lot. Discover this beautifully maintained 3-bedroom, 2-bath ranch situated on a spacious corner lot in one of Carol Stream's most sought-after neighborhoods. One-level living at its finest. Enjoy gleaming hardwood floors and a light- filled family room with fireplace. Open concept kitchen, dining and family room with sliding doors to the deck. The home's layout offers comfortable living with generously sized bedrooms and two full baths. Primary bedroom features two closets and attached bath. Double closets in the other two bedrooms. The oversized, fully fenced backyard features an amazing deck and hotub, upgraded landscaping with lighting, a garden shed, raised garden beds and is perfect for outdoor living and entertaining. A tranquil water feature welcomes you at the front entrance. Attached, heated two car garage with a pull down attic provides ample extra storage. Concrete driveway. Located just minutes from top-rated schools, the Carol Stream public library, Armstrong Park and municipal buildings. This home blends comfort, style, and location. New tear-off roof, 2023, full house gutters in 2025, and new bay window 2025. New toilets, 2025. Hot water heater, 2021. Newer GE French Door refrigerator and LG stainless dishwasher. HVAC, 2018.
| DAYS ON MARKET | 51 | LAST UPDATED | 12/1/2025 |
|---|---|---|---|
| TRACT | Holiday Hills | YEAR BUILT | 1970 |
| COMMUNITY | Carol Stream | GARAGE SPACES | 2.0 |
| COUNTY | DuPage | STATUS | Conditional |
| PROPERTY TYPE(S) | Single Family |
| School District | Glenbard North High School |
|---|---|
| Elementary School | Carol Stream Elementary School |
| Jr. High School | Jay Stream Middle School |
| High School | Glenbard North High School |
| PRICE HISTORY | |
| Prior to Nov 20, '25 | $420,000 |
|---|---|
| Nov 20, '25 - Today | $405,000 |
| ADDITIONAL DETAILS | |
| AIR | Ceiling Fan(s), Central Air |
|---|---|
| AIR CONDITIONING | Yes |
| AREA | Carol Stream |
| BASEMENT | None |
| CONSTRUCTION | Brick, Vinyl Siding |
| EXTERIOR | Fire Pit |
| FIREPLACE | Yes |
| GARAGE | Attached Garage, Yes |
| HEAT | Electric, Natural Gas |
| INTERIOR | Built-in Features |
| LOT | 0.2771 acre(s) |
| LOT DESCRIPTION | Corner Lot |
| LOT DIMENSIONS | 0.2771 |
| PARKING | Concrete, Heated Garage, Attached, Garage |
| SEWER | Public Sewer |
| STYLE | Ranch |
| SUBDIVISION | Holiday Hills |
| TAXES | 8087 |
MORTGAGE CALCULATOR
TOTAL MONTHLY PAYMENT
0
P
I
*Estimate only
| SATELLITE VIEW |
| / | |
We respect your online privacy and will never spam you. By submitting this form with your telephone number
you are consenting for Humderto
Garcia to contact you even if your name is on a Federal or State
"Do not call List".
Listed with Coldwell Banker Realty
The data relating to real estate for sale on this web site comes in part from the Broker ReciprocitySM Program of MRED. All real estate listings are marked with the Broker ReciprocitySM logo or the MRED Broker ReciprocitySM thumbnail logo (a little black house) and detailed information about them includes the name of the listing brokers.
The broker providing these data believes them to be correct, but advises interested parties to confirm them before relying on them in a purchase decision.
Copyright 2025 MRED. All rights reserved.

The broker providing these data believes them to be correct, but advises interested parties to confirm them before relying on them in a purchase decision.
Copyright 2025 MRED. All rights reserved.
This IDX solution is (c) Diverse Solutions 2025.