|
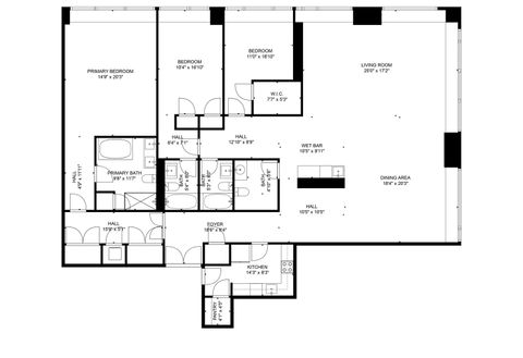
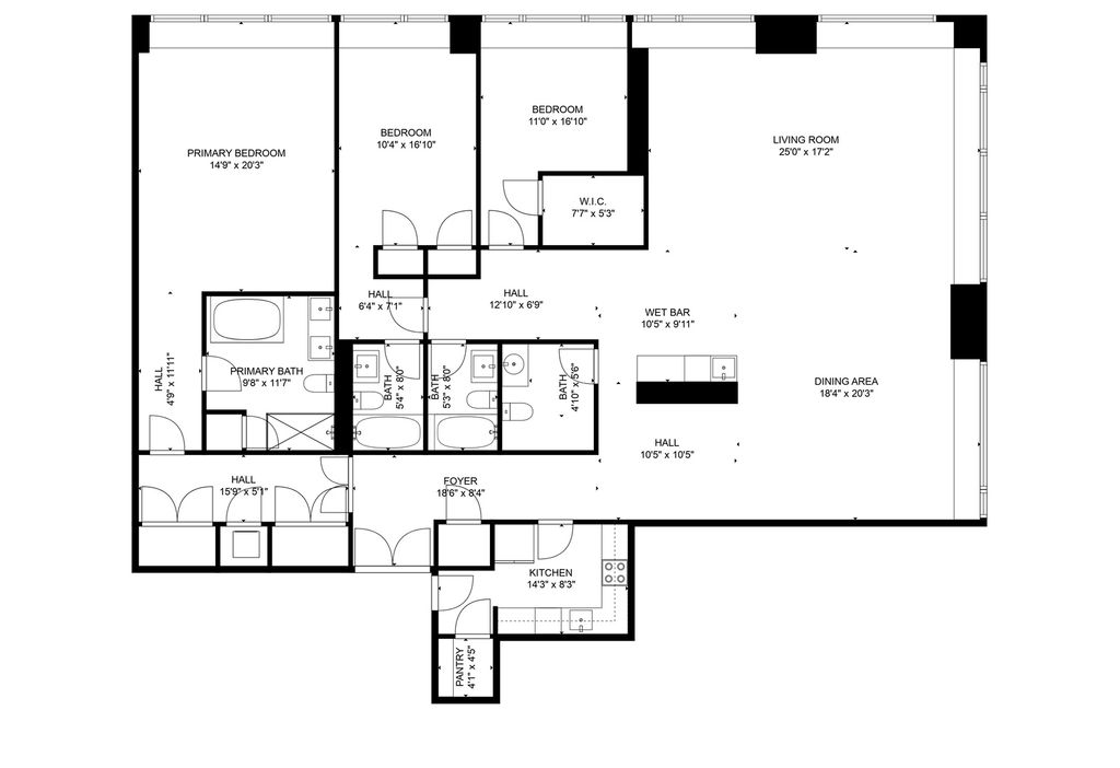
This stunning 3 bed/3.1 bath unit is not like anything you have seen before! Experience luxury living in this exquisitely remodeled northwest corner unit of the iconic John Hancock Building, offering breathtaking Lake Michigan views and stunning sunsets. The property has been completely reimagined by the current owners. The formal foyer features a custom Versace mosaic set in porcelain flooring, which flows throughout the home. Newly remodeled kitchen features custom cabinetry, quarts countertops, plenty of storage space, and a breakfast island seating. The spacious living and dining areas, two art galleries, a wet bar with a wine cooler, and a wide-open floor plan with a custom quartz fireplace mantle make this home perfect for entertaining. The primary suite boasts a spa-like bath with a soaking tub, oversized shower, and sauna, while a dedicated laundry room includes a washer, dryer, sink, and dry-cleaning machine. The building offers full amenities, including an indoor pool, a fitness center, 24-hour door staff, dry cleaners, a package room, on-site management, a bike room, two additional storage cages, and a grocery store on the 44th floor. Cat-friendly. Garage parking is available for an additional monthly fee. The location couldn't be more perfect: you are steps away from the lake, the beach, and top-notch dining and shopping along Michigan Ave and Oak Street. Enjoy happy hour at Gibson's Bar & Steakhouse, Maple & Ash for dinner, and more.
| DAYS ON MARKET | 53 | LAST UPDATED | 11/3/2025 |
|---|---|---|---|
| YEAR BUILT | 1969 | COMMUNITY | CHI - Near North Side |
| GARAGE SPACES | 1.0 | COUNTY | Cook |
| STATUS | Active | PROPERTY TYPE(S) | Condo/Townhouse/Co-Op |
| School District | Lincoln Park High School |
|---|---|
| Elementary School | Ogden International |
| Jr. High School | Ogden International |
| High School | Lincoln Park High School |
| ADDITIONAL DETAILS | |
| AIR | Wall Unit(s) |
|---|---|
| AIR CONDITIONING | Yes |
| AMENITIES | Insurance, Snow Removal, Water |
| APPLIANCES | Dishwasher, Microwave, Range, Refrigerator, Stainless Steel Appliance(s) |
| AREA | CHI - Near North Side |
| BASEMENT | None |
| CONSTRUCTION | Steel Siding |
| FIREPLACE | Yes |
| GARAGE | Attached Garage, Yes |
| HEAT | Electric |
| HOA DUES | 2195 |
| INTERIOR | Elevator, Open Floorplan, Pantry, Sauna, Storage, Walk-In Closet(s), Wet Bar |
| LOT | 0 |
| LOT DIMENSIONS | COMMON |
| PARKING | Leased, Attached, Garage |
| SEWER | Public Sewer |
| STORIES | 100 |
| TAXES | 16338.85 |
| VIEW | Yes |
| VIEW DESCRIPTION | Water |
| WATER | Public |
MORTGAGE CALCULATOR
TOTAL MONTHLY PAYMENT
0
P
I
*Estimate only
| SATELLITE VIEW |
| / | |
We respect your online privacy and will never spam you. By submitting this form with your telephone number
you are consenting for Humderto
Garcia to contact you even if your name is on a Federal or State
"Do not call List".
Listed with Compass
The data relating to real estate for sale on this web site comes in part from the Broker ReciprocitySM Program of MRED. All real estate listings are marked with the Broker ReciprocitySM logo or the MRED Broker ReciprocitySM thumbnail logo (a little black house) and detailed information about them includes the name of the listing brokers.
The broker providing these data believes them to be correct, but advises interested parties to confirm them before relying on them in a purchase decision.
Copyright 2025 MRED. All rights reserved.

The broker providing these data believes them to be correct, but advises interested parties to confirm them before relying on them in a purchase decision.
Copyright 2025 MRED. All rights reserved.
This IDX solution is (c) Diverse Solutions 2025.