|
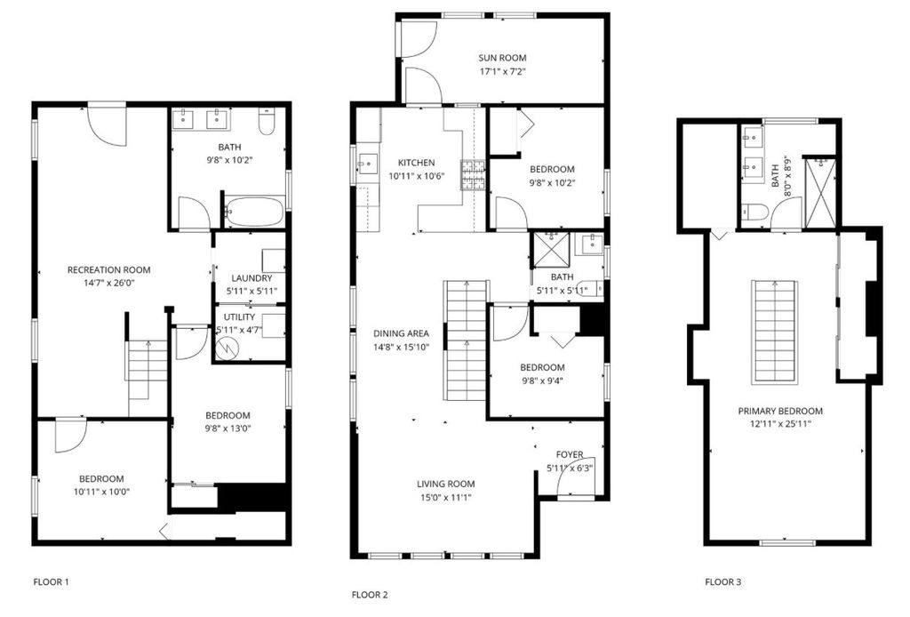
Step inside this fully renovated 5-bedroom, 3-bath home in Chicago's North Mayfair neighborhood and discover the perfect blend of classic bungalow charm and modern comfort. A bright foyer welcomes you into an open, inviting layout. The living and dining spaces flow seamlessly - perfect for family gatherings and dinner parties. The modern kitchen is both stylish and functional, featuring stainless steel appliances, quartz countertops, a pot filler, and solid wood cabinetry designed for everyday use. Two bedrooms, an enclosed sunroom, and a full bath on the main level provide flexibility for guests, home office, or playroom. Upstairs, the primary suite offers generous closets and a spa-like bathroom with dual vanities, a walk-in shower, and linen storage. The finished basement expands your living space with a cozy family room, two additional bedrooms, a full bath, and laundry room - perfect for extended family or movie nights. Every major system has been updated: new plumbing, electric, windows, HVAC, flooring, and drain tile system with sump pump for peace of mind. Outside, enjoy a private backyard oasis with a pear tree, grapevines, and space for gardening or alfresco dining. A fully enclosed privacy fence, two-car garage, and extra parking pad add convenience and charm. Located near parks, forest preserves, public transit, and major highways, this home delivers both tranquility and easy city access. Welcome home to North Mayfair - where community and comfort meet.
| DAYS ON MARKET | 29 | LAST UPDATED | 11/14/2025 |
|---|---|---|---|
| TRACT | North Mayfair | YEAR BUILT | 1928 |
| COMMUNITY | CHI - Albany Park | GARAGE SPACES | 2.0 |
| COUNTY | Cook | STATUS | Conditional |
| PROPERTY TYPE(S) | Single Family |
| School District | Taft High School |
|---|---|
| Elementary School | Palmer Elementary School |
| High School | Taft High School |
| ADDITIONAL DETAILS | |
| AIR | Central Air |
|---|---|
| AIR CONDITIONING | Yes |
| APPLIANCES | Dishwasher, Range, Refrigerator, Stainless Steel Appliance(s) |
| AREA | CHI - Albany Park |
| BASEMENT | Daylight, Finished, Full, Yes |
| CONSTRUCTION | Brick |
| GARAGE | Yes |
| HEAT | Forced Air |
| INTERIOR | Entrance Foyer |
| LOT | 0 |
| LOT DIMENSIONS | 33 X 125 |
| PARKING | Detached, Garage |
| SEWER | Public Sewer |
| STYLE | Bungalow |
| SUBDIVISION | North Mayfair |
| TAXES | 6195 |
MORTGAGE CALCULATOR
TOTAL MONTHLY PAYMENT
0
P
I
*Estimate only
| SATELLITE VIEW |
| / | |
We respect your online privacy and will never spam you. By submitting this form with your telephone number
you are consenting for Humderto
Garcia to contact you even if your name is on a Federal or State
"Do not call List".
Listed with Compass
The data relating to real estate for sale on this web site comes in part from the Broker ReciprocitySM Program of MRED. All real estate listings are marked with the Broker ReciprocitySM logo or the MRED Broker ReciprocitySM thumbnail logo (a little black house) and detailed information about them includes the name of the listing brokers.
The broker providing these data believes them to be correct, but advises interested parties to confirm them before relying on them in a purchase decision.
Copyright 2025 MRED. All rights reserved.

The broker providing these data believes them to be correct, but advises interested parties to confirm them before relying on them in a purchase decision.
Copyright 2025 MRED. All rights reserved.
This IDX solution is (c) Diverse Solutions 2025.