|
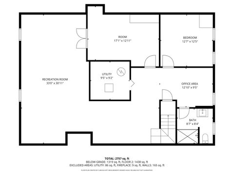
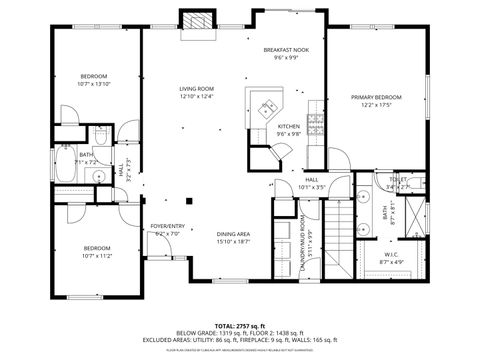
I am thrilled to share an exceptional new listing that has just become available in Hunters Trail, ideally located near Central Park: a rare ranch home with a full, finished basement. This property offers an abundance of recreational options and convenient amenities right at your doorstep. This home boasts a wonderful layout with volume ceilings and neutral decor throughout. The living area features a warm and inviting fireplace, perfect for cozy evenings. The kitchen graces beautiful hardwood floors and includes a charming breakfast room. The spacious master suite provides a comfortable retreat. The amazing basement, fully renovated in May 2023, offers a family/bar area pre-wired for 7.1 surround sound, creating an ideal home theater setup. It also includes a full bathroom and an additional bedroom, perfect for guests or an in-law arrangement, and even features a private sauna for ultimate relaxation. Recent updates enhance the home's appeal, including a newer roof (2021), siding (2021), furnace (2016), windows (2023), water heater (2016), appliances (2018), and sliding door. The entire home also received new carpet and paint in May 2023. Outside, a large deck overlooks a mostly fenced yard, ideal for relaxation or entertaining. This presents a fantastic opportunity to own a meticulously maintained home in a beautiful community and an excellent location. Given its unique features and prime location, I highly recommend scheduling a viewing soon, as properties like this do not remain on the market for long. Please let me know if you would like to arrange a showing or have any questions.
| DAYS ON MARKET | 1 | LAST UPDATED | 11/4/2025 |
|---|---|---|---|
| YEAR BUILT | 1993 | COMMUNITY | Bolingbrook |
| GARAGE SPACES | 2.0 | COUNTY | Will |
| STATUS | Active | PROPERTY TYPE(S) | Single Family |
| School District | Bolingbrook High School |
|---|---|
| Elementary School | Bernard J Ward Elementary School |
| Jr. High School | Hubert H Humphrey Middle School |
| High School | Bolingbrook High School |
| ADDITIONAL DETAILS | |
| AIR | Ceiling Fan(s), Central Air |
|---|---|
| AIR CONDITIONING | Yes |
| APPLIANCES | Dishwasher, Disposal, Microwave, Range, Range Hood, Refrigerator |
| AREA | Bolingbrook |
| BASEMENT | Finished, Full, Sump Pump, Yes |
| CONSTRUCTION | Vinyl Siding |
| FIREPLACE | Yes |
| GARAGE | Attached Garage, Yes |
| HEAT | Natural Gas |
| INTERIOR | Sauna, Vaulted Ceiling(s), Walk-In Closet(s) |
| LOT | 0 |
| LOT DIMENSIONS | 9118 |
| PARKING | Garage Door Opener, Attached, Garage |
| SEWER | Public Sewer |
| TAXES | 10708 |
| WATER | Public |
MORTGAGE CALCULATOR
TOTAL MONTHLY PAYMENT
0
P
I
*Estimate only
| SATELLITE VIEW |
| / | |
We respect your online privacy and will never spam you. By submitting this form with your telephone number
you are consenting for Humderto
Garcia to contact you even if your name is on a Federal or State
"Do not call List".
Listed with Redfin Corporation
The data relating to real estate for sale on this web site comes in part from the Broker ReciprocitySM Program of MRED. All real estate listings are marked with the Broker ReciprocitySM logo or the MRED Broker ReciprocitySM thumbnail logo (a little black house) and detailed information about them includes the name of the listing brokers.
The broker providing these data believes them to be correct, but advises interested parties to confirm them before relying on them in a purchase decision.
Copyright 2025 MRED. All rights reserved.

The broker providing these data believes them to be correct, but advises interested parties to confirm them before relying on them in a purchase decision.
Copyright 2025 MRED. All rights reserved.
This IDX solution is (c) Diverse Solutions 2025.