|
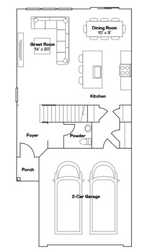
AVAILABLE NOW! SPECIAL FINANCING OFFERS AVAILABLE! Homesite# 5702. Introducing the Marianne, a newly designed two-story duplex that seamlessly blends comfort and elegance. This model offers three spacious bedrooms, two full baths, a half bath, complete with a two-car garage for added convenience. The first floor features the great room, the focal point of the home, effortlessly flowing into the dining area and the chef-inspired kitchen. The kitchen boasts a magnificent island with a breakfast bar, 42" cabinets, polished quartz countertops, and top-of-the-line stainless steel appliances. Luxury vinyl plank flooring spans the main floor. On the second floor, you'll find two generously sized secondary bedrooms, along with the exquisite owner's suite-a true sanctuary to unwind after a busy day. This serene retreat includes a generous walk-in closet and a spa-inspired bath for the ultimate relaxation experience. Complete with a convenient upstairs laundry room, the Marianne combines thoughtful design and modern amenities, offering both comfort and style in every corner. There is currently no active SSA at this community.*Photos are not this actual home* There is a beautiful view of a pond near the back of the home. At the heart of a warm, welcoming community, this thoughtfully designed neighborhood offers the perfect blend of modern living and historic charm. Surrounded by peaceful streets and open green spaces, residents can enjoy walkable pathways, cozy cul-de-sacs, and the comfort of a tight-knit atmosphere. Just minutes away, downtown Woodstock invites you to explore its vibrant mix of antique shops, local dining favorites, and year-round community events. Steeped in rich history and hometown pride, the area buzzes with activity - from seasonal farmers' markets and summer concerts in the square to art fairs and holiday parades. Nature lovers and active families will appreciate the abundance of nearby parks and recreation centers, offering everything from playgrounds to walking trails. Whether you're grabbing coffee in a charming local cafe or enjoying a weekend stroll through beautiful green spaces, Woodstock offers something for everyone - with a lifestyle that feels both timeless and modern.
| DAYS ON MARKET | 88 | LAST UPDATED | 12/22/2025 |
|---|---|---|---|
| TRACT | Riverwoods | YEAR BUILT | 2025 |
| COMMUNITY | Bull Valley / Greenwood / Woodstock | GARAGE SPACES | 2.0 |
| COUNTY | McHenry | STATUS | Conditional |
| PROPERTY TYPE(S) | Condo/Townhouse/Co-Op |
| School District | Woodstock High School |
|---|---|
| Elementary School | Prairiewood Elementary School |
| Jr. High School | Creekside Middle School |
| High School | Woodstock High School |
| PRICE HISTORY | |
| Prior to Dec 18, '25 | $317,340 |
|---|---|
| Dec 18, '25 - Today | $310,840 |
| ADDITIONAL DETAILS | |
| AIR | Central Air |
|---|---|
| AIR CONDITIONING | Yes |
| AMENITIES | Snow Removal |
| APPLIANCES | Dishwasher, Disposal, Microwave, Range, Stainless Steel Appliance(s) |
| AREA | Bull Valley / Greenwood / Woodstock |
| BASEMENT | None |
| CONSTRUCTION | Stone, Vinyl Siding |
| GARAGE | Attached Garage, Yes |
| HEAT | Forced Air, Natural Gas |
| HOA DUES | 168 |
| LOT | 0 |
| LOT DESCRIPTION | Corner Lot |
| LOT DIMENSIONS | 0 |
| PARKING | Asphalt, Garage Door Opener, Attached, Garage |
| SEWER | Public Sewer |
| STORIES | 2 |
| SUBDIVISION | Riverwoods |
| WATER | Public |
| WATERFRONT DESCRIPTION | Pond |
MORTGAGE CALCULATOR
TOTAL MONTHLY PAYMENT
0
P
I
*Estimate only
| SATELLITE VIEW |
| / | |
We respect your online privacy and will never spam you. By submitting this form with your telephone number
you are consenting for Humderto
Garcia to contact you even if your name is on a Federal or State
"Do not call List".
Listed with HomeSmart Connect LLC
The data relating to real estate for sale on this web site comes in part from the Broker ReciprocitySM Program of MRED. All real estate listings are marked with the Broker ReciprocitySM logo or the MRED Broker ReciprocitySM thumbnail logo (a little black house) and detailed information about them includes the name of the listing brokers.
The broker providing these data believes them to be correct, but advises interested parties to confirm them before relying on them in a purchase decision.
Copyright 2026 MRED. All rights reserved.

The broker providing these data believes them to be correct, but advises interested parties to confirm them before relying on them in a purchase decision.
Copyright 2026 MRED. All rights reserved.
This IDX solution is (c) Diverse Solutions 2026.