|
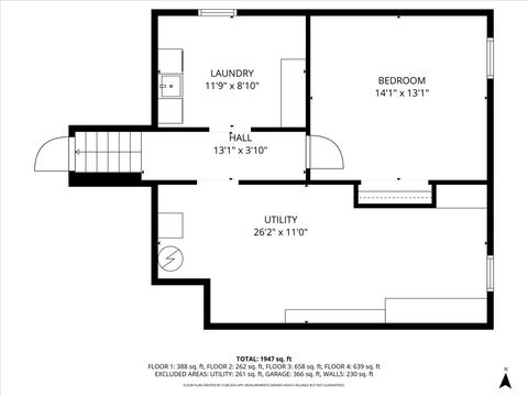
Prime Woodstock Split-Level with Rare Sub-Basement - Priced to Move at $350K This 4-bedroom, 2.5-bath split-level offers nearly 1,800 sq ft of thoughtfully designed living space in one of Woodstock's most desirable neighborhoods. Built in 1988 and meticulously maintained, this home blends comfort, function, and flexibility. Hardwood floors flow through the bright living room into an updated kitchen featuring stainless steel appliances, granite countertops, and a wraparound breakfast bar with room for stools. Sliders off the dining area open to a generous paver patio - ideal for grilling, entertaining, or unwinding after a long day. The primary suite offers a walk-in closet and private bathroom, with two additional bedrooms nearby sharing their own full bath. Lower Level: The walk-out family room adds versatile living space, while the rare sub-basement provides a 4th bedroom (ready to finish), outstanding storage, and an oversized laundry room - perfect for guests, a home office, or future rental income potential. Location: Steps from parks, family attractions, shopping, dining, and Metra train service. Walk to the historic Woodstock Square with its unique shops, restaurants, seasonal festivals, and the renowned Woodstock Opera House. Whether you're growing into more space, seeking rental income options, or looking for a move-in-ready home with room to expand, 244 Joseph St delivers. Competitively priced and ready for your showing.
| DAYS ON MARKET | 26 | LAST UPDATED | 11/5/2025 |
|---|---|---|---|
| TRACT | Greenwood Meadows | YEAR BUILT | 1988 |
| COMMUNITY | Bull Valley / Greenwood / Woodstock | GARAGE SPACES | 2.0 |
| COUNTY | McHenry | STATUS | Active |
| PROPERTY TYPE(S) | Single Family |
| School District | Woodstock North High School |
|---|---|
| Elementary School | Mary Endres Elementary School |
| Jr. High School | Northwood Middle School |
| High School | Woodstock North High School |
| ADDITIONAL DETAILS | |
| AIR | Ceiling Fan(s), Central Air |
|---|---|
| AIR CONDITIONING | Yes |
| APPLIANCES | Dishwasher, Dryer, Range, Refrigerator, Washer |
| AREA | Bull Valley / Greenwood / Woodstock |
| BASEMENT | Partially Finished, Storage Space, Walk-Out Access, Yes |
| CONSTRUCTION | Brick, Vinyl Siding |
| GARAGE | Attached Garage, Yes |
| HEAT | Forced Air, Natural Gas |
| LOT | 7231 sq ft |
| LOT DIMENSIONS | 70 X 103 |
| PARKING | Concrete, Garage Door Opener, Attached, Garage |
| SEWER | Public Sewer |
| SUBDIVISION | Greenwood Meadows |
| TAXES | 6089 |
| WATER | Public |
MORTGAGE CALCULATOR
TOTAL MONTHLY PAYMENT
0
P
I
*Estimate only
| SATELLITE VIEW |
| / | |
We respect your online privacy and will never spam you. By submitting this form with your telephone number
you are consenting for Humderto
Garcia to contact you even if your name is on a Federal or State
"Do not call List".
Listed with Keller Williams Success Realty
The data relating to real estate for sale on this web site comes in part from the Broker ReciprocitySM Program of MRED. All real estate listings are marked with the Broker ReciprocitySM logo or the MRED Broker ReciprocitySM thumbnail logo (a little black house) and detailed information about them includes the name of the listing brokers.
The broker providing these data believes them to be correct, but advises interested parties to confirm them before relying on them in a purchase decision.
Copyright 2025 MRED. All rights reserved.

The broker providing these data believes them to be correct, but advises interested parties to confirm them before relying on them in a purchase decision.
Copyright 2025 MRED. All rights reserved.
This IDX solution is (c) Diverse Solutions 2025.