|
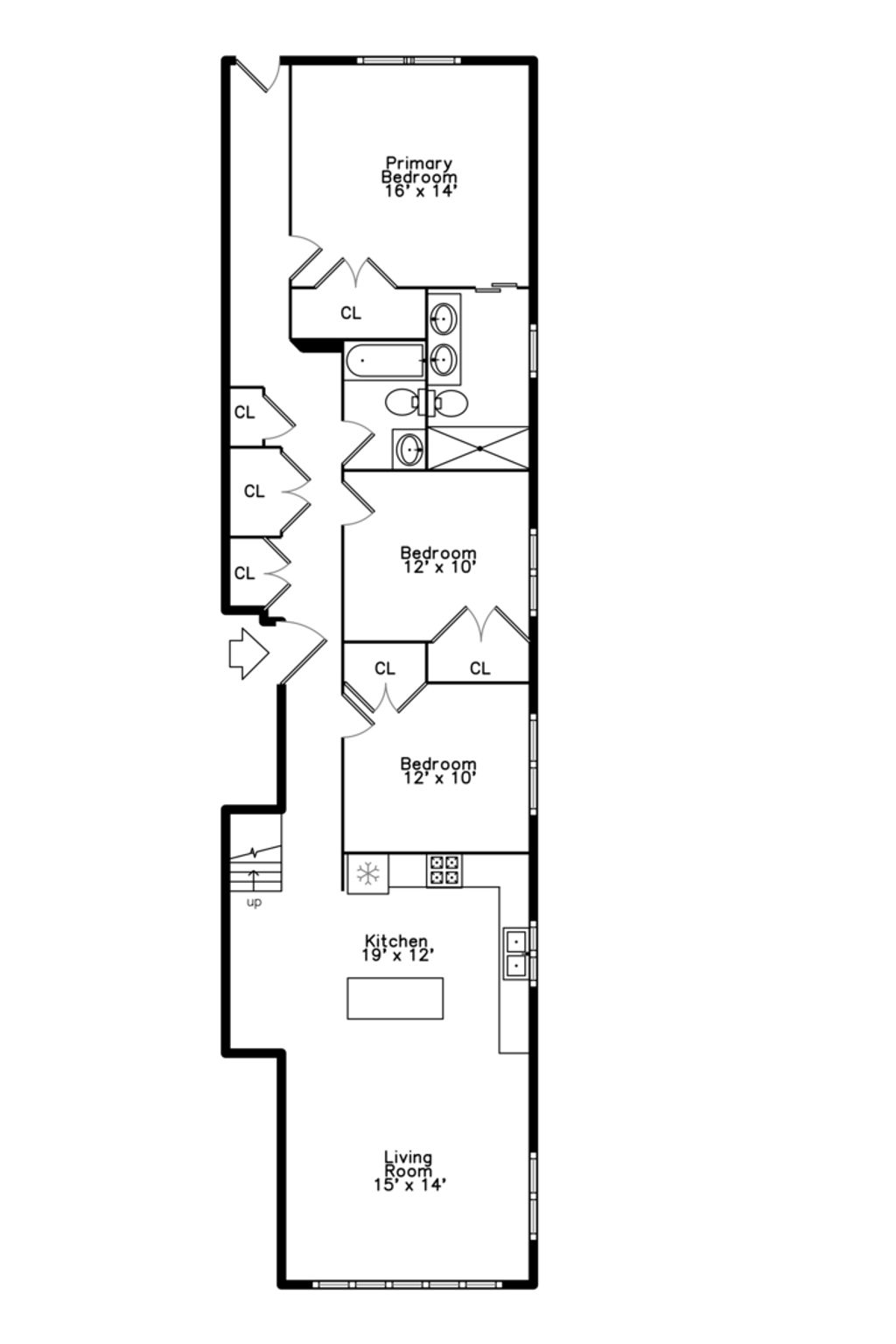
Stunning Top-Floor Penthouse in the Heart of Booming Pilsen! Welcome to your dream home in one of Chicago's most vibrant neighborhoods! This bright and elegant 3 bed, 2 bath penthouse spans 1,500 sqft and features an interior staircase to a private rooftop deck with breathtaking 360 views-including sweeping panoramas of the iconic Chicago skyline. Enjoy luxury city living with an open-concept layout showcasing a spacious living room and a chef-inspired kitchen with a large island and professional-grade stainless steel appliances. The primary suite boasts a generous walk-in closet and a spa-like bath complete with an oversized walk-in shower, dual vanity, and porcelain tile finishes. Additional highlights include:Expansive rear deck for grilling and entertaining;10-foot ceilings and 7' solid-core doors throughout;Rich hardwood floors;In-unit laundry;Garage parking included. Unbeatable location-just minutes to downtown, public transit, acclaimed restaurants, and all that Pilsen has to offer. This is city living at its finest! Don't miss your opportunity to own a skyline view!
| DAYS ON MARKET | 1 | LAST UPDATED | 11/5/2025 |
|---|---|---|---|
| YEAR BUILT | 2017 | COMMUNITY | CHI - Lower West Side |
| GARAGE SPACES | 1.0 | COUNTY | Cook |
| STATUS | Active | PROPERTY TYPE(S) | Condo/Townhouse/Co-Op |
| School District | Juarez High School |
|---|---|
| Elementary School | Pilsen Elementary School Communi |
| High School | Juarez High School |
| ADDITIONAL DETAILS | |
| AIR | Central Air |
|---|---|
| AIR CONDITIONING | Yes |
| AMENITIES | Insurance, Snow Removal, Water |
| AREA | CHI - Lower West Side |
| BASEMENT | None |
| CONSTRUCTION | Block, Brick |
| GARAGE | Yes |
| HEAT | Natural Gas |
| HOA DUES | 347 |
| LOT | 0 |
| LOT DIMENSIONS | CONDO |
| PARKING | Garage Door Opener, Detached, Garage |
| SEWER | Public Sewer |
| STORIES | 3 |
| TAXES | 5281 |
| WATER | Public |
MORTGAGE CALCULATOR
TOTAL MONTHLY PAYMENT
0
P
I
*Estimate only
| SATELLITE VIEW |
| / | |
We respect your online privacy and will never spam you. By submitting this form with your telephone number
you are consenting for Humderto
Garcia to contact you even if your name is on a Federal or State
"Do not call List".
Listed with Baird & Warner
The data relating to real estate for sale on this web site comes in part from the Broker ReciprocitySM Program of MRED. All real estate listings are marked with the Broker ReciprocitySM logo or the MRED Broker ReciprocitySM thumbnail logo (a little black house) and detailed information about them includes the name of the listing brokers.
The broker providing these data believes them to be correct, but advises interested parties to confirm them before relying on them in a purchase decision.
Copyright 2025 MRED. All rights reserved.

The broker providing these data believes them to be correct, but advises interested parties to confirm them before relying on them in a purchase decision.
Copyright 2025 MRED. All rights reserved.
This IDX solution is (c) Diverse Solutions 2025.