|
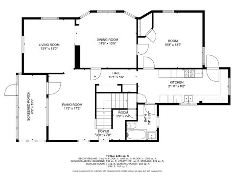
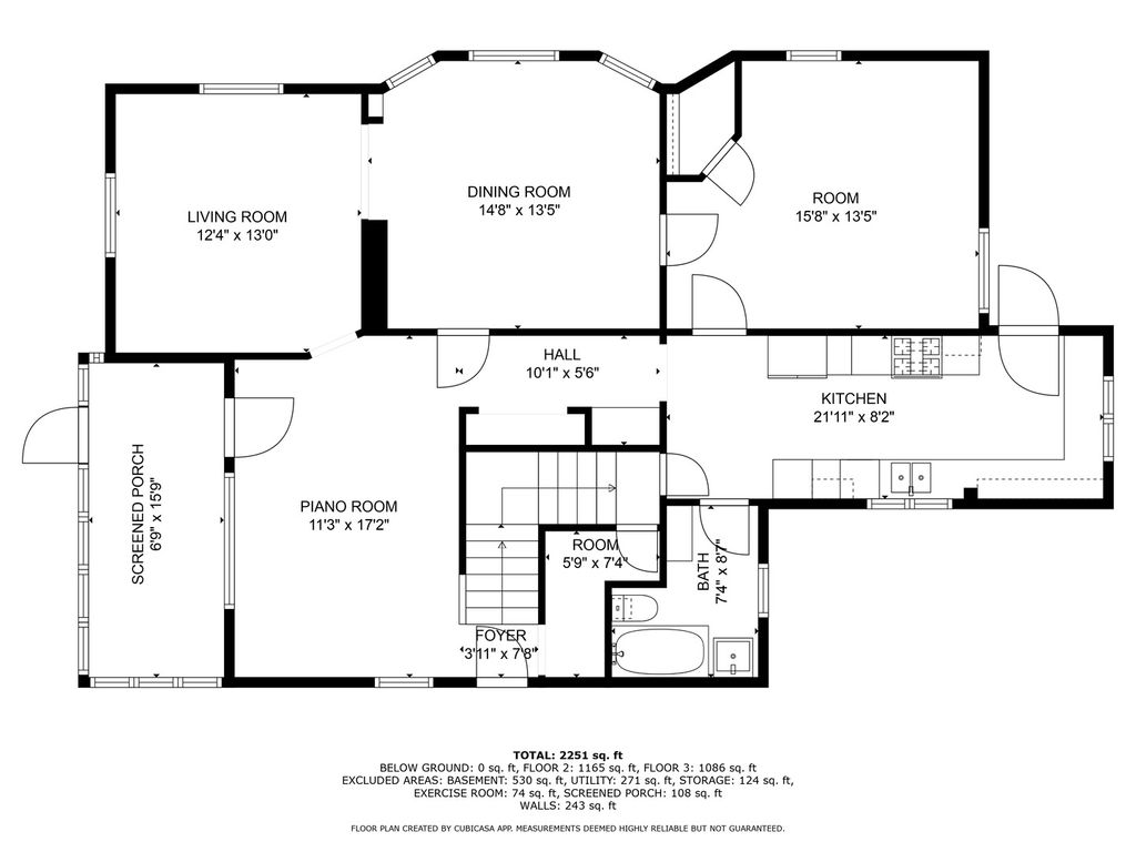
Conveniently located within walking distance of a Charming two-story home in Naperville's Historic District, situated on a corner lot in a quiet neighborhood. Inside, you'll find a practical first-floor layout with an expanded galley kitchen that features white cabinetry, butcher block countertops, a farmhouse sink, and stainless steel appliances, including a Frigidaire double wall oven with convection installed in 2022. The main level offers multiple living areas, a kitchen, and a full bath. The backyard provides ample space for outdoor activities. Recent updates ensure peace of mind and comfort: a new radon mitigation system by DuPage Radon (2022), a whole-house humidifier with two Aprilaire smart thermostats (2022), a Samsung pedestal washer and dryer (2024), two new water heaters (2025), and a new aluminum fence (2025). The roof was replaced in 2024, and professional landscaping, including tree trimming, was completed in 2023 and refreshed again in spring 2025. Original features such as tall ceilings, doors, and trim enhance the home's character. Upstairs, you'll find generously sized bedrooms, three full baths, a laundry closet, and the option to finish an additional en-suite in the primary suite. Alley access allows for extra parking. Conveniently located within walking distance of downtown Naperville, the Metra train station, schools, parks, shopping, and dining, and served by award-winning District 203 schools.
| DAYS ON MARKET | 25 | LAST UPDATED | 11/7/2025 |
|---|---|---|---|
| YEAR BUILT | 1900 | COMMUNITY | Naperville |
| GARAGE SPACES | 1.0 | COUNTY | DuPage |
| STATUS | Active | PROPERTY TYPE(S) | Single Family |
| School District | Naperville North High School |
|---|---|
| Elementary School | Ellsworth Elementary School |
| Jr. High School | Washington Junior High School |
| High School | Naperville North High School |
| ADDITIONAL DETAILS | |
| AIR | Ceiling Fan(s), Central Air, Zoned |
|---|---|
| AIR CONDITIONING | Yes |
| APPLIANCES | Disposal, Dryer, Range, Refrigerator, Washer |
| AREA | Naperville |
| BASEMENT | Full, Unfinished, Yes |
| CONSTRUCTION | Cedar |
| GARAGE | Yes |
| HEAT | Forced Air, Natural Gas |
| LOT | 0 |
| LOT DESCRIPTION | Corner Lot |
| LOT DIMENSIONS | 64X150 |
| PARKING | Detached, Garage |
| SEWER | Public Sewer |
| STYLE | Traditional |
| TAXES | 14254 |
| WATER | Public |
MORTGAGE CALCULATOR
TOTAL MONTHLY PAYMENT
0
P
I
*Estimate only
| SATELLITE VIEW |
| / | |
We respect your online privacy and will never spam you. By submitting this form with your telephone number
you are consenting for Humderto
Garcia to contact you even if your name is on a Federal or State
"Do not call List".
Listed with Coldwell Banker Realty
The data relating to real estate for sale on this web site comes in part from the Broker ReciprocitySM Program of MRED. All real estate listings are marked with the Broker ReciprocitySM logo or the MRED Broker ReciprocitySM thumbnail logo (a little black house) and detailed information about them includes the name of the listing brokers.
The broker providing these data believes them to be correct, but advises interested parties to confirm them before relying on them in a purchase decision.
Copyright 2025 MRED. All rights reserved.

The broker providing these data believes them to be correct, but advises interested parties to confirm them before relying on them in a purchase decision.
Copyright 2025 MRED. All rights reserved.
This IDX solution is (c) Diverse Solutions 2025.