|
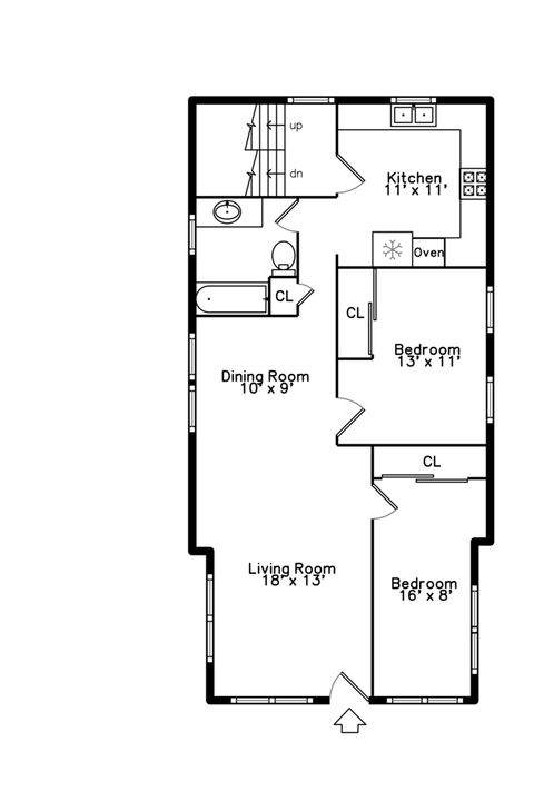
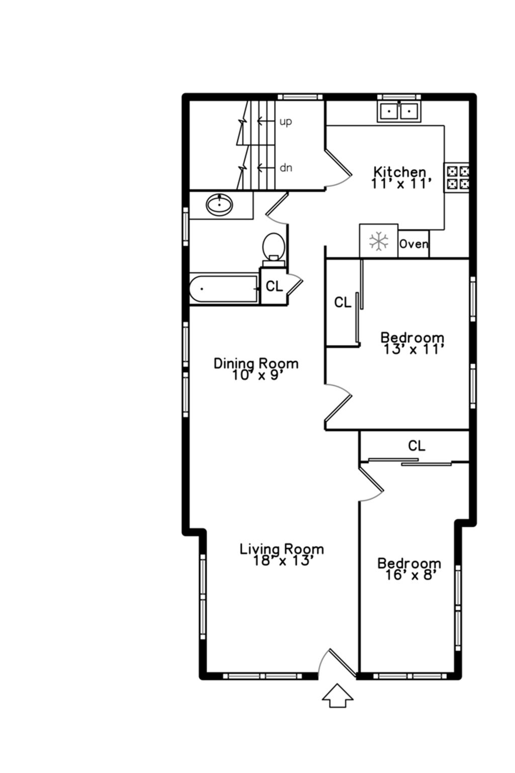
Large spacious home on an oversized lot in beautiful Brookfield. This property offers a full in-law suite on the second level with a kitchen space, full bath, family room, bedroom and tandem room good for an office or sitting area. The main level has a bright and open living and dining room area, 2 bedrooms, full bath and kitchen. An unfinished basement has potential for additional living space. The 2.5 car garage has an attached covered patio overlooking the huge fenced yard. You get all this and two highly sought after school districts, 102 and 204. Nearby recently renovated Ehlert Park, Congress Park Metra Station and Brookfield Zoo. New front porch 2025. HWH 2024. Estate sale, being sold As-Is.
| DAYS ON MARKET | 48 | LAST UPDATED | 12/14/2025 |
|---|---|---|---|
| YEAR BUILT | 0 | COMMUNITY | Brookfield |
| GARAGE SPACES | 2.5 | COUNTY | Cook |
| STATUS | Conditional | PROPERTY TYPE(S) | Single Family |
| School District | Lyons Twp High School |
|---|---|
| Elementary School | Congress Park Elementary School |
| Jr. High School | Park Junior High School |
| High School | Lyons Twp High School |
| PRICE HISTORY | |
| Prior to Nov 20, '25 | $359,900 |
|---|---|
| Nov 20, '25 - Today | $339,900 |
| ADDITIONAL DETAILS | |
| AIR | Ceiling Fan(s), Central Air |
|---|---|
| AIR CONDITIONING | Yes |
| APPLIANCES | Cooktop, Dishwasher, Dryer, Microwave, Oven, Refrigerator, Washer |
| AREA | Brookfield |
| BASEMENT | Full, Unfinished, Yes |
| CONSTRUCTION | Vinyl Siding |
| GARAGE | Yes |
| HEAT | Forced Air, Natural Gas |
| LOT | 0 |
| LOT DIMENSIONS | 50 x 125 |
| PARKING | Gravel, Garage Door Opener, Detached, Garage |
| SEWER | Public Sewer |
| TAXES | 7417.97 |
MORTGAGE CALCULATOR
TOTAL MONTHLY PAYMENT
0
P
I
*Estimate only
| SATELLITE VIEW |
| / | |
We respect your online privacy and will never spam you. By submitting this form with your telephone number
you are consenting for Humderto
Garcia to contact you even if your name is on a Federal or State
"Do not call List".
Listed with Charles Rutenberg Realty of IL
The data relating to real estate for sale on this web site comes in part from the Broker ReciprocitySM Program of MRED. All real estate listings are marked with the Broker ReciprocitySM logo or the MRED Broker ReciprocitySM thumbnail logo (a little black house) and detailed information about them includes the name of the listing brokers.
The broker providing these data believes them to be correct, but advises interested parties to confirm them before relying on them in a purchase decision.
Copyright 2025 MRED. All rights reserved.

The broker providing these data believes them to be correct, but advises interested parties to confirm them before relying on them in a purchase decision.
Copyright 2025 MRED. All rights reserved.
This IDX solution is (c) Diverse Solutions 2025.