|
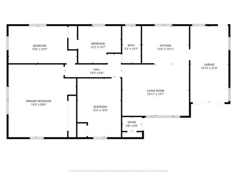
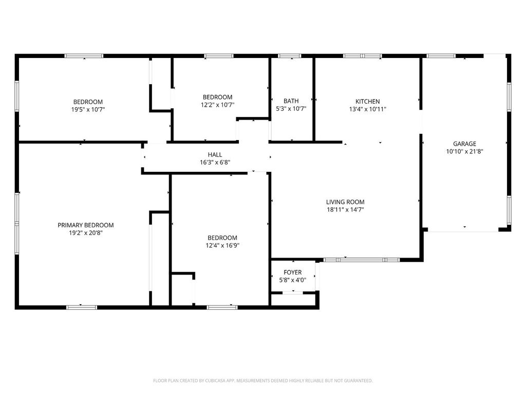
This could be a gem! Country living on just under a half acre. 4 Bedroom spaces. Very large master bedroom space could be converted to a functional master suite space. The smallest bedroom could also be used as a master bath/laundry room. It's gutted and ready for it's buyer to make a very nice home! Original solid wood paneling left in the living room can add so much character to your renovation!
| DAYS ON MARKET | 144 | LAST UPDATED | 3/24/2026 |
|---|---|---|---|
| YEAR BUILT | 1959 | COMMUNITY | St. Anne |
| GARAGE SPACES | 1.0 | COUNTY | Kankakee |
| STATUS | Active | PROPERTY TYPE(S) | Single Family |
| PRICE HISTORY | |
| Prior to Dec 11, '25 | $110,000 |
|---|---|
| Dec 11, '25 - Dec 26, '25 | $105,000 |
| Dec 26, '25 - Today | $99,900 |
| ADDITIONAL DETAILS | |
| AIR | None |
|---|---|
| AREA | St. Anne |
| BASEMENT | Crawl Space |
| CONSTRUCTION | Aluminum Siding |
| GARAGE | Attached Garage, Yes |
| HEAT | Natural Gas |
| LOT | 0 |
| LOT DIMENSIONS | 214.75X253.5 |
| PARKING | Attached, Garage |
| SEWER | Septic Tank |
| STYLE | Ranch |
| TAXES | 2296 |
| WATER | Well |
MORTGAGE CALCULATOR
TOTAL MONTHLY PAYMENT
0
P
I
*Estimate only
| SATELLITE VIEW |
| / | |
We respect your online privacy and will never spam you. By submitting this form with your telephone number
you are consenting for Humderto
Garcia to contact you even if your name is on a Federal or State
"Do not call List".
Listed with Berkshire Hathaway HomeServices Speckman Realty
The data relating to real estate for sale on this web site comes in part from the Broker ReciprocitySM Program of MRED. All real estate listings are marked with the Broker ReciprocitySM logo or the MRED Broker ReciprocitySM thumbnail logo (a little black house) and detailed information about them includes the name of the listing brokers.
The broker providing these data believes them to be correct, but advises interested parties to confirm them before relying on them in a purchase decision.
Copyright 2026 MRED. All rights reserved.

The broker providing these data believes them to be correct, but advises interested parties to confirm them before relying on them in a purchase decision.
Copyright 2026 MRED. All rights reserved.
This IDX solution is (c) Diverse Solutions 2026.