|
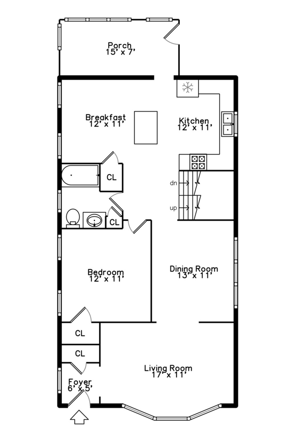
$20K PRICE DROP! ESTATE SALE! This Brick English Tudor was professionally renovated approximately 10 years ago, maintaining its high-quality finishes. The first floor features hardwood floors and a flowing floor plan including the Living Room, Dining Room, a bedroom and full bath on the main level. The huge eat-in Kitchen has with custom cabinets, newer stainless steel appliances, granite countertops, and a large floating island. Great heated bonus room off kitchen makes the perfect office or playroom that overlooks the yard. Upstairs, find two large bedrooms and a second full bathroom plus additional versatile space for a nice reading nook. The finished basement boasts a huge family room, a fourth bedroom, and a third bathroom with a walk-in shower. Just add your preferred flooring. A separate laundry room with a washer and dryer and ample storage space completes the basement. Outside, enjoy a fully fenced backyard. The home also benefits from two separate HVAC systems for optimal climate control. Some additional updates from the previous renovation included new windows, siding, and a parking pad next to the garage. This spacious brick home offers excellent value and modern comfort. Court approval required. This is an estate sale, sold strictly as-is. Buyer to do due diligence and verify all information.
| DAYS ON MARKET | 76 | LAST UPDATED | 1/20/2026 |
|---|---|---|---|
| YEAR BUILT | 1946 | COMMUNITY | CHI - Dunning |
| GARAGE SPACES | 1.0 | COUNTY | Cook |
| STATUS | Conditional | PROPERTY TYPE(S) | Single Family |
| PRICE HISTORY | |
| Prior to Jan 13, '26 | $499,000 |
|---|---|
| Jan 13, '26 - Today | $479,000 |
| ADDITIONAL DETAILS | |
| AIR | Ceiling Fan(s), Central Air |
|---|---|
| AIR CONDITIONING | Yes |
| APPLIANCES | Dishwasher, Dryer, Microwave, Range, Refrigerator, Stainless Steel Appliance(s), Washer |
| AREA | CHI - Dunning |
| BASEMENT | Finished, Full, Yes |
| CONSTRUCTION | Brick, Vinyl Siding |
| GARAGE | Yes |
| HEAT | Forced Air, Natural Gas, Zoned |
| INTERIOR | Entrance Foyer |
| LOT | 3790 sq ft |
| LOT DIMENSIONS | 30X127 |
| PARKING | Garage Door Opener, Detached, Garage |
| SEWER | Public Sewer |
| TAXES | 6122.24 |
MORTGAGE CALCULATOR
TOTAL MONTHLY PAYMENT
0
P
I
*Estimate only
| SATELLITE VIEW |
| / | |
We respect your online privacy and will never spam you. By submitting this form with your telephone number
you are consenting for Humderto
Garcia to contact you even if your name is on a Federal or State
"Do not call List".
Listed with Baird & Warner
The data relating to real estate for sale on this web site comes in part from the Broker ReciprocitySM Program of MRED. All real estate listings are marked with the Broker ReciprocitySM logo or the MRED Broker ReciprocitySM thumbnail logo (a little black house) and detailed information about them includes the name of the listing brokers.
The broker providing these data believes them to be correct, but advises interested parties to confirm them before relying on them in a purchase decision.
Copyright 2026 MRED. All rights reserved.

The broker providing these data believes them to be correct, but advises interested parties to confirm them before relying on them in a purchase decision.
Copyright 2026 MRED. All rights reserved.
This IDX solution is (c) Diverse Solutions 2026.