|
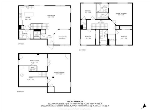
FABULOUS & CHIC in the desirable Amber Fields- Move-In Ready Perfection! Step inside this impeccably maintained home where modern updates meet stylish functional living. Painted in today's colors with crisp white trim and designer finishes throughout, this home truly shines from top to bottom. The open-concept main floor features rich wood laminate flooring, custom dimmable lighting, and a dream kitchen complete with a center island, granite countertops, custom backsplash, 42" white cabinetry, and premium stainless steel KitchenAid appliances ('19). The light-filled family room flows seamlessly from the kitchen, creating the perfect space for entertaining or relaxing. Upstairs, the spacious primary suite offers a generous 9x5 walk-in closet and private ensuite bath. Additional bedrooms feature plush newer carpeting and ceiling fans for year-round comfort. The beautifully finished basement adds incredible versatility with a large recreation space featuring upgraded electrical for enhanced entertainment, a flex space ideal for a workout room, hobbies, or home office, plus a huge storage area & convenient half bath. Enjoy fabulous outdoor living in your FULLY FENCED BACKYARD with a brick paver patio, cozy fire pit, and ambiance string lighting-complete with patio table and umbrella that can stay! Perfect for lively gatherings or peaceful evenings under the stars. This home offers peace of mind with quality updates throughout, including a new roof ('17), KitchenAid appliances ('19), water heater ('19), high-efficiency HVAC ('21), radon mitigation system ('22), and a whole-house generator for added comfort and security. Located within the highly desirable District 308 schools, 5 minutes to the new Coopers Hawk restaurant, Craft Urban downtown Aurora & within 10 minutes to the train station! Don't wait-this move-in ready beauty won't last long!
| DAYS ON MARKET | 34 | LAST UPDATED | 11/25/2025 |
|---|---|---|---|
| TRACT | Amber Fields | YEAR BUILT | 2003 |
| COMMUNITY | Aurora / Eola | GARAGE SPACES | 2.0 |
| COUNTY | Kendall | STATUS | Conditional |
| PROPERTY TYPE(S) | Single Family |
| School District | Oswego East High School |
|---|---|
| Elementary School | The Wheatlands Elementary School |
| Jr. High School | Bednarcik Junior High School |
| High School | Oswego East High School |
| ADDITIONAL DETAILS | |
| AIR | Ceiling Fan(s), Central Air |
|---|---|
| AIR CONDITIONING | Yes |
| AMENITIES | Insurance |
| APPLIANCES | Dishwasher, Disposal, Double Oven, Humidifier, Microwave, Range, Stainless Steel Appliance(s), Wine Refrigerator |
| AREA | Aurora / Eola |
| BASEMENT | Finished, Full, Sump Pump, Yes |
| CONSTRUCTION | Vinyl Siding |
| EXTERIOR | Fire Pit |
| GARAGE | Attached Garage, Yes |
| HEAT | Forced Air, Natural Gas |
| HOA DUES | 400 |
| INTERIOR | Walk-In Closet(s) |
| LOT | 7405 sq ft |
| LOT DESCRIPTION | Corner Lot |
| LOT DIMENSIONS | 68X130X68X128 |
| PARKING | Asphalt, Garage Door Opener, Attached, Garage |
| SEWER | Public Sewer |
| STYLE | Traditional |
| SUBDIVISION | Amber Fields |
| TAXES | 9471 |
| WATER | Public |
MORTGAGE CALCULATOR
TOTAL MONTHLY PAYMENT
0
P
I
*Estimate only
| SATELLITE VIEW |
| / | |
We respect your online privacy and will never spam you. By submitting this form with your telephone number
you are consenting for Humderto
Garcia to contact you even if your name is on a Federal or State
"Do not call List".
Listed with Baird & Warner
The data relating to real estate for sale on this web site comes in part from the Broker ReciprocitySM Program of MRED. All real estate listings are marked with the Broker ReciprocitySM logo or the MRED Broker ReciprocitySM thumbnail logo (a little black house) and detailed information about them includes the name of the listing brokers.
The broker providing these data believes them to be correct, but advises interested parties to confirm them before relying on them in a purchase decision.
Copyright 2025 MRED. All rights reserved.

The broker providing these data believes them to be correct, but advises interested parties to confirm them before relying on them in a purchase decision.
Copyright 2025 MRED. All rights reserved.
This IDX solution is (c) Diverse Solutions 2025.