|
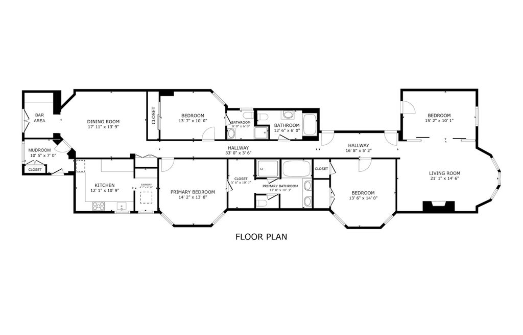
Welcome to 434 W Oakdale Ave #2 a beautifully updated 2,300+ sq ft, 4 bed / 3 bath full-floor home that blends classic Chicago charm with modern comfort in the heart of East Lakeview. The sun-filled, south-facing living room features tall ceilings, a large bay window, custom built-ins, and a gas fireplace with a marble surround, an ideal spot for slow weekend mornings or hosting friends. The separate dining room with coffered ceilings offers plenty of room for dinner parties, holidays, or a work-from-home setup. The updated kitchen blends style and function with Caesarstone countertops, stainless-steel appliances, abundant cabinet storage, and a layout made for cooking together or entertaining. Four generously sized bedrooms provide flexible options for guest space, two home offices, relaxing or working out. The primary suite is bright and private with a large walk-through closet and an en-suite bath featuring a soaking tub, separate shower, double vanity, and private water closet. A second bedroom with an en-suite bath is perfect for visitors, while the third and fourth bedrooms offer versatility and great natural light; the fourth bed/office opens to a charming front balcony. A separate bar area with two beverage fridges leads to a cozy, sunlit back deck. Additional conveniences include three full baths, in-unit laundry, hardwood floors throughout, additional storage, covered parking (off a private driveway, not alley) and a spacious mudroom with radiant floors creating the perfect transition space for daily life. Set on a quiet, tree-lined street just steps from the Lakefront Trail, Belmont Harbor, Broadway cafes, shops, and transit, this second-floor condo lives like a single-family home with warm, inviting spaces designed for everyday ease and elevated living.
| DAYS ON MARKET | 7 | LAST UPDATED | 11/24/2025 |
|---|---|---|---|
| YEAR BUILT | 1891 | COMMUNITY | CHI - Lake View |
| COUNTY | Cook | STATUS | Conditional |
| PROPERTY TYPE(S) | Condo/Townhouse/Co-Op |
| School District | Lake View High School |
|---|---|
| Elementary School | Nettelhorst Elementary School |
| Jr. High School | Nettelhorst Elementary School |
| High School | Lake View High School |
| ADDITIONAL DETAILS | |
| AIR | Central Air |
|---|---|
| AIR CONDITIONING | Yes |
| AMENITIES | Insurance, Security, Snow Removal, Water |
| APPLIANCES | Dishwasher, Disposal, Dryer, Microwave, Range, Range Hood, Stainless Steel Appliance(s), Washer, Wine Refrigerator |
| AREA | CHI - Lake View |
| BASEMENT | None |
| CONSTRUCTION | Brick, Stone |
| EXTERIOR | Balcony |
| FIREPLACE | Yes |
| HEAT | Forced Air, Natural Gas |
| HOA DUES | 389 |
| LOT | 0 |
| LOT DIMENSIONS | common |
| PARKING | Concrete |
| SEWER | Public Sewer |
| STORIES | 3 |
| TAXES | 14629.03 |
MORTGAGE CALCULATOR
TOTAL MONTHLY PAYMENT
0
P
I
*Estimate only
| / | |
We respect your online privacy and will never spam you. By submitting this form with your telephone number
you are consenting for Humderto
Garcia to contact you even if your name is on a Federal or State
"Do not call List".
Listed with Keller Williams ONEChicago
The data relating to real estate for sale on this web site comes in part from the Broker ReciprocitySM Program of MRED. All real estate listings are marked with the Broker ReciprocitySM logo or the MRED Broker ReciprocitySM thumbnail logo (a little black house) and detailed information about them includes the name of the listing brokers.
The broker providing these data believes them to be correct, but advises interested parties to confirm them before relying on them in a purchase decision.
Copyright 2025 MRED. All rights reserved.

The broker providing these data believes them to be correct, but advises interested parties to confirm them before relying on them in a purchase decision.
Copyright 2025 MRED. All rights reserved.
This IDX solution is (c) Diverse Solutions 2025.