|
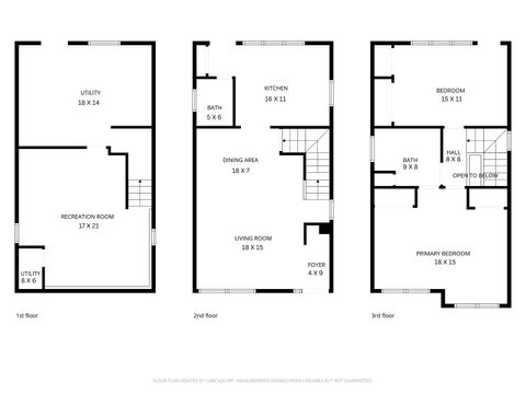
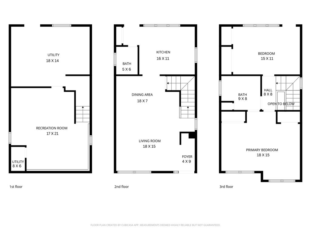
Welcome to Dorchester Place, a charming subdivision within the vibrant South Shore community-situated on a beautiful tree-lined street and just minutes from the University of Chicago, the Lakefront, Hyde Park, Jackson Park, the South Shore Cultural Center, local coffee shops, and a variety of shopping centers. The upcoming Obama Presidential Center, currently under development, will be a major addition to this thriving neighborhood. This well-maintained single-family home features two bedrooms with vaulted ceilings, one-and-a-half bathrooms, and a finished basement offering additional living or entertainment space. Enjoy the warmth of hardwood floors throughout and a private outdoor area off the second bedroom on the upper level. The home also includes a spacious backyard with a parking pad and the potential to add a garage in the future.Perfectly located and thoughtfully designed, this home delivers convenience, comfort, and long-term value in one of Chicago's most culturally rich communities.
| DAYS ON MARKET | 12 | LAST UPDATED | 11/20/2025 |
|---|---|---|---|
| TRACT | Dorchester Place | YEAR BUILT | 1997 |
| COMMUNITY | CHI - South Shore | COUNTY | Cook |
| STATUS | Active | PROPERTY TYPE(S) | Single Family |
| ADDITIONAL DETAILS | |
| AIR | Central Air |
|---|---|
| AIR CONDITIONING | Yes |
| AREA | CHI - South Shore |
| BASEMENT | Finished, Full, Yes |
| CONSTRUCTION | Brick, Vinyl Siding |
| HEAT | Natural Gas |
| LOT | 0 |
| LOT DIMENSIONS | 125 X 25 |
| SEWER | Public Sewer |
| SUBDIVISION | Dorchester Place |
| TAXES | 1065 |
| WATER | Public |
MORTGAGE CALCULATOR
TOTAL MONTHLY PAYMENT
0
P
I
*Estimate only
| SATELLITE VIEW |
| / | |
We respect your online privacy and will never spam you. By submitting this form with your telephone number
you are consenting for Humderto
Garcia to contact you even if your name is on a Federal or State
"Do not call List".
Listed with Coldwell Banker Realty
The data relating to real estate for sale on this web site comes in part from the Broker ReciprocitySM Program of MRED. All real estate listings are marked with the Broker ReciprocitySM logo or the MRED Broker ReciprocitySM thumbnail logo (a little black house) and detailed information about them includes the name of the listing brokers.
The broker providing these data believes them to be correct, but advises interested parties to confirm them before relying on them in a purchase decision.
Copyright 2025 MRED. All rights reserved.

The broker providing these data believes them to be correct, but advises interested parties to confirm them before relying on them in a purchase decision.
Copyright 2025 MRED. All rights reserved.
This IDX solution is (c) Diverse Solutions 2025.