|
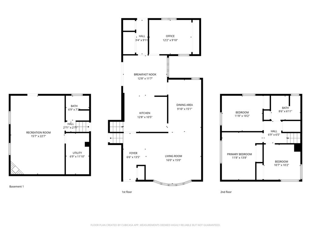
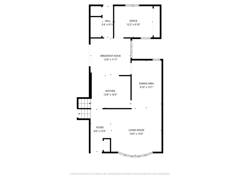
Welcome to 9 Merry Court - a charming split level owned by the same family for over 61 years! Ideally situated on a quiet cul-de-sac just steps from Countryside Park, this home offers an open and inviting layout perfect for everyday living and entertaining. The spacious living room features a large bay window and opens to the formal dining room. The well-appointed eat-in kitchen includes sliding glass doors leading to the backyard patio where you'll enjoy the professionally landscaped extra-large lot. A main-level office (or fourth bedroom) and fabulous pantry complete the first floor. Upstairs, you'll find a generous hall bath and three large bedrooms with hardwood floors and ample closet space. The lower level offers a comfortable family room with cozy gas fireplace, full bath, laundry room and exterior access to the backyard. Immaculate two-car garage and double-wide paver driveway. Recent updates include a new hot water heater (2025), garage door (2021), roof (2020) and AC units (2018). Located in the desirable LTHS school district, minutes from major interstates, shopping and dining. While this home has been well maintained over the years, it is conveyed 'As-Is'.
| DAYS ON MARKET | 52 | LAST UPDATED | 12/15/2025 |
|---|---|---|---|
| YEAR BUILT | 1964 | COMMUNITY | Countryside |
| GARAGE SPACES | 2.0 | COUNTY | Cook |
| STATUS | Conditional | PROPERTY TYPE(S) | Single Family |
| School District | Lyons Twp High School |
|---|---|
| Elementary School | Ideal Elementary School |
| Jr. High School | Wm F Gurrie Middle School |
| High School | Lyons Twp High School |
| ADDITIONAL DETAILS | |
| AIR | Ceiling Fan(s), Central Air, Zoned |
|---|---|
| AIR CONDITIONING | Yes |
| APPLIANCES | Dishwasher, Disposal, Dryer, Humidifier, Microwave, Range, Refrigerator, Washer |
| AREA | Countryside |
| BASEMENT | Exterior Entry, Finished, Partial, Sump Pump, Yes |
| CONSTRUCTION | Brick |
| FIREPLACE | Yes |
| GARAGE | Attached Garage, Yes |
| HEAT | Forced Air, Natural Gas |
| INTERIOR | Entrance Foyer, Pantry, Vaulted Ceiling(s) |
| LOT | 0 |
| LOT DESCRIPTION | Cul-de-sac, Landscaped |
| LOT DIMENSIONS | 65x163.2x64.9x137.4 |
| PARKING | Garage Door Opener, Attached, Garage, Driveway |
| SEWER | Public Sewer |
| TAXES | 7248.76 |
MORTGAGE CALCULATOR
TOTAL MONTHLY PAYMENT
0
P
I
*Estimate only
| SATELLITE VIEW |
| / | |
We respect your online privacy and will never spam you. By submitting this form with your telephone number
you are consenting for Humderto
Garcia to contact you even if your name is on a Federal or State
"Do not call List".
Listed with @properties Christie's International Real Estate
The data relating to real estate for sale on this web site comes in part from the Broker ReciprocitySM Program of MRED. All real estate listings are marked with the Broker ReciprocitySM logo or the MRED Broker ReciprocitySM thumbnail logo (a little black house) and detailed information about them includes the name of the listing brokers.
The broker providing these data believes them to be correct, but advises interested parties to confirm them before relying on them in a purchase decision.
Copyright 2026 MRED. All rights reserved.

The broker providing these data believes them to be correct, but advises interested parties to confirm them before relying on them in a purchase decision.
Copyright 2026 MRED. All rights reserved.
This IDX solution is (c) Diverse Solutions 2026.