|
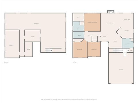
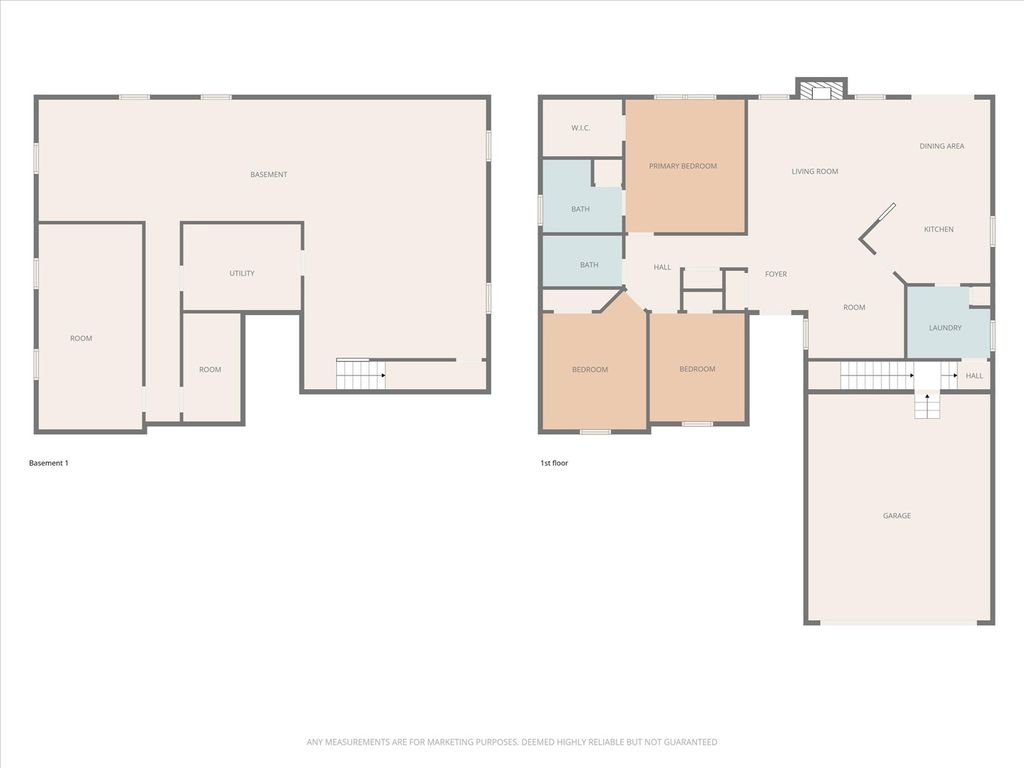
Welcome home to this charming 3-bedroom, 2-bath ranch offering comfortable single-level living. The open-concept layout seamlessly connects the living, dining, and kitchen areas-perfect for everyday living and entertaining. The spacious primary bedroom features a vaulted ceiling, walk-in closet, and a large private ensuite. Two additional bedrooms share a well-appointed full hallway bathroom. A standout feature of this home is the full basement, already framed out with multiple rooms, offering exceptional potential for future finishing. Create the additional living space, gym, or rec room you've always wanted. Major updates provide peace of mind, including a new roof and gutters (2024), new water heater (2023), and a brand-new deck (2025) perfect for outdoor relaxation. BRAND NEW furnace is currently being installed for new buyers!!! The home also includes an oversized main-level laundry room and a convenient 2-car garage. Easy I55 and I80 access still while in Plainfield School Districts. Located just seconds from Route 59 and close to all nearby shopping, dining, and amenities!
| DAYS ON MARKET | 74 | LAST UPDATED | 1/28/2026 |
|---|---|---|---|
| YEAR BUILT | 2001 | COMMUNITY | Plainfield |
| GARAGE SPACES | 2.0 | COUNTY | Will |
| STATUS | Active | PROPERTY TYPE(S) | Single Family |
| School District | Plainfield Central High School |
|---|---|
| Elementary School | River View Elementary School |
| Jr. High School | Timber Ridge Middle School |
| High School | Plainfield Central High School |
| PRICE HISTORY | |
| Prior to Jan 28, '26 | $349,900 |
|---|---|
| Jan 28, '26 - Today | $344,900 |
| ADDITIONAL DETAILS | |
| AIR | Central Air |
|---|---|
| AIR CONDITIONING | Yes |
| AREA | Plainfield |
| BASEMENT | Full, Unfinished, Yes |
| CONSTRUCTION | Vinyl Siding |
| FIREPLACE | Yes |
| GARAGE | Attached Garage, Yes |
| HEAT | Natural Gas |
| HOA DUES | 70 |
| LOT | 0 |
| LOT DIMENSIONS | 145 x 65 |
| PARKING | Asphalt, Garage Door Opener, Attached, Garage |
| SEWER | Public Sewer |
| TAXES | 7604 |
| WATER | Public |
MORTGAGE CALCULATOR
TOTAL MONTHLY PAYMENT
0
P
I
*Estimate only
| SATELLITE VIEW |
| / | |
We respect your online privacy and will never spam you. By submitting this form with your telephone number
you are consenting for Humderto
Garcia to contact you even if your name is on a Federal or State
"Do not call List".
Listed with Compass
The data relating to real estate for sale on this web site comes in part from the Broker ReciprocitySM Program of MRED. All real estate listings are marked with the Broker ReciprocitySM logo or the MRED Broker ReciprocitySM thumbnail logo (a little black house) and detailed information about them includes the name of the listing brokers.
The broker providing these data believes them to be correct, but advises interested parties to confirm them before relying on them in a purchase decision.
Copyright 2026 MRED. All rights reserved.

The broker providing these data believes them to be correct, but advises interested parties to confirm them before relying on them in a purchase decision.
Copyright 2026 MRED. All rights reserved.
This IDX solution is (c) Diverse Solutions 2026.