|
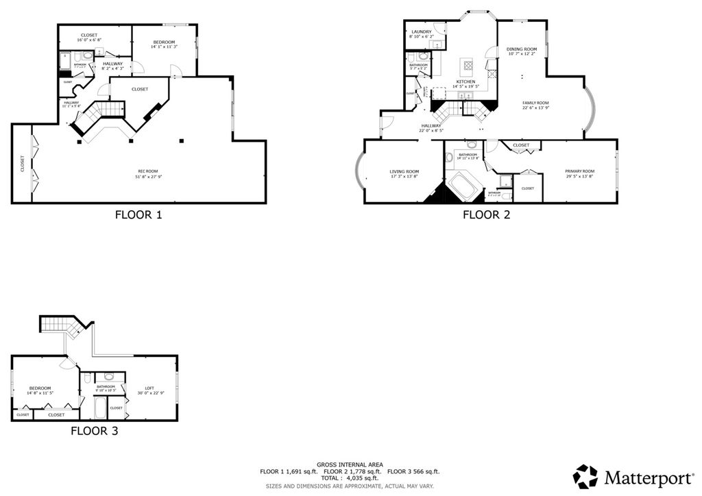
Country Club living awaits in Crystal Tree! Don't miss this rarely available Lismore patio home with gorgeous pond and golf course views! The paver walkway leads to the inviting entry with a grand staircase and dramatic two story foyer with skylight. The formal living room provides a flexible space, anchored by a timeless gas fireplace. Create meals with ease in the chef's kitchen offering granite counters, a large island, abundant cabinetry, hardwood flooring and breakfast nook. Host special occasions in the formal dining room with lofted ceilings and convenient access to the back deck. Enjoy the expansive adjacent family room with a generous bay window that illuminates the entire main level. Unwind at the end of the day in the elegant main level primary suite with a walk-in closet and a luxurious ensuite bath with jetted tub, step-in shower, dual vanities and water closet. A convenient laundry room and half bath round out the main level. Upstairs, you will find a spacious bedroom with a jack and jill bath plus a versatile loft space which could easily convert to an additional bedroom. Entertain family and friends in the finished walkout basement with a large recreation room featuring a floor-to-ceiling brick fireplace, custom built-in cabinetry and direct access to the patio and backyard. The basement also offers a third bedroom, a full bath and a generous storage room. Recent improvements include new vinyl plank flooring, roof, downspouts, gutters (2025), AC and furnace (2024), water heater (2023) - providing peace of mind for years to come! Step outside to the freshly painted raised deck overlooking the tranquil pond and golf course, perfect for relaxing or entertaining. An attached two car garage completes this exceptional home. Crystal Tree is a premier gated community known for its signature 18-hole golf course, designed by world-renowned Robert Trent Jones Jr. Members can enjoy the newly renovated outdoor pool, tennis/pickleball courts, 55,000 sqft clubhouse, dining room, lounge, fitness center, driving range, putting greens, private party rooms, manicured grounds, 24-hour security and more! Fantastic Orland Park location, just minutes from Orland Square Mall, Centennial Park, Lake Sedgewick, Metra Stations, forest preserves, shopping, dining, and schools. Come see today!
| DAYS ON MARKET | 69 | LAST UPDATED | 12/13/2025 |
|---|---|---|---|
| TRACT | Crystal Tree | YEAR BUILT | 1988 |
| COMMUNITY | Orland Park | GARAGE SPACES | 2.0 |
| COUNTY | Cook | STATUS | Conditional |
| PROPERTY TYPE(S) | Condo/Townhouse/Co-Op |
| School District | Carl Sandburg High School |
|---|---|
| Elementary School | High Point Elementary School |
| Jr. High School | Orland Junior High School |
| High School | Carl Sandburg High School |
| ADDITIONAL DETAILS | |
| AIR | Ceiling Fan(s), Central Air |
|---|---|
| AIR CONDITIONING | Yes |
| AMENITIES | Security, Snow Removal |
| APPLIANCES | Cooktop, Dishwasher, Disposal, Double Oven, Humidifier, Range, Refrigerator |
| AREA | Orland Park |
| BASEMENT | Exterior Entry, Finished, Full, Sump Pump, Walk-Out Access, Yes |
| CONSTRUCTION | Brick |
| FIREPLACE | Yes |
| GARAGE | Attached Garage, Yes |
| HEAT | Forced Air, Natural Gas |
| HOA DUES | 362 |
| INTERIOR | Built-in Features, Storage, Vaulted Ceiling(s), Walk-In Closet(s) |
| LOT | 0 |
| LOT DIMENSIONS | 6271 |
| PARKING | Concrete, Garage Door Opener, Attached, Garage |
| SEWER | Public Sewer |
| STORIES | 2 |
| SUBDIVISION | Crystal Tree |
| TAXES | 9018 |
| VIEW | Yes |
| VIEW DESCRIPTION | Water |
| WATERFRONT | Yes |
MORTGAGE CALCULATOR
TOTAL MONTHLY PAYMENT
0
P
I
*Estimate only
| SATELLITE VIEW |
| / | |
We respect your online privacy and will never spam you. By submitting this form with your telephone number
you are consenting for Humderto
Garcia to contact you even if your name is on a Federal or State
"Do not call List".
Listed with Redfin Corporation
The data relating to real estate for sale on this web site comes in part from the Broker ReciprocitySM Program of MRED. All real estate listings are marked with the Broker ReciprocitySM logo or the MRED Broker ReciprocitySM thumbnail logo (a little black house) and detailed information about them includes the name of the listing brokers.
The broker providing these data believes them to be correct, but advises interested parties to confirm them before relying on them in a purchase decision.
Copyright 2026 MRED. All rights reserved.

The broker providing these data believes them to be correct, but advises interested parties to confirm them before relying on them in a purchase decision.
Copyright 2026 MRED. All rights reserved.
This IDX solution is (c) Diverse Solutions 2026.