|
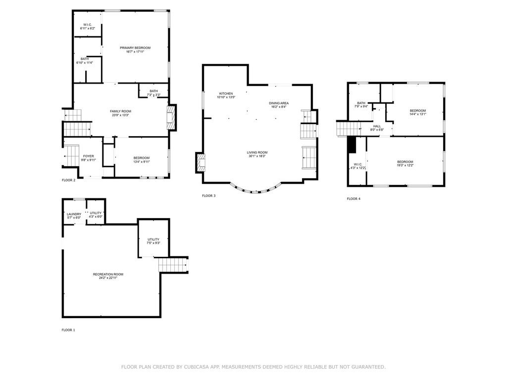
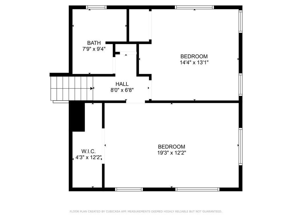
Welcome to this custom build & meticulously renovated Home - where modern design meets timeless comfort ~ Located in the Prime Mokena location, beautiful park-like setting secluded Subdivision ~ This stunning 4-bedroom, 2.5-bath home offers almost 2800 sq ft of multiple living spaces-perfect for today's lifestyle ~ Step inside through double front door and be greeted by an inviting foyer with sleek railings, stylish ceramic tile flooring, and plenty of natural light ~ The main living areas feature wide-plank hardwood floors, soaring ceilings and oversized windows that frame views of the lush backyard ~ The heart of the home is the open concept kitchen and living space ~ A chef's dream kitchen boasts white custom cabinetry, quartz countertops, massive Island with designer lighting & stainless steel appliances ~ Lower level with spacious primary suite with vaulted ceilings and a custom-designed en-suite bath and walk-in closet ~ Cozy Family room with an inviting wood burning fire place, powder room and an extra Bedroom ~ Upper level features 2 generous size Bedrooms and elegant Bathroom with double sink and soaking tub ~ Sub Basement with additional 650 sq feet, nicely finished with a bonus room perfect for a Recreation, Gym, or Playroom ~ The home was reborn in 2025 with all brand new: walls, studs, isolation, electrical, plumbing, roof, HVAC, AC, water heater, windows, J. Hardie Boards siding, gutters, driveway, sidewalks, track decking and much more ~ Detached 2 car Garage, fully insulated and painted with epoxy floors ~ Enjoy the peace and privacy of a large 0.6 acre lot with mature trees, while being close to everything ~ Located just 2 miles from the Metra, and minutes from Recreation & Fitness Center "The Oaks", shopping, restaurants, parks, bike trails, and major highways ~ All this within the top-rated Mokena Elementary and Lincoln-Way School Districts ~ This is more than a house - it's a lifestyle you've been waiting for! Be HOME for the Holidays!
| DAYS ON MARKET | 32 | LAST UPDATED | 12/4/2025 |
|---|---|---|---|
| YEAR BUILT | 1961 | COMMUNITY | Mokena |
| GARAGE SPACES | 2.0 | COUNTY | Will |
| STATUS | Active | PROPERTY TYPE(S) | Single Family |
| ADDITIONAL DETAILS | |
| AIR | Central Air |
|---|---|
| AIR CONDITIONING | Yes |
| APPLIANCES | Dishwasher, Disposal, Dryer, Microwave, Range, Refrigerator, Washer, Water Softener Owned |
| AREA | Mokena |
| BASEMENT | Finished, Partial, Walk-Out Access, Yes |
| CONSTRUCTION | Brick, Frame |
| FIREPLACE | Yes |
| GARAGE | Yes |
| HEAT | Forced Air, Natural Gas |
| INTERIOR | Bookcases, Entrance Foyer, Open Floorplan, Walk-In Closet(s) |
| LOT | 0.61 acre(s) |
| LOT DESCRIPTION | Irregular Lot |
| LOT DIMENSIONS | 221x178x148x108 |
| PARKING | Detached, Garage |
| SEWER | Septic Tank |
| TAXES | 8497 |
| WATER | Well |
MORTGAGE CALCULATOR
TOTAL MONTHLY PAYMENT
0
P
I
*Estimate only
| SATELLITE VIEW |
| / | |
We respect your online privacy and will never spam you. By submitting this form with your telephone number
you are consenting for Humderto
Garcia to contact you even if your name is on a Federal or State
"Do not call List".
Listed with Realty One Group Heartland
The data relating to real estate for sale on this web site comes in part from the Broker ReciprocitySM Program of MRED. All real estate listings are marked with the Broker ReciprocitySM logo or the MRED Broker ReciprocitySM thumbnail logo (a little black house) and detailed information about them includes the name of the listing brokers.
The broker providing these data believes them to be correct, but advises interested parties to confirm them before relying on them in a purchase decision.
Copyright 2025 MRED. All rights reserved.

The broker providing these data believes them to be correct, but advises interested parties to confirm them before relying on them in a purchase decision.
Copyright 2025 MRED. All rights reserved.
This IDX solution is (c) Diverse Solutions 2025.