|
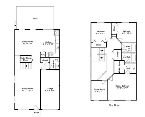
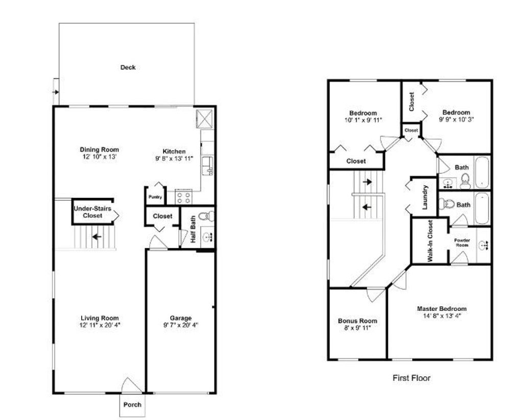
Home is in excellent condition and ready for you to move in. Rare to find a 4 bedroom duplex in Lakewood falls! Kitchen with plenty of cabinet space. Four-bedroom 2.5 bath with laminate flooring throughout the whole home. Master with walk in closet and full bath 3 more bedrooms and full bath complete the second floor.
| DAYS ON MARKET | 1 | LAST UPDATED | 12/2/2025 |
|---|---|---|---|
| TRACT | Lakewood Falls | YEAR BUILT | 1998 |
| COMMUNITY | Plainfield | GARAGE SPACES | 1.0 |
| COUNTY | Will | STATUS | Active |
| PROPERTY TYPE(S) | Condo/Townhouse/Co-Op |
| ADDITIONAL DETAILS | |
| AIR | Central Air |
|---|---|
| AIR CONDITIONING | Yes |
| AREA | Plainfield |
| BASEMENT | None |
| CONSTRUCTION | Vinyl Siding |
| GARAGE | Attached Garage, Yes |
| HEAT | Forced Air, Natural Gas |
| HOA DUES | 76 |
| LOT | 0 |
| LOT DIMENSIONS | 36X101 |
| PARKING | Asphalt, Garage Door Opener, Attached, Garage |
| SEWER | Public Sewer |
| STORIES | 2 |
| SUBDIVISION | Lakewood Falls |
| TAXES | 7030 |
| WATER | Public |
MORTGAGE CALCULATOR
TOTAL MONTHLY PAYMENT
0
P
I
*Estimate only
| / | |
We respect your online privacy and will never spam you. By submitting this form with your telephone number
you are consenting for Humderto
Garcia to contact you even if your name is on a Federal or State
"Do not call List".
Listed with Coldwell Banker Real Estate Group
The data relating to real estate for sale on this web site comes in part from the Broker ReciprocitySM Program of MRED. All real estate listings are marked with the Broker ReciprocitySM logo or the MRED Broker ReciprocitySM thumbnail logo (a little black house) and detailed information about them includes the name of the listing brokers.
The broker providing these data believes them to be correct, but advises interested parties to confirm them before relying on them in a purchase decision.
Copyright 2025 MRED. All rights reserved.

The broker providing these data believes them to be correct, but advises interested parties to confirm them before relying on them in a purchase decision.
Copyright 2025 MRED. All rights reserved.
This IDX solution is (c) Diverse Solutions 2025.