|
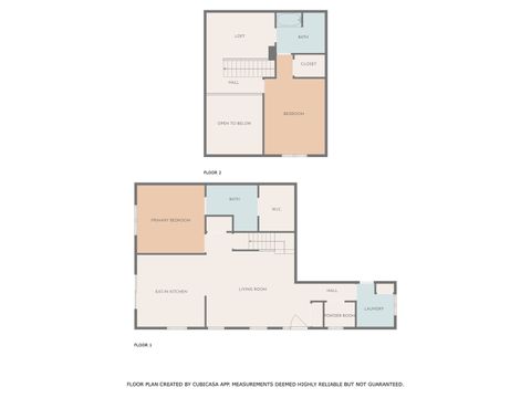
Discover the pinnacle of modern luxury in this impeccably crafted new construction townhome. Thoughtfully designed with clean lines and upscale finishes, this residence offers 2 spacious bedrooms, 2.5 elegant baths, and a versatile loft space-perfect as a 3rd bedroom, home office, lounge, or as another living space.. The main floor primary suite offers both convenience and privacy, while soaring ceilings and expansive windows create a bright, airy ambiance throughout. The gourmet kitchen is a designer's dream, showcasing sleek white cabinetry, premium stainless steel appliances, and recessed lighting, all curated to elevate your culinary experience. Main floor laundry room for your convenience. Additional features include a spacious 2-car garage, luxurious modern finishes, and an open-concept layout designed for both relaxation and refined entertaining. Every detail reflects unparalleled quality and contemporary sophistication-luxury living redefined. 2D floor plan and virtual tour are virtually rendered to show layout. Builder has 3 models to choose from. Featuring 2 bedrooms and 3 bedrooms depending on preference. Still time to talk to builder about adding your own customized finishes to the new home. Mostly ready and final Finishes being done. Some Photo and video have been virtually staged.
| DAYS ON MARKET | 29 | LAST UPDATED | 11/25/2025 |
|---|---|---|---|
| YEAR BUILT | 2025 | COMMUNITY | Palos Hills |
| GARAGE SPACES | 2.0 | COUNTY | Cook |
| STATUS | Active | PROPERTY TYPE(S) | Condo/Townhouse/Co-Op |
| ADDITIONAL DETAILS | |
| AIR | Central Air |
|---|---|
| AIR CONDITIONING | Yes |
| AMENITIES | Snow Removal |
| AREA | Palos Hills |
| BASEMENT | None |
| CONSTRUCTION | Brick |
| GARAGE | Attached Garage, Yes |
| HEAT | Natural Gas |
| HOA DUES | 150 |
| LOT | 0 |
| LOT DIMENSIONS | 34956 |
| PARKING | Attached, Garage |
| SEWER | Public Sewer |
| STORIES | 2 |
| WATER | Public |
MORTGAGE CALCULATOR
TOTAL MONTHLY PAYMENT
0
P
I
*Estimate only
| SATELLITE VIEW |
| / | |
We respect your online privacy and will never spam you. By submitting this form with your telephone number
you are consenting for Humderto
Garcia to contact you even if your name is on a Federal or State
"Do not call List".
Listed with The Joudeh Group
The data relating to real estate for sale on this web site comes in part from the Broker ReciprocitySM Program of MRED. All real estate listings are marked with the Broker ReciprocitySM logo or the MRED Broker ReciprocitySM thumbnail logo (a little black house) and detailed information about them includes the name of the listing brokers.
The broker providing these data believes them to be correct, but advises interested parties to confirm them before relying on them in a purchase decision.
Copyright 2025 MRED. All rights reserved.

The broker providing these data believes them to be correct, but advises interested parties to confirm them before relying on them in a purchase decision.
Copyright 2025 MRED. All rights reserved.
This IDX solution is (c) Diverse Solutions 2025.