|
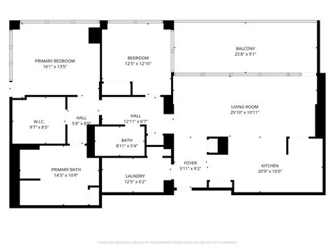
This celestial two bedroom/two bathroom penthouse with the most incredible 26 x 10 outdoor terrace is located on the 15th and top floor of One Evanston. It is as unique & special a home as any high rise building can offer in Evanston with views of Lake Michigan, the North Shore & the setting sun every day of the year. You can see for miles and miles. One Evanston is one of the newest and the most luxurious green/LEED-certified condominium building in downtown Evanston. Professionally managed with strong reserves. One Evanston was built in 2009 featuring modern glass design, green roof, floor-to-ceiling windows, and top-of-the-line, environmentally conscious finishes. This full amenity building boasts a gorgeous marble lobby with 24-hour door staff, swimming pool, fitness center, club room, common sundeck and indoor garage. This is one building where your monthly assessments give you so much in return. Gently lived in by original owners, this gem features hardwood floors throughout, custom window treatments, a stainless appliance open kitchen with an abundance of cabinets. The laundry/utility/pantry is remarkabley sized and convenient for a condominium unit of any type. The master bedroom suite with a custom built out walk in closet & nice bathroom with real potential is a tucked away oasis. The second bedroom is nicely sized. There are two deeded parking spaces with a premium fourth floor location and a storage locker included in the price. Not one to sleep on if you ever want to sleep here!
| DAYS ON MARKET | 11 | LAST UPDATED | 12/22/2025 |
|---|---|---|---|
| YEAR BUILT | 2009 | COMMUNITY | Evanston |
| GARAGE SPACES | 2.0 | COUNTY | Cook |
| STATUS | Conditional | PROPERTY TYPE(S) | Condo/Townhouse/Co-Op |
| School District | Evanston Twp High School |
|---|---|
| Elementary School | Dewey Elementary School |
| Jr. High School | Nichols Middle School |
| High School | Evanston Twp High School |
| ADDITIONAL DETAILS | |
| AIR | Central Air |
|---|---|
| AIR CONDITIONING | Yes |
| AMENITIES | Gas, Insurance, Security, Snow Removal, Water |
| APPLIANCES | Dishwasher, Disposal, Dryer, Microwave, Range, Refrigerator, Washer |
| AREA | Evanston |
| BASEMENT | None |
| CONSTRUCTION | Glass |
| EXTERIOR | Balcony |
| GARAGE | Attached Garage, Yes |
| HEAT | Natural Gas |
| HOA DUES | 1140 |
| INTERIOR | Elevator, Entrance Foyer, Pantry, Storage, Walk-In Closet(s) |
| LOT | 0 |
| LOT DIMENSIONS | COMMON |
| PARKING | Garage Door Opener, Heated Garage, Attached, Garage |
| SEWER | Public Sewer |
| STORIES | 15 |
| TAXES | 16245.63 |
| UTILITIES | Cable Available |
| VIEW | Yes |
| VIEW DESCRIPTION | Water |
MORTGAGE CALCULATOR
TOTAL MONTHLY PAYMENT
0
P
I
*Estimate only
| SATELLITE VIEW |
| / | |
We respect your online privacy and will never spam you. By submitting this form with your telephone number
you are consenting for Humderto
Garcia to contact you even if your name is on a Federal or State
"Do not call List".
Listed with Baird & Warner
The data relating to real estate for sale on this web site comes in part from the Broker ReciprocitySM Program of MRED. All real estate listings are marked with the Broker ReciprocitySM logo or the MRED Broker ReciprocitySM thumbnail logo (a little black house) and detailed information about them includes the name of the listing brokers.
The broker providing these data believes them to be correct, but advises interested parties to confirm them before relying on them in a purchase decision.
Copyright 2025 MRED. All rights reserved.

The broker providing these data believes them to be correct, but advises interested parties to confirm them before relying on them in a purchase decision.
Copyright 2025 MRED. All rights reserved.
This IDX solution is (c) Diverse Solutions 2025.