|
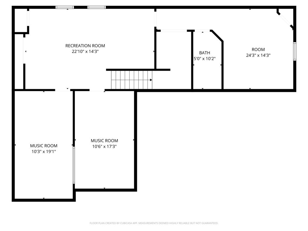
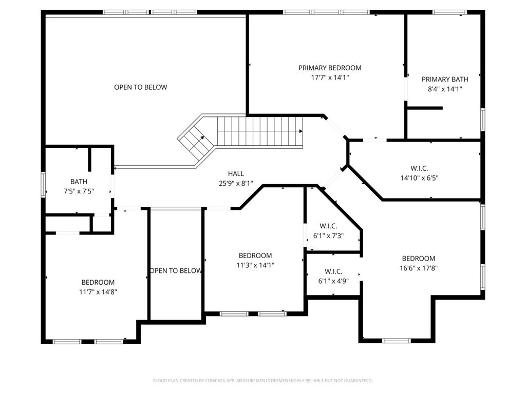
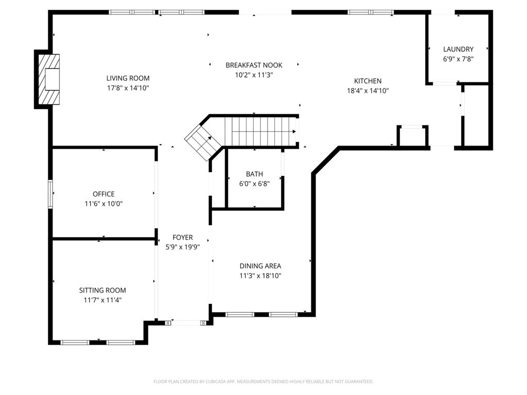
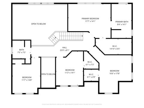
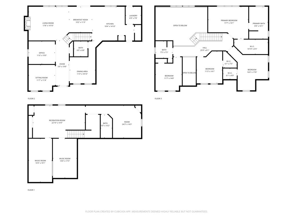
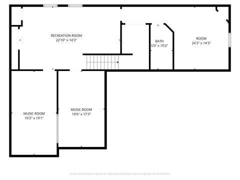
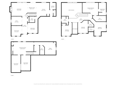
Welcome to this Beautiful CONTEMPORARY STYLE home with A LOT of UPDATES located in the Gates Creek West subdivision. When you arrive, in the front of the house you will find a contemporary look home. As soon as enter the home you will step in into an inviting open concept of the living room and dining room that offers waterproof hardwood laminate flooring throughout the main floor. In the Family room you will find A stunning fireplace to enjoy your family holidays. The Contemporary stylish Kitchen offers a beautiful Cabinetry and Granite kitchen Tops with a LARGE island for holiday dinners. This homes features total of 4 Bedrooms in second floor with a walk in closet in the primary room, total of 3.5 renovated bathrooms. A FINISHED basement where you will find a recording music studio and can be used as an additional 2 extra bedrooms, plus an additional bedroom with full bathroom and ENTERTAINMENT space where you can enjoy watching movies and sports games. And the best of this house is the OUTDOORS. Spend your summer days favorite sports team under the pergola , or enjoy the extended backyard with the fire pit while you relax in the beautiful weather in the fall. if you like outdoors, the BACKYARD IS THE PLACE TO BE! Highlights about this house, NEW WATER HEATHER, 2 ATTICS (GARAGE AND SECOND FLOOR, NEW Roof 2023, NEW Siding 2023, NEW Gutters, updated kitchen, floors, extended new driveway and much more. WELCOME TO YOUR NEW HOME!
| DAYS ON MARKET | 63 | LAST UPDATED | 12/1/2025 |
|---|---|---|---|
| TRACT | Gates Creek West | YEAR BUILT | 2005 |
| COMMUNITY | Oswego | GARAGE SPACES | 3.0 |
| COUNTY | Kendall | STATUS | Active |
| PROPERTY TYPE(S) | Single Family |
| School District | Yorkville High School |
|---|---|
| Elementary School | Grande Reserve Elementary School |
| High School | Yorkville High School |
| ADDITIONAL DETAILS | |
| AIR | Ceiling Fan(s), Central Air |
|---|---|
| AIR CONDITIONING | Yes |
| APPLIANCES | Disposal, Humidifier, Microwave, Range |
| AREA | Oswego |
| BASEMENT | Finished, Full, Sump Pump, Yes |
| CONSTRUCTION | Brick |
| GARAGE | Attached Garage, Yes |
| HEAT | Forced Air, Natural Gas |
| HOA DUES | 500 |
| LOT | 0 |
| LOT DESCRIPTION | Landscaped, Wooded |
| LOT DIMENSIONS | 86 X 126 |
| PARKING | Asphalt, Attached, Garage |
| SEWER | Public Sewer |
| STYLE | Contemporary |
| SUBDIVISION | Gates Creek West |
| TAXES | 11669.18 |
| WATER | Public |
MORTGAGE CALCULATOR
TOTAL MONTHLY PAYMENT
0
P
I
*Estimate only
| SATELLITE VIEW |
| / | |
We respect your online privacy and will never spam you. By submitting this form with your telephone number
you are consenting for Humderto
Garcia to contact you even if your name is on a Federal or State
"Do not call List".
Listed with RE/MAX Mi Casa
The data relating to real estate for sale on this web site comes in part from the Broker ReciprocitySM Program of MRED. All real estate listings are marked with the Broker ReciprocitySM logo or the MRED Broker ReciprocitySM thumbnail logo (a little black house) and detailed information about them includes the name of the listing brokers.
The broker providing these data believes them to be correct, but advises interested parties to confirm them before relying on them in a purchase decision.
Copyright 2026 MRED. All rights reserved.

The broker providing these data believes them to be correct, but advises interested parties to confirm them before relying on them in a purchase decision.
Copyright 2026 MRED. All rights reserved.
This IDX solution is (c) Diverse Solutions 2026.