|
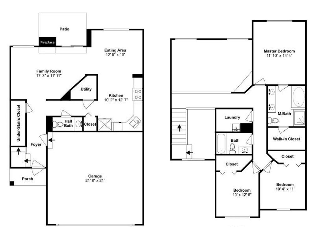
Welcome to 10540 Wakefield Lane! This beautiful three bedroom, two and a half bath end unit is located in the highly sought-after Southwind community. Step inside to a bright and airy foyer with vaulted ceilings. The entryway seamlessly flows into the large family room featuring lots of windows and lots of natural light. The kitchen boasts tons of cabinet space. Off the kitchen you'll find a patio perfect for grilling and relaxing. Head upstairs to find your spacious master bedroom featuring a master bath and large walk-in closet. Step across the hall to the second and third bedroom a second bathroom and convenient second floor laundry room complete the second level. The two-car attached garage is perfect for your vehicles, extra storage or man cave. Excellent neighborhood close to shops, dining, parks and located in top-rated school district 158. ***BATHTUB LEAKED SELLER WILL BE REPAIRING DAMAGE FROM LEAKING TUB ALSO THE WHOLE UNIT WILL BE PAINTED ALONG WITH REPLACING CARPET AND OTHER MISC ITEMS.**
| DAYS ON MARKET | 53 | LAST UPDATED | 1/5/2026 |
|---|---|---|---|
| TRACT | Southwind | YEAR BUILT | 2001 |
| COMMUNITY | Huntley | GARAGE SPACES | 2.0 |
| COUNTY | McHenry | STATUS | Conditional |
| PROPERTY TYPE(S) | Condo/Townhouse/Co-Op |
| ADDITIONAL DETAILS | |
| AIR | Central Air |
|---|---|
| AIR CONDITIONING | Yes |
| AMENITIES | Snow Removal |
| AREA | Huntley |
| BASEMENT | None |
| CONSTRUCTION | Brick, Vinyl Siding |
| FIREPLACE | Yes |
| GARAGE | Attached Garage, Yes |
| HEAT | Natural Gas |
| HOA DUES | 236 |
| LOT | 0 |
| LOT DIMENSIONS | 2442 |
| PARKING | Attached, Garage |
| SEWER | Public Sewer |
| STORIES | 2 |
| SUBDIVISION | Southwind |
| TAXES | 6442 |
| WATER | Public |
MORTGAGE CALCULATOR
TOTAL MONTHLY PAYMENT
0
P
I
*Estimate only
| SATELLITE VIEW |
| / | |
We respect your online privacy and will never spam you. By submitting this form with your telephone number
you are consenting for Humderto
Garcia to contact you even if your name is on a Federal or State
"Do not call List".
Listed with Coldwell Banker Real Estate Group
The data relating to real estate for sale on this web site comes in part from the Broker ReciprocitySM Program of MRED. All real estate listings are marked with the Broker ReciprocitySM logo or the MRED Broker ReciprocitySM thumbnail logo (a little black house) and detailed information about them includes the name of the listing brokers.
The broker providing these data believes them to be correct, but advises interested parties to confirm them before relying on them in a purchase decision.
Copyright 2026 MRED. All rights reserved.

The broker providing these data believes them to be correct, but advises interested parties to confirm them before relying on them in a purchase decision.
Copyright 2026 MRED. All rights reserved.
This IDX solution is (c) Diverse Solutions 2026.