|
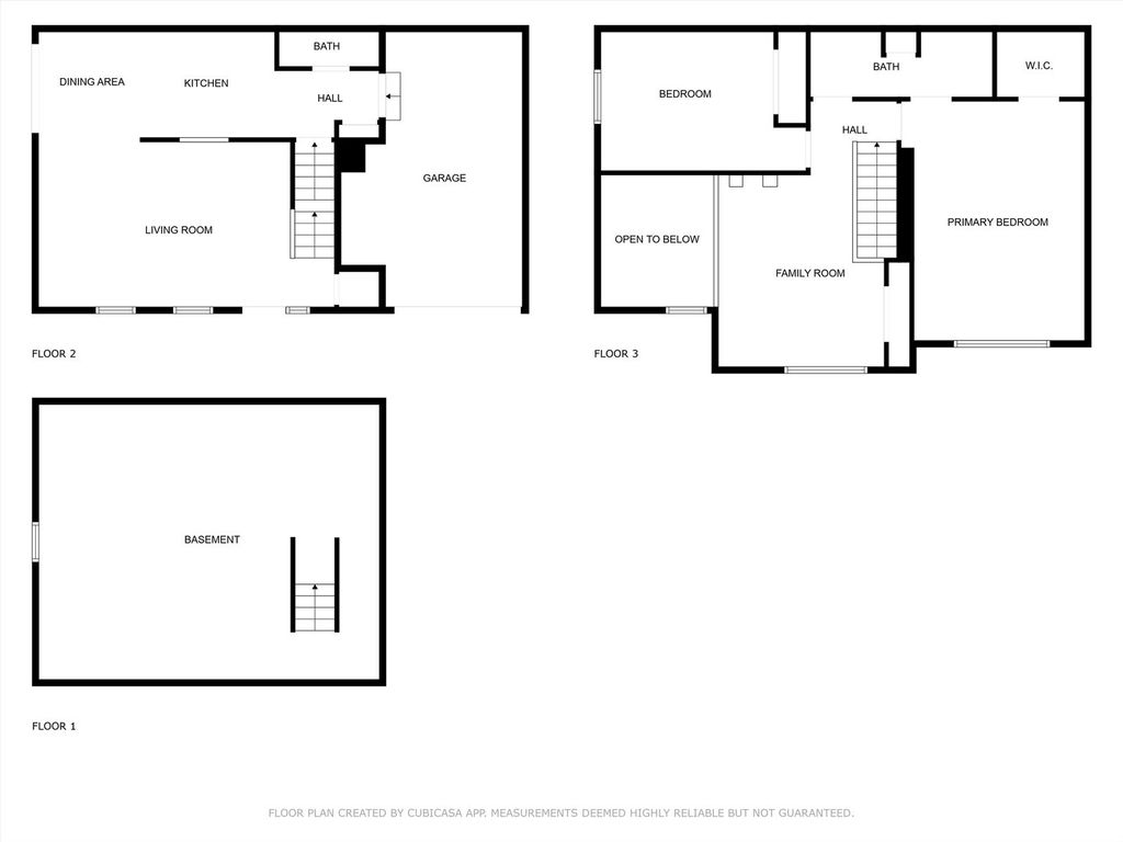
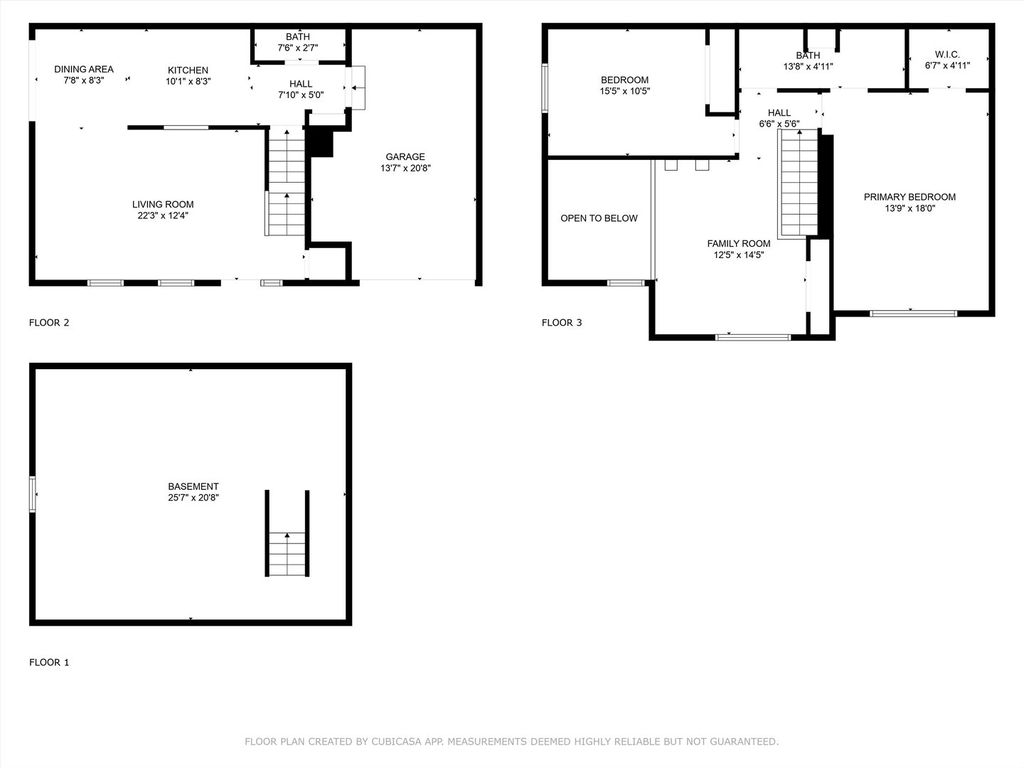
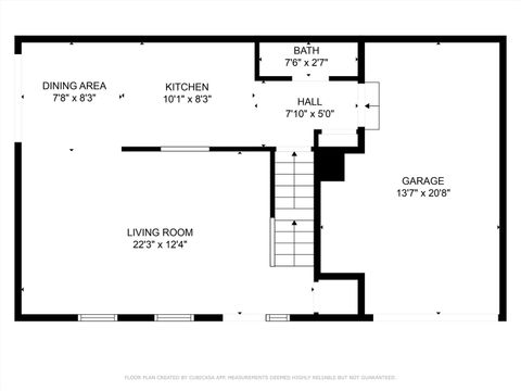
Welcome to this bright and well-maintained 2-bedroom townhome with a spacious loft and a full unfinished basement-perfect for future expansion. Located in a quiet, private cul-de-sac in Alsip, this home offers an open layout, great natural light, and plenty of space to grow. The main level features a comfortable living room, dining area, and an eat-in kitchen with a sliding door that leads to your private patio. Upstairs you'll find two generous bedrooms, a full bath, and a versatile loft that can easily be converted into a 3rd bedroom, home office, or playroom. The full unfinished basement gives you endless possibilities-storage, additional living space, a gym, or future bedrooms. The attached 1-car garage, in-unit laundry, and low-maintenance living make this home an easy choice. Located near parks, shopping, restaurants, I-294, and multiple nearby schools. This is a great opportunity to move into a quiet, established neighborhood with strong long-term value. Key Features: 2 bedrooms + loft (convertible to 3rd bedroom), 1.5 baths, Full unfinished basement, Private patio, Attached garage, Quiet cul-de-sac location, Close to highways, shopping & parks. Come see the potential this home offers! MOVE-IN READY!
| DAYS ON MARKET | 22 | LAST UPDATED | 12/2/2025 |
|---|---|---|---|
| YEAR BUILT | 1995 | COMMUNITY | Alsip / Garden Homes |
| GARAGE SPACES | 1.0 | COUNTY | Cook |
| STATUS | Active | PROPERTY TYPE(S) | Condo/Townhouse/Co-Op |
| ADDITIONAL DETAILS | |
| AIR | Ceiling Fan(s), Central Air |
|---|---|
| AIR CONDITIONING | Yes |
| AMENITIES | Snow Removal |
| APPLIANCES | Dishwasher, Microwave, Range, Refrigerator |
| AREA | Alsip / Garden Homes |
| BASEMENT | Full, Unfinished, Yes |
| CONSTRUCTION | Brick |
| GARAGE | Attached Garage, Yes |
| HEAT | Forced Air, Natural Gas |
| HOA DUES | 200 |
| INTERIOR | Walk-In Closet(s) |
| LOT | 0 |
| LOT DIMENSIONS | 1513 |
| PARKING | Asphalt, Attached, Assigned, Guest, Driveway, Garage |
| SEWER | Public Sewer |
| STORIES | 2 |
| TAXES | 865.84 |
MORTGAGE CALCULATOR
TOTAL MONTHLY PAYMENT
0
P
I
*Estimate only
| SATELLITE VIEW |
| / | |
We respect your online privacy and will never spam you. By submitting this form with your telephone number
you are consenting for Humderto
Garcia to contact you even if your name is on a Federal or State
"Do not call List".
Listed with Real Broker LLC
The data relating to real estate for sale on this web site comes in part from the Broker ReciprocitySM Program of MRED. All real estate listings are marked with the Broker ReciprocitySM logo or the MRED Broker ReciprocitySM thumbnail logo (a little black house) and detailed information about them includes the name of the listing brokers.
The broker providing these data believes them to be correct, but advises interested parties to confirm them before relying on them in a purchase decision.
Copyright 2025 MRED. All rights reserved.

The broker providing these data believes them to be correct, but advises interested parties to confirm them before relying on them in a purchase decision.
Copyright 2025 MRED. All rights reserved.
This IDX solution is (c) Diverse Solutions 2025.