|
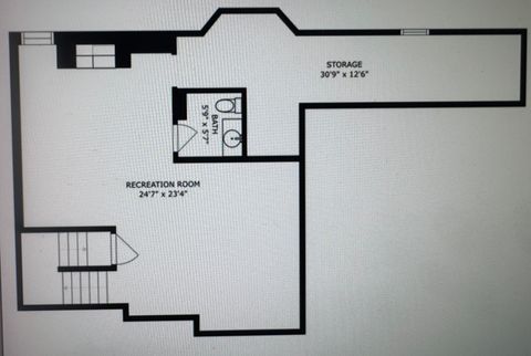
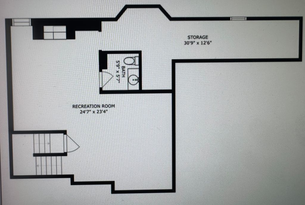
This home is the perfect home to raise your family. Located in a prime family friendly location with walking distance to Library, YMCA, Groceries and Entertainment. The home also feeds into top rated Naperville schools. As you enter the home, you are wowed by the open layout and light pours in from the oversized windows and gleams off the hardwood floors throughout the home. The large updated eat in kitchen has white custom cabinets, new quartz counter tops, new blacksplash and stainless steel appliances. The kitchen connects nicely to the dining room and opens up to the impressive 2 story great/family room for great flow. The second level has 3 large bedrooms and is highlighted by the primary bedroom with extra sitting area and primary bath with separate update shower and tub. The home also boasts a finished basement with extra bathroom and large open space that is very versatile for many uses. Fenced in backyard has large deck. Newer roof from 2015 and a partially finished basement.Have sump up and back up sump up. So many amazing features for this home. Don't miss it before it's gone.
| DAYS ON MARKET | 0 | LAST UPDATED | 12/2/2025 |
|---|---|---|---|
| YEAR BUILT | 1998 | COMMUNITY | Naperville |
| GARAGE SPACES | 2.0 | COUNTY | Will |
| STATUS | Active | PROPERTY TYPE(S) | Single Family |
| School District | Waubonsie Valley High School |
|---|---|
| Elementary School | White Eagle Elementary School |
| Jr. High School | Scullen Middle School |
| High School | Waubonsie Valley High School |
| ADDITIONAL DETAILS | |
| AIR | Ceiling Fan(s), Central Air |
|---|---|
| AIR CONDITIONING | Yes |
| APPLIANCES | Water Softener |
| AREA | Naperville |
| BASEMENT | Finished, Partial, Sump Pump, Yes |
| CONSTRUCTION | Aluminum Siding, Brick, Vinyl Siding |
| FIREPLACE | Yes |
| GARAGE | Attached Garage, Yes |
| HEAT | Forced Air, Natural Gas |
| HOA DUES | 340 |
| LOT | 9583 sq ft |
| LOT DIMENSIONS | 80X140 |
| PARKING | Garage Door Opener, Attached, Garage |
| TAXES | 9807.5 |
MORTGAGE CALCULATOR
TOTAL MONTHLY PAYMENT
0
P
I
*Estimate only
| SATELLITE VIEW |
| / | |
We respect your online privacy and will never spam you. By submitting this form with your telephone number
you are consenting for Humderto
Garcia to contact you even if your name is on a Federal or State
"Do not call List".
Listed with Realty of America
The data relating to real estate for sale on this web site comes in part from the Broker ReciprocitySM Program of MRED. All real estate listings are marked with the Broker ReciprocitySM logo or the MRED Broker ReciprocitySM thumbnail logo (a little black house) and detailed information about them includes the name of the listing brokers.
The broker providing these data believes them to be correct, but advises interested parties to confirm them before relying on them in a purchase decision.
Copyright 2025 MRED. All rights reserved.

The broker providing these data believes them to be correct, but advises interested parties to confirm them before relying on them in a purchase decision.
Copyright 2025 MRED. All rights reserved.
This IDX solution is (c) Diverse Solutions 2025.