|
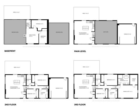
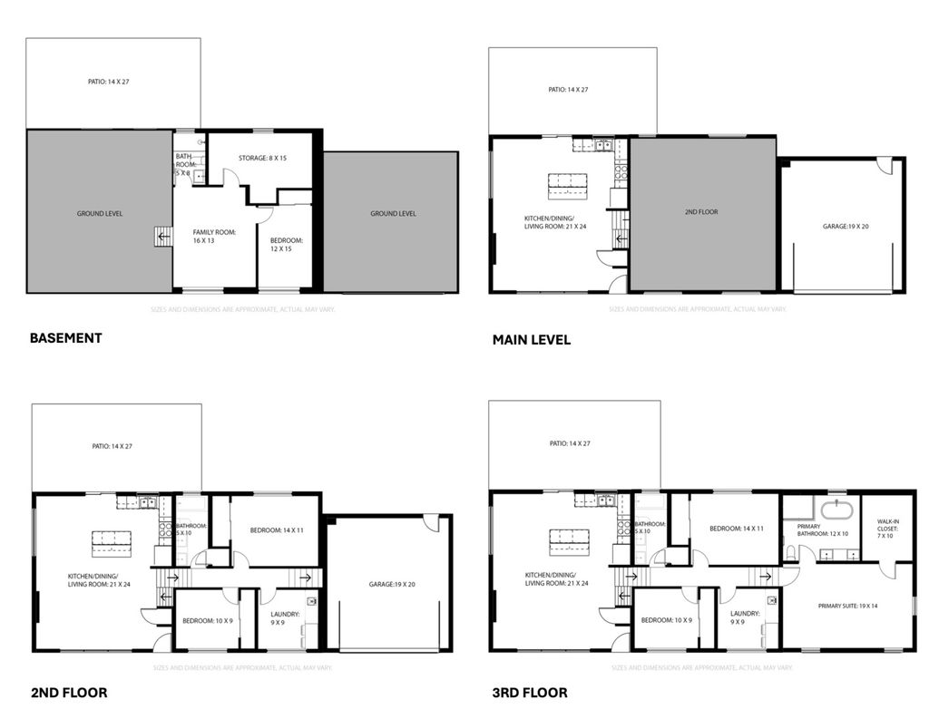
Stunning fully remodeled 4-bedroom, 3-bath home on a corner lot in a prime Arlington Heights location, offering nearly 2,400 sq ft of modern living with tons of yard space. This home has been renovated with exceptional attention to detail, featuring all-new electrical, plumbing, heating ductwork, windows, hardwood flooring, siding, and shingles on the roof. The brand-new kitchen includes custom cabinetry, quartz countertops, a waterfall island with seating, and premium appliances, opening to a bright and functional main living and dining area with a vaulted ceiling reaching 13' at its highest point. Three beautifully updated bathrooms showcase modern tile and fixtures, with the primary bathroom featuring a separate shower with heated floor and bench, plus a freestanding tub. The newly added third-story expansion serves as a spacious primary suite with 9' ceilings and generous closet space. Additional upgrades include new lighting, trim, doors, and an electric fireplace. The second floor offers a conveniently located laundry near the bedrooms. The basement provides open space for a family room, a crawl space fully covered in foil, and a mechanical room open for extra storage opportunities. A refreshed 2-car garage with a new insulated garage door complete this move-in-ready home. Located near parks, schools, shopping, and transportation-this home combines the feel of new construction with the charm of an established neighborhood. Owner is a licensed real estate broker.
| DAYS ON MARKET | 50 | LAST UPDATED | 12/15/2025 |
|---|---|---|---|
| YEAR BUILT | 1957 | COMMUNITY | Arlington Heights |
| GARAGE SPACES | 2.0 | COUNTY | Cook |
| STATUS | Active | PROPERTY TYPE(S) | Single Family |
| School District | Prospect High School |
|---|---|
| Elementary School | Olive-Mary Stitt School |
| Jr. High School | South Middle School |
| High School | Prospect High School |
| ADDITIONAL DETAILS | |
| AIR | Central Air |
|---|---|
| AIR CONDITIONING | Yes |
| APPLIANCES | Dishwasher, Microwave, Range, Range Hood, Refrigerator |
| AREA | Arlington Heights |
| BASEMENT | Finished, Partial, Storage Space, Yes |
| CONSTRUCTION | Brick, Other |
| FIREPLACE | Yes |
| GARAGE | Attached Garage, Yes |
| HEAT | Forced Air, Natural Gas |
| INTERIOR | Vaulted Ceiling(s), Walk-In Closet(s) |
| LOT | 0 |
| LOT DESCRIPTION | Corner Lot |
| LOT DIMENSIONS | 66x132 |
| PARKING | Attached, Garage |
| SEWER | Public Sewer |
| TAXES | 9231.95 |
| WATER | Public |
MORTGAGE CALCULATOR
TOTAL MONTHLY PAYMENT
0
P
I
*Estimate only
| SATELLITE VIEW |
| / | |
We respect your online privacy and will never spam you. By submitting this form with your telephone number
you are consenting for Humderto
Garcia to contact you even if your name is on a Federal or State
"Do not call List".
Listed with arhome realty
The data relating to real estate for sale on this web site comes in part from the Broker ReciprocitySM Program of MRED. All real estate listings are marked with the Broker ReciprocitySM logo or the MRED Broker ReciprocitySM thumbnail logo (a little black house) and detailed information about them includes the name of the listing brokers.
The broker providing these data believes them to be correct, but advises interested parties to confirm them before relying on them in a purchase decision.
Copyright 2026 MRED. All rights reserved.

The broker providing these data believes them to be correct, but advises interested parties to confirm them before relying on them in a purchase decision.
Copyright 2026 MRED. All rights reserved.
This IDX solution is (c) Diverse Solutions 2026.