|
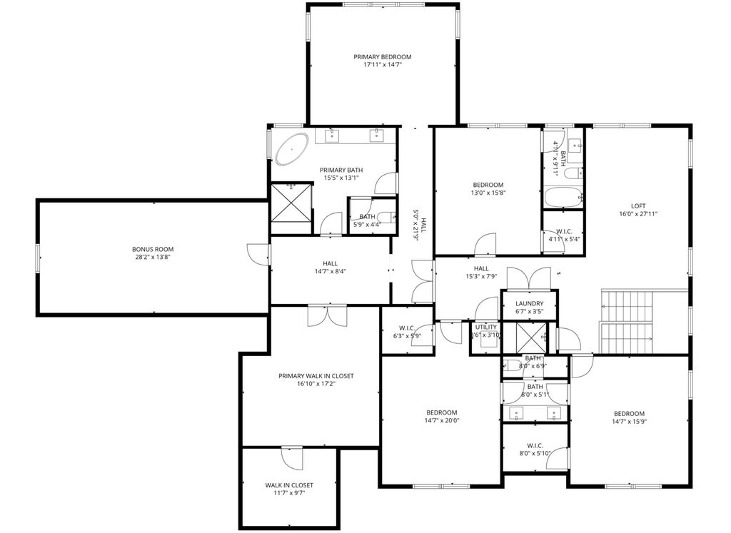
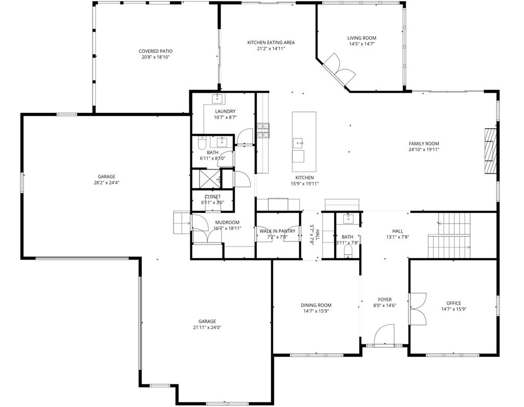
Live in luxury in builder's newest masterpiece. This home is beautifully situated on a lush 1.9 acre property on a quiet dead end street near forest preserves. This magnificent new construction home is meticulously crafted with top of the line finishes and careful attention to details. Designed for the most discerning buyer with a flexible open floor plan that is flooded with natural light. Fall in love with the open chef's kitchen with breakfast room, island and professional-series appliances including Subzero and Wolf opening to a beautiful great room with fireplace, the heart of this home. The first floor is complete with 10 ft ceilings, hardwood floors, a library/office that can also be used as a bedroom, full bath plus powder room, separate formal dining room with butlers pantry, incredible mudroom off the 4-car attached garage with built-in cubbies, laundry and walk-in pantry. The 2nd floor offers a private sanctuary primary suite complete with a spa-like bath, walk in closet, and enormous flex room that can be a 2nd walk-in closet or bonus room, 3 additional bedrooms equipped with walk-in closets and attached baths- 1 ensuite and 2 with an adjoining Jack & Jill, an open loft and 2nd laundry room. The home is complete with a finished basement with 10' ceilings, an additional bedroom, full bath and rec room. Enjoy the natural views from the front porch, enclosed screened porch, and the large sunroom! Start your new year in this new home!
| DAYS ON MARKET | 24 | LAST UPDATED | 12/3/2025 |
|---|---|---|---|
| YEAR BUILT | 2025 | COMMUNITY | Lincolnshire |
| GARAGE SPACES | 4.0 | COUNTY | Lake |
| STATUS | Active | PROPERTY TYPE(S) | Single Family |
| School District | Adlai E Stevenson High School |
|---|---|
| Elementary School | Laura B Sprague School |
| Jr. High School | Daniel Wright Junior High School |
| High School | Adlai E Stevenson High School |
| ADDITIONAL DETAILS | |
| AIR | Central Air |
|---|---|
| AIR CONDITIONING | Yes |
| AREA | Lincolnshire |
| BASEMENT | Finished, Full, Yes |
| CONSTRUCTION | Stone, Stucco |
| FIREPLACE | Yes |
| GARAGE | Attached Garage, Yes |
| HEAT | Forced Air, Natural Gas |
| INTERIOR | Entrance Foyer, Open Floorplan, Pantry, Walk-In Closet(s) |
| LOT | 1.9 acre(s) |
| LOT DESCRIPTION | Cul-de-sac |
| LOT DIMENSIONS | 155X185X64X125X330X214X313 |
| PARKING | Attached, Garage |
| SEWER | Public Sewer |
| TAXES | 8431 |
| WATER | Public |
MORTGAGE CALCULATOR
TOTAL MONTHLY PAYMENT
0
P
I
*Estimate only
| SATELLITE VIEW |
| / | |
We respect your online privacy and will never spam you. By submitting this form with your telephone number
you are consenting for Humderto
Garcia to contact you even if your name is on a Federal or State
"Do not call List".
Listed with Compass
The data relating to real estate for sale on this web site comes in part from the Broker ReciprocitySM Program of MRED. All real estate listings are marked with the Broker ReciprocitySM logo or the MRED Broker ReciprocitySM thumbnail logo (a little black house) and detailed information about them includes the name of the listing brokers.
The broker providing these data believes them to be correct, but advises interested parties to confirm them before relying on them in a purchase decision.
Copyright 2025 MRED. All rights reserved.

The broker providing these data believes them to be correct, but advises interested parties to confirm them before relying on them in a purchase decision.
Copyright 2025 MRED. All rights reserved.
This IDX solution is (c) Diverse Solutions 2025.