|
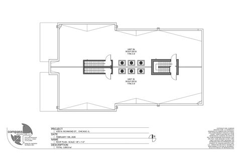
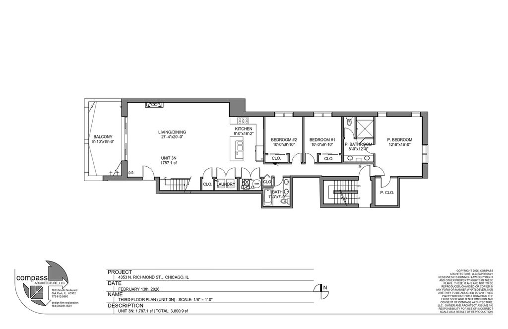
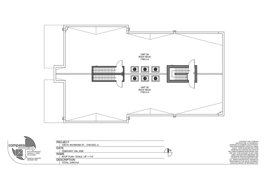
Located in Irving Park, this oversized 3-bed, 2-bath unit offers 2,000 sq. ft. of open-concept living space with 10.5 ft ceilings, 8 ft solid core doors, and hardwood floors. The spacious living room features a fireplace and sliding glass doors that lead to a large balcony with a gas line. 1700 sq foot PRIVATE roof top deck with pavers, water and natural gas line. Andersen doors and windows throughout. The chef's kitchen boasts custom cabinetry, a vented hood, quartz countertops, Bosch stainless steel appliances, and a generous island. The primary en suite includes a walk-in shower, double vanities, and plenty of closet space. 1 garage parking spot included. Ideally situated just steps from the Brown Line, Chicago Riverwalk, and Horner Park's 57 acres of recreational space. VARIETY OF FLOOR PLANS. Delivery July / August 2026.
| DAYS ON MARKET | 37 | LAST UPDATED | 2/25/2026 |
|---|---|---|---|
| YEAR BUILT | 2026 | COMMUNITY | CHI - Irving Park |
| GARAGE SPACES | 1.0 | COUNTY | Cook |
| STATUS | Conditional | PROPERTY TYPE(S) | Condo/Townhouse/Co-Op |
| School District | Roosevelt High School |
|---|---|
| Elementary School | Bateman Elementary School |
| Jr. High School | Bateman Elementary School |
| High School | Roosevelt High School |
| ADDITIONAL DETAILS | |
| AIR | Central Air |
|---|---|
| AIR CONDITIONING | Yes |
| AMENITIES | Insurance, Snow Removal, Water |
| APPLIANCES | Dishwasher, Disposal, Dryer, Humidifier, Microwave, Range, Refrigerator, Washer |
| AREA | CHI - Irving Park |
| BASEMENT | None, Sump Pump, Yes |
| CONSTRUCTION | Brick |
| EXTERIOR | Balcony |
| GARAGE | Yes |
| HEAT | Forced Air, Natural Gas |
| HOA DUES | 286 |
| LOT | 0 |
| LOT DESCRIPTION | Corner Lot |
| LOT DIMENSIONS | CONDO |
| PARKING | Concrete, Detached, Garage |
| SEWER | Public Sewer |
| STORIES | 3 |
| WATER | Public |
MORTGAGE CALCULATOR
TOTAL MONTHLY PAYMENT
0
P
I
*Estimate only
| SATELLITE VIEW |
| / | |
We respect your online privacy and will never spam you. By submitting this form with your telephone number
you are consenting for Humderto
Garcia to contact you even if your name is on a Federal or State
"Do not call List".
Listed with Baird & Warner
The data relating to real estate for sale on this web site comes in part from the Broker ReciprocitySM Program of MRED. All real estate listings are marked with the Broker ReciprocitySM logo or the MRED Broker ReciprocitySM thumbnail logo (a little black house) and detailed information about them includes the name of the listing brokers.
The broker providing these data believes them to be correct, but advises interested parties to confirm them before relying on them in a purchase decision.
Copyright 2026 MRED. All rights reserved.

The broker providing these data believes them to be correct, but advises interested parties to confirm them before relying on them in a purchase decision.
Copyright 2026 MRED. All rights reserved.
This IDX solution is (c) Diverse Solutions 2026.